查看完整案例


收藏

下载
架构师提供的文本描述。医生把小型房屋的类型结合在一起-具有较低的环境影响-具有独特位置的特殊性:分流通道Borcea。一种新型住宅-浮动的、多功能的、可移动的房屋-的位置和愿望强加了特殊和复杂的建筑条件。
Text description provided by the architects. DOC intertwines the typology of a compact house - having a low environmental impact - with the specificity of a unique location: distributary channel Borcea . The location and the desire of a new type of dwelling - a floating, multifunctional, mobile house - imposed special and complex constructive conditions.
由于季节性变化和预算调节,河水水位变化很大,因此建造了一个类似拖车的平台,可以重新安置。房子正在对场地的变化和变化作出反应。机动性作为建筑的主要特征,决定了设计空间的简单性。
The high water level variations of the river due to seasonal changes as well as budget conditioning have resulted in constructing a trailer like platform that can be relocated. The house is responding to site changes and changes with it. Mobility as the main feature of the construction dictated the simplicity of the designed space.
© Sabin Prodan
(Sabin Prodan)
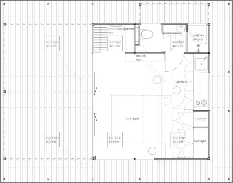
Floor Plan
© Sabin Prodan
(Sabin Prodan)
紧凑,与一个简单的,矩形的计划,空间获得了一个壮观的感觉,通过它的方式,它与地点,赞扬它。令人惊奇的图像是通过宽窗户和天井在日常使用中带来的。虽然非常开放,浮标提供视觉亲密的城市通过它的定位。
Compact and with a simple, rectangular plan, the space gets a spectacular feel through the manner it integrates with the location, complimenting it. Amazing images are brought in everyday use through wide windows and patio. Although very open, the pontoon provides visual intimacy from the city through its positioning.
© Sabin Prodan
(Sabin Prodan)
它的临时住所和水上运动爱好者聚会点的多功能为一个被遗忘和未被发现的地区-多瑙河和卡拉西地区开辟了新的视角和探索的角度。建造过程开始考虑到环境、地点和社区,利用一座已适应当前需要的现有和废弃的浮桥。
Its multifunctionality of temporary housing and meeting point for water sports lovers opens up new perspectives and exploration angles for a forgotten and undiscovered area - the Danube river and the Calarasi area. The building process began taking into consideration the context, location and community by harnessing an existing and abandoned pontoon that has been adapted to current needs.
客服
消息
收藏
下载
最近





















