查看完整案例


收藏

下载
© Astula Inc
Astula公司
架构师提供的文本描述。丹佛平房是位于科罗拉多州丹佛市斯隆湖社区的单一家庭住宅。房子被包裹在一个木船托盘模块,创造了一个屏蔽,光过滤元素的内部空间和前门廊。可操作的屏幕面板允许定制主卧室甲板上的隐私,给面对正面的街道以动态的外观。白色的威尼斯人石膏覆盖了房子的其余部分,给人一种光滑、光滑和触觉的材料,这是凉爽和独特的触觉。
Text description provided by the architects. The Denver Pallet House is a single-family residence located in the Sloan’s Lake neighborhood of Denver, Colorado. The house is clad in a module of wood shipping pallets, creating a screening, and light-filtering element for the interior spaces and front porch. Operable panels of the screen allow for customization of privacy on the master bedroom deck, giving a dynamic appearance to the street facing façade. White Venetian plaster coats the remainder of the home, giving a smooth, glossy, and tactile material that is cool and unique to the touch.
© Astula Inc
Astula公司
虽然与附近的其他住宅相比,这座住宅的面积并不大,但室内中庭为住宅提供了光线和垂直体积,这在设计上是有好处的。
While the square footage of the residence is not characteristically large compared to other homes in the neighborhood, the design benefits from an interior atrium delivering light and vertical volume to the home.
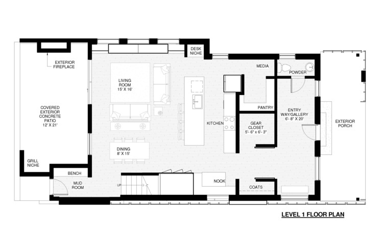
First Floor Plan
一层平面图
Second Floor Plan
二层平面图
位于住宅第一层的中央厨房通过中庭向天空望去,这两个层次的循环将这一核心元素包裹在所有的四个方面。在二楼,主套房与玻璃墙毗邻,将光线带入浴室和卧室空间。一个戏剧性的楼梯到第二层的变化与过滤灯,并向下看厨房下面。
The centrally located kitchen on the 1 st level of the home looks up through the atrium to the sky, and circulation at both levels wraps this core element on all four sides. On the second floor, the master suite abuts this feature with glass walls, bringing light into the bathroom and bedroom spaces. A dramatic stairway to level 2 changes with the filtering light, and looks down into the kitchen below.
© Astula Inc
Astula公司
Architects Meridian 105 Architecture
Location Denver, United States
Category Houses
Area 2637.0 ft2
Project Year 2017
Photographs Astula Inc
Manufacturers Loading...
客服
消息
收藏
下载
最近

























