查看完整案例


收藏

下载
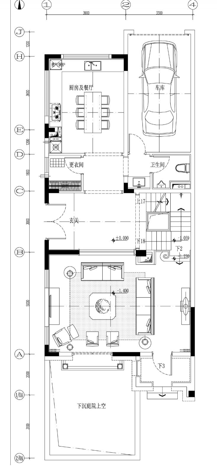
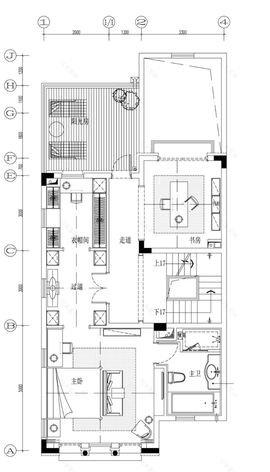
太原绿地山鼎庄园经典样板户型
主要材料为:天然大理石,高级白橡木饰面,高级石材马赛克拼花,高级仿古砖,进口高级壁纸,高级环保乳胶漆。并且配备有全屋新风系统,打造一个清霾、静音的全净化健康豪宅。
设计风格为清新地中海风格,在选材和配色上,都突显地中海那蔚蓝海岸与白色沙滩的主基调,不管是地面的灰白基调,墙面的蓝色基调,还是门套楼梯等白橡木开放漆的表达手法,都无不重复的突出地中海的祥和安逸的自然风情,作为边套户型,东侧增加出来的很多窗户,我们也通过装饰手法重点打造,将室外阳光引入室内,让地中海风格的美不光表现在与大海、蓝天、沙滩为伍,更有与光、与大自然融合的特殊风情,它的基调是明亮、热烈和丰富的色彩,外加显著的民族性、地域性特色的软装饰品,使得这套别墅的居住环境中充盈着蓝天、碧海、艳阳天的安宁静谧、自由自在。从而让业主在辛勤工作一天后,从进门的那一刻开始就能有归属感,舒适感,在享受舒适感的同时,又有碧海蓝天,白色沙滩的自然健康的感觉。
地中海 清新 客厅 餐厅 转角楼梯 卧室书房 浴室
客服
消息
收藏
下载
最近


































