查看完整案例

收藏

下载
架构师提供的文本描述。这个KPWT住宅项目提供了热带气候国现代住宅的一个例子。为了在这个特定的地区建造一个现代化的建筑,它不仅仅是一种形式,少是-多,干净和清晰的,像盒子一样的建筑,而且,由于它的寿命,建筑需要一些遮阳设备和一个屋顶为雨水。该项目提供了更适用的体系结构。
Text description provided by the architects. This KPWT residence project offers an example of a modern house in the tropical climate country. In order to build a modern architecture in this particular area, it is not only about a form, less-is-more, clean and clear, box-like building but also, for its longevity, building needs some sun shading devices as well as a roof for the rains. This project offers architecture which is more applicable.
© Beersingnoi
© Beersingnoi
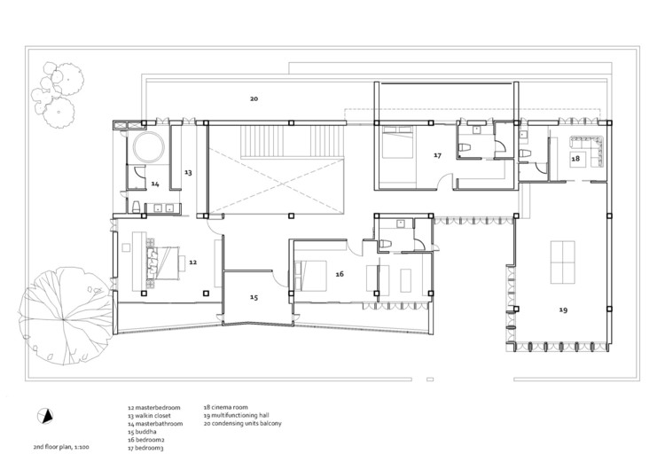
这座房子位于泰国曼谷的一片800平方米的土地上,主人想在那里为他的同时代家庭建造一栋房子;两层楼高、开放式的生活、带双容积空间的餐厅和三间卧室共位于主楼内,而6米高的天花板、多功能厅和电影院之间是相互连接的。两人通过二楼的画廊相互连接,后面是另一间卧室。
The house is on an 800 square metre land plot, situated in a residential area of Bangkok, Thailand where the owner wants to build a house for his contemporary family; two storey, open-plan living, dining area with a double volume space and three bedrooms are altogether in the main building whereas a 6 metre high ceiling multifunctioning hall and cinema room are in one another. Both are connected to each other by a gallery on the second floor with another bedroom behind it.
© Beersingnoi
© Beersingnoi
Ground Floor Plan
© Beersingnoi
© Beersingnoi
First Floor Plan
一层平面图
建筑物的方向与环境有很强的关系,这座6米高的建筑背弃了北部令人不快的8层办公大楼,而2层的主翼则与毗邻的南方1970年代现代住宅连接起来,这两座经过不同时间建造的现代住宅之间产生了有趣的对话。
Orientation of the building has strong relationship with the context, the 6 metre high building turns its back on the unpleasant 8 storey office building nearby in the north, whilst the 2 storey main wing makes a connection across the site to adjacent existing 1970s modern house in the south, creating an interesting conversation between the two modern houses that are built through different times.
© Beersingnoi
© Beersingnoi
建筑本身的质量说明了人们对这片土地的赞赏之情,这些长的水平线被用来强调和庆祝这片40米长、面向道路的地块的正面。在热带气候方面,房屋的主表面稍微倾斜,为自己制造遮阳效果,而不仅仅是直面阳光。铝制窗户也有一个特点,而不是建造另一堵墙,作为第二层皮肤或防晒墙,这些墙被广泛应用于其他地方,这些窗户的设计最好是通过渐变嵌入垂直框架来遮阳,以控制从日出到日落的日光。
Mass of the architecture itself illustrates admiration to the site, the long horizontal lines are used to emphasise and celebrate long frontage of this land plot, 40 metre long facing the road. For the tropical climate aspect, main surface of the house is slightly angled to create sun shading for itself instead of only plain surface confronting the sun. The aluminium windows also makes a feature, rather than building another wall as a second skin or a sun protection, which is widely used elsewhere, the windows are preferably designed to be sun shading themselves by embedding the vertical frame gradiently to control daylight from sunrise to sunset.
© Beersingnoi
© Beersingnoi
客服
消息
收藏
下载
最近


































