查看完整案例


收藏

下载
“Bayonne Marinadour是在一系列行动中完成的第一次干预行动,标志着进入Bayonne市的新入口。
“Bayonne Marinadour is the first intervention to be completed in a complex of actions marking the new entrance to the city of Bayonne.
© Adrià Goula
(AdriàGoula)
其他的元素是通过改造通往亨利格勒奈特桥的道路而产生的一个公园,并俯瞰着它,建造了里瓦多的建筑群。
The other elements are a park produced by remodelling the approach road to Henri Grenet Bridge and, overlooking it, the built complex of Rivadour.
© Adrià Goula
(AdriàGoula)
这些部分建立了协同作用和相互关系,形成了一个单一的城市综合体在入口的历史城市。
These pieces establish synergies and interrelations, forming a unitary urban complex at the gateway to the historic city.
© Luc Boegly
吕克·博格利
Bayonne Marinadour是一项训练,涉及到适应相当程度的城市密度,并组织一个复杂的混合简报。
Bayonne Marinadour is an exercise that involves adapting a significant degree of urban density and organizing a complex mixed brief.
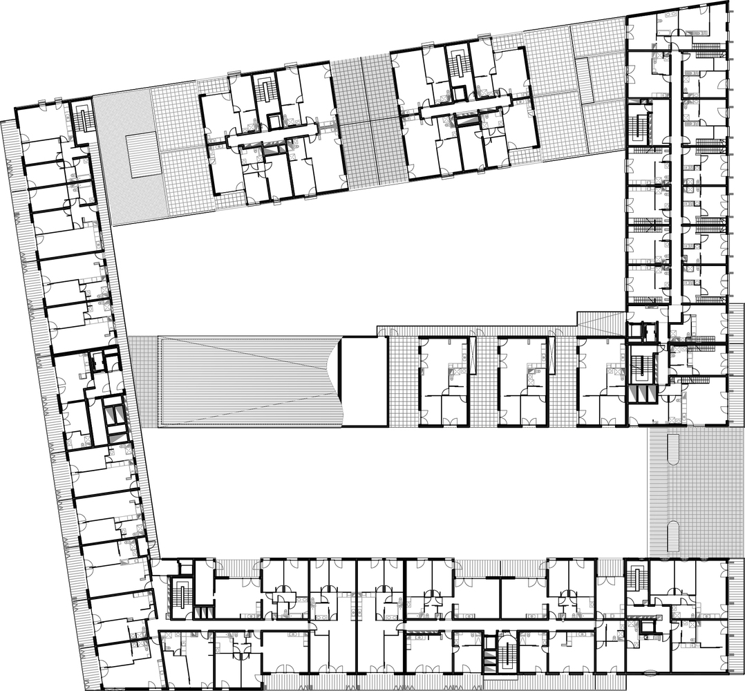
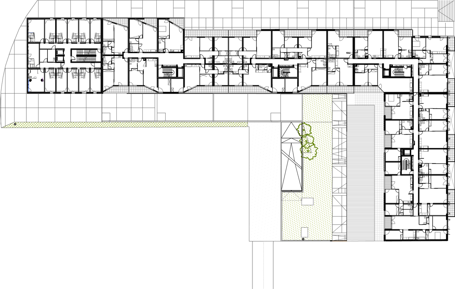
该卷解决了极端密度的简要,安排群众围绕两个园林庭院,创造了一个相互作用的高度和完全空的关系,以产生最好的条件,在共享的空间。
The volume addresses the extreme density of the brief, arranging the masses around two landscaped courtyards, creating an interplay in height and in full-empty relations to generate the best possible con- ditions in the shared spaces.
© Adrià Goula
(AdriàGoula)
大的城市窗户向外打开庭院,面向阳光和河流。
Large urban windows open up the courtyards to the outside, to the sun and the river.
© Luc Boegly
吕克·博格利
在部分中,项目将不同的用途划分为不同的层次:停车场和购物中心。以上,独立,是多种类型和条件的住宅,在不同的平面图,以适应和优化与外部的关系。
In section, the project segregates the various uses in different layers: a car park and a shopping centre form the base. Above, independent, are dwellings of multiple types and conditions that vary in floor plan to adapt and optimize the relation with the exterior.
© Adrià Goula
(AdriàGoula)
这些信封也遵循了这一逻辑:最暴露于交通的南和东法赫德通过双层玻璃保护免受噪音的影响,该双层玻璃形成了具有高能量等级的温室露台。
The envelopes also follow this logic: the south and east façades, which are most exposed to traffic, are protected from noise by double glazing that formalizes a conservatory terrace with high energy rating.
© Adrià Goula
(AdriàGoula)
在西方,体积被分解,它的信封是反射金属:我们必须让光线和空气进入庭院。在河岸,梯田的水平遵循水的几何图形。
To the west, the volume is broken down and its envelopes are reflective metal: we have to let light and air into the courtyard. On the river side, the horizontal of the terraces follows the geometry of the water.
这种形态和体积的复杂性反映了人们对适应环境的渴望,同时也表达了减少这种高密度建筑对城市的影响的愿望。“
This morphological and volumetric complexity speak of the desire to adapt to the context, and also of the desire to reduce the urban impact of this high built density.”
© Adrià Goula
(AdriàGoula)
Architects Mateo Arquitectura
Location Bayonne, France
Category Housing
Architect in Charge Josep Lluís Mateo
Area 70000.0 m2
Project Year 2015
Photographs Aitor Estevez
客服
消息
收藏
下载
最近

































