查看完整案例

收藏

下载
架构师提供的文本描述。南海岸的兰德斯豪宅位于海洋湖和海洋之间的沙丘上,种植松树和软木橡树。
Text description provided by the architects. The « South Coast of Landes » house is located between the marine lake and the sea on a dune planted with pine trees and cork oaks.
© Sergio Grazia
塞尔吉奥·格拉齐亚
事实上,这是对现有房屋的改造,我们只把它的地下室建在了工地的斜坡上。
In fact, this is the transformation of an existing house of which we’ve kept only its built-in basement in the slope of the site.
© Sergio Grazia
塞尔吉奥·格拉齐亚
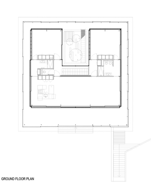
新的建筑是用木头和钢做的,尽可能轻,靠在现有地下室顶部的混凝土板上。广场布置了客厅、开放式厨房和围绕着露台的两间卧室。两层通过中央楼梯进行通信。种植的屋顶可以通过另一个楼梯从露台进入。
The new construction made in wood and steel, to be as light as possible, leans on a concrete slab of distribution built on top of the existing basement. The square plan organizes the living room, the open kitchen and two bedrooms around a patio. The two floors communicate via a central staircase. The planted roof is accessible from the patio by another staircase
© Sergio Grazia
塞尔吉奥·格拉齐亚
Ground Floor Plan
© Sergio Grazia
塞尔吉奥·格拉齐亚
广场的重点是一个画廊超过了一个保护性的外悬门廊屋顶,这是围绕着整个房子。画廊上装饰着滑梯。
The square is emphasized by a gallery surmounted by a protective overhanging porch roof which is surrounding the whole house. The gallery is embellished with sliding trellises.
© Sergio Grazia
塞尔吉奥·格拉齐亚
所有材料都是均匀的:勃艮第石材为地板,落叶松木为天花板和细木工,红雪松为塔架,混凝土为底层和支撑结构元素。
The materials are uniform everywhere: Burgundy stone for the floors, larch wood for the ceilings and the joinery, Red Cedar for the trellises and concrete for structural elements of underfloor and bracing.
© Sergio Grazia
塞尔吉奥·格拉齐亚
客服
消息
收藏
下载
最近







































