查看完整案例


收藏

下载
© Chase Daniel
蔡斯·丹尼尔
架构师提供的文本描述。RoadRunner住宅旨在为经典设计注入新的活力。这座2014年建成的屋顶平坦的单层住宅看上去就像漂浮着,舒适地依偎在德克萨斯山村的树林里。在芝加哥住了很长一段时间后,客户们有机会参观并爱上了米斯·范德罗赫(Mies Van Der Rohe)的法恩斯沃斯之家(Farnsworth House)。
Text description provided by the architects. The RoadRunner Residence aims to inject new life into a classic design. The flat-roofed single story home completed in 2014 looks as if it is floating, nestled comfortably within the trees of the Texas hill country. Having lived in Chicago for quite some time, the clients had the opportunity to visit and fall in love with the Farnsworth House by Mies Van der Rohe.
© Chase Daniel
蔡斯·丹尼尔
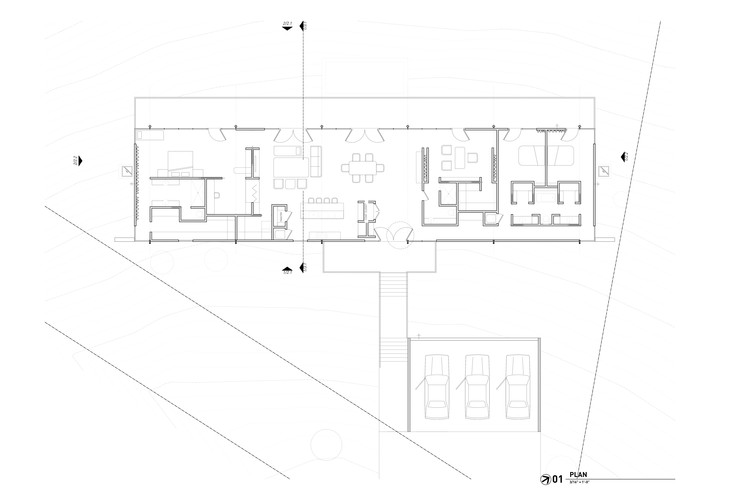
Ground Floor Plan
© Chase Daniel
蔡斯·丹尼尔
当他们最终搬到奥斯丁的时候,他们想带来一件美丽的东西。然后,他们决定建造一个能让人联想起法恩斯沃思别墅的经典设计的家,但它位于荒凉的盆地保护区,坐落在山坡上,以最大限度地连接周围美丽的滚动景观。
When they eventually moved to Austin, they wanted to bring a piece of that beauty with them. They then decided to build a home that would be reminiscent of the classic design of the Farnsworth House, but being located in the Wild Basin preserve, perched on a hillside to maximize the connection to the beautiful rolling landscape that surrounds it.
© Chase Daniel
蔡斯·丹尼尔
面对保护区的外墙大多是玻璃,干扰最小,并提供了一些最令人叹为观止的德克萨斯风景。白色灰泥突出周围树冠的舞蹈阴影。该住宅与周围环境保持着紧密的联系,提供了一个大的居住空间,直接向宽阔的甲板开放,与被荒野包围的朋友和家人放松。
The façade facing the preserve is mostly glass with minimal interruptions, and provides some of the most stunning views of Texas. White stucco highlights dancing shadows of the surrounding tree canopies. The residence maintains a strong connection to the surrounding environment, providing a large living space that opens directly to a wide deck for relaxing with friends and family surrounded by the wilderness.
© Chase Daniel
蔡斯·丹尼尔
Architects North Arrow Studio
Location Austin, United States
Category Houses
Lead Architect Francisco Arredondo
Area 4600.0 ft2
Project Year 2014
Photographs Chase Daniel
Manufacturers Loading...
客服
消息
收藏
下载
最近



















