查看完整案例

收藏

下载
© Stefan Ivković
c.Stefan Ivković
“每样东西都有裂缝,光线就是这样进来的.”-莱纳德·科恩
"There is a crack in everything. That's how the light gets in..." -Leonard Cohen
重建和扩展旧家庭住宅成为度假屋的主要挑战是利用现有的当地优势-自然和建筑环境。该地块位于低城市化地区,由当地的道路斯米洛维奇-原太平洋,在斯米洛维奇湖附近的Stara Planina山脚下。
The main challenge when reconstructing and extending the old family house into a holiday house was utilising the existing local advantages - natural and built environment. The plot is located in low-urbanized area by the local road Smilovci - Protopopinci, at the foot of Stara Planina Mountain, near Smilovci Lake.
© Stefan Ivković
c.Stefan Ivković
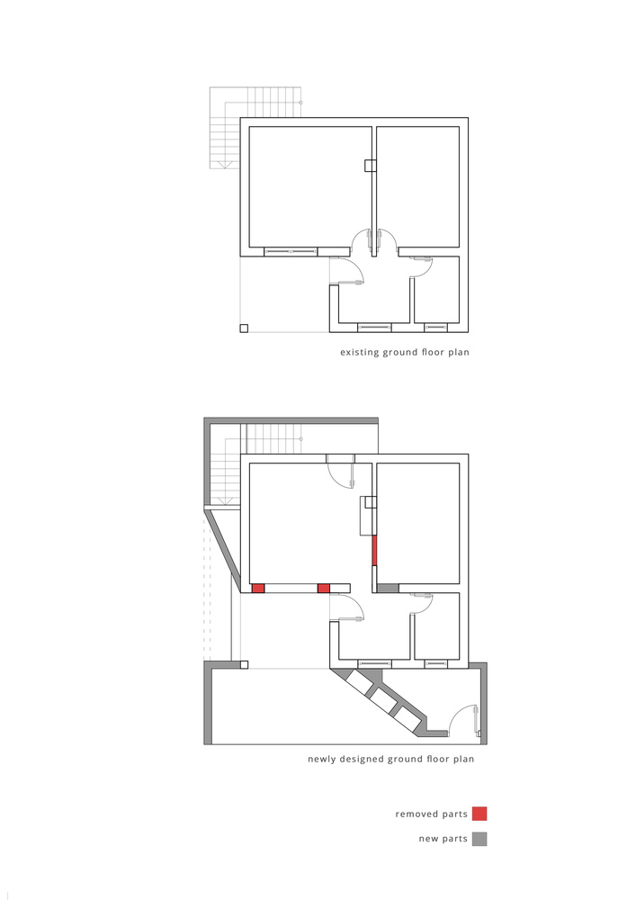
现有的房屋虽然保存得很好,但在功能上并不能满足客户的需求,因此必须进行改造和扩建。除了更换旧屋顶建筑和将建筑扩展到后院之外,还在小区入口处和后院进行了绿化改造。
Existing house, although constructively preserved, functionally didn't meet the needs of the client, so it had to be adapted and extended. In addition to replacing the old roof construction and expanding the building to the backyard, landscaping was also renewed, at the entrance to the plot, as well as in the backyard.
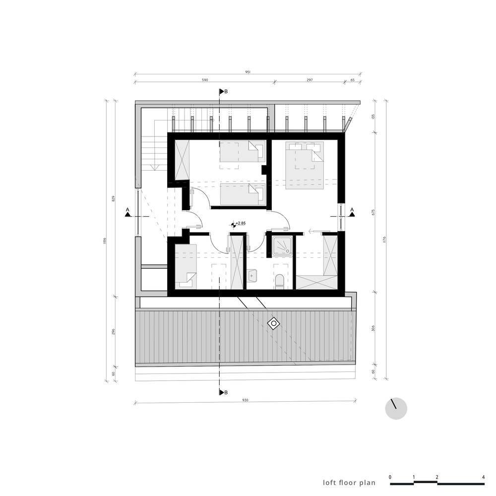
在功能上,房子分为底层(包括起居室、厨房和餐厅、露台)和阁楼(有三间卧室和浴室)。进入房屋的通道在北侧,而现有房屋的南面则有一个露台,这是一个介于室内和后院之间的空间。地面的延伸部分与当地采石场的石砖粘在一起。上层部分用木板覆盖,与周围房屋上的山墙相互作用,这些房屋通常是用木头覆盖的。
Functionally, house is divided into ground floor (containing living room, kitchen with dining room, and terrace), and loft (with three bedrooms and bathroom). The access to the house is on the northern side, while the southern side of the existing house is extended with a terrace, which is an inter-space between the interior and backyard. Extended parts of the ground level are cladded with stone tiles from local quarry. The upper level is partly covered with wooden planks, making an interaction with gables on surrounding houses, which are usually covered with wood.
© Stefan Ivković
c.Stefan Ivković
在露台的外部,有移动穿孔板,具有防晒功能。这些面板是用数字设计和制造穿孔的,灵感来自东塞尔维亚的传统地毯ćIIM的几何图案。通过这种方式,光和阴影的播放被启用,在内部表面产生不同的光效果。
On the outer side of the terrace, there are mobile perforated panels, with function of sun protection. These panels are perforated using digital design and fabrication, inspired by geometry motifs of ćilim, traditional carpet from East Serbia. In this way, the play of light and shadows is enabled, creating different light effects on the inside surfaces.
© Stefan Ivković
c.Stefan Ivković
© Stefan Ivković
c.Stefan Ivković
Architects Modelart Arhitekti
Location Smilovci, Serbia
Category Renovation
Lead Architects Dejan Mitov, Jelena Mitov, Krsto Radovanović, Bojan Mitov
Area 111.0 m2
Project Year 2017
Photographs Stefan Ivković
Manufacturers Loading...
客服
消息
收藏
下载
最近































