查看完整案例


收藏

下载
架构师提供的文本描述。这座单户式住宅位于阿拉姆,由Axial Studio以热带现代方式设计。通过使用简洁的线条和简单的几何图形,以及进一步增强住宅外部热带氛围的材料处理,可以突出设计特征。
Text description provided by the architects. This single-family residence located in Alam Sutera designed by Axial Studio in a tropical modern manner. The design character can be highlighted through the use of crisp lines and simple geometry forms, and material treatment that further enhance the tropical ambience on the residence’s exterior.
© Fernando Gomulya
c.Fernando Gomulya
坐落在一个550平方米的角落,业主选择建立他的梦想的房子在现场的利益有一个健康的家,一个拥有丰富的自然光和一个流通良好的新鲜空气的家。
Sited on a corner lot of 550 m2, the owner chose to establish his dream house on the site in the interest of having a healthy home, a home with abundance of natural lights and a well-circulated fresh air.
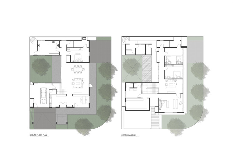
建筑师以清晰简洁的方式设计了这座住宅的分区规划和布局。公共区域,如生活和就餐区,放在一楼,而更多的私人区域,如卧室,设置在一楼。位于停车场内角的两层楼高的服务区。
The architect designed the zoning plan and layout for this residence in a clear and concise manner. Public areas such as living and dining area placed on the ground floor, while the more private area such as bedrooms are set on the first floor. The two-story service area placed on the inside corner of the lot.
© Fernando Gomulya
c.Fernando Gomulya
该住宅的主要建筑质量位于场地的外部部分,目的是探索周围环境的潜在景观。通过建立这样一个内部空间,允许最佳的自然光和新鲜空气流动在里面,然后形成。这一内部庭院空间提供了潜在的景观,从生活和就餐区,同时也作为一个户外游乐场的儿童。
The main building mass of the residence situated on the outside part of the site, with the intention of exploring the potential view of the surroundings. By establishing that, an inner court space that allows optimal natural lights and fresh air flows inside then formed. This inner court space presents potential views from the living and dining area, while also serves as an outdoor playground for the children.
© Fernando Gomulya
c.Fernando Gomulya
这座住宅的立面看起来已经很现代了,线条清晰,几何形式简单。然而,架构师设法使它更进一步,将细节标记为口音并丰富设计特征。
The façade of this residence already looks modern with its crisp lines and simple geometric forms. Yet, the architect manages to bring it a step further with details that mark as accents and enrich the design character.
在这座住宅的一楼,一个水平窗口从立面的一边延伸到另一边。这个门面长的窗户让居民可以从卧室欣赏周围环境的全景。
One horizontal window elongates from one side of the façade to another on the first floor of this residence. This façade-long window gives the resident to enjoy panoramic view of the surroundings from their bedrooms.
© Fernando Gomulya
c.Fernando Gomulya
而从外部看,这种独特的窗口形式成为外部设计的焦点。一个宽的天篷由薄钢板制成,覆盖在这个开口上,加强了细节的设计。
While from the outside, this unique form of a window becomes a focal point for the exterior design. A wide canopy made of thin steel plate covering this opening strengthens the detail’s design.
© Fernando Gomulya
c.Fernando Gomulya
一个鼓舞人心的例子,如何将一个共同的材料发展成为一个具有附加值的设计,可以看到应用在特征墙设计展示在前面的外观和一个在内庭区域。
One inspirational example of how to develop a common material into a design with added value can be seen applied on the feature walls design showcased on the front façade and one on the inner court area.
© Fernando Gomulya
c.Fernando Gomulya
一个简单的加气混凝土20厘米x 60厘米按照建筑师的指导方针,然后安排成模块在一个普通的墙壁表面,从而形成一个三维几何图案的墙,使一个鲜明的口音,一个已经很好的设计。一目了然,人们不会轻易地注意到,三维几何图案是由一系列加气混凝土以这样的方式组合而成的。
A simple aerated concrete of 20cm x 60 cm cut according to the architect’s guidelines, then arranged into modules on one plain wall surface, resulting in a 3-dimensional geometric patterned wall that gives a stark accent to an already well-mannered design. Looking at it on a glance, one wouldn’t easily notice that the 3-dimensional geometric pattern was made of series of aerated concretes composed together in such a way.
© Fernando Gomulya
c.Fernando Gomulya
客服
消息
收藏
下载
最近























