查看完整案例


收藏

下载
© Richard Downer Photography
理查德·唐纳摄影
架构师提供的文本描述。客户简介是对18世纪的Dartmoor农场进行整修和扩建,以提供一个大型的当代家庭住宅,最大限度地利用60英亩的森林山谷环境。一个重要的愿望是尽可能自给自足,并采取周密考虑的环境办法.
Text description provided by the architects. The clients brief was to refurbish and extend an 18th century Dartmoor farmstead to provide a large, contemporary family home that makes the most of the 60 acre wooded valley setting. An important wish was for as self-sufficient a dwelling as possible, with a carefully considered environmental approach.
© Richard Downer Photography
理查德·唐纳摄影
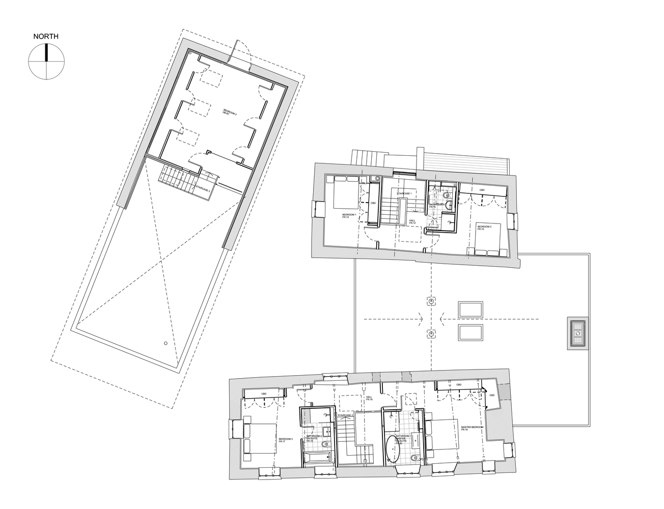
Ground Floor Plans
底层图则
© Richard Downer Photography
理查德·唐纳摄影
虽然这些建筑物没有被列入名单,因为它们位于北波维和国家公园的保护区内,所以一个重要的考虑因素是它们的尊重翻新和扩建。现代干预措施受到当地规划当局的欢迎,他们赞扬新旧之间的清晰和分离。
Although the buildings were not listed, as they were located within the conservation area of North Bovey and the National Park, so a key consideration was their respectful refurbishment and extension. The modern interventions were well received by the local planning authority, who praised the clarity and separation between old and new.
© Richard Downer Photography
理查德·唐纳摄影
在剔除了1950年农舍和谷仓之间杂乱无章的扩建之后,最初的建筑集群的质量可以被欣赏,并随后被添加到其中。为了提供家庭所需的住宿水平,在农舍和谷仓之间插入了一个单层钢框架玻璃结构。这起到了许多作用;它为大楼创造了一个新的心脏,一个现代厨房和客厅,可直接进入外面的花园,并充当农舍、谷仓和花园之间的主要流通通道。原来的建筑提供了更亲密的居住空间和睡眠空间。
After stripping away the sprawl of incoherent 1950’s extensions between the farmhouse and barn, the qualities of the original building cluster could be appreciated and subsequently added to. To provide the level of accommodation required by the family, a single storey steel framed glass structure was inserted between the farmhouse and barn. This served a number of purposes; it created a new heart to the building housing a contemporary kitchen and sitting room with direct access to the outside gardens, and acted as the main circulation route between the farmhouse, the barn, and the garden. The original buildings provided the more intimate living spaces and sleeping quarters.
© Richard Downer Photography
理查德·唐纳摄影
农舍和谷仓以西的挤奶室将提供所需的附属住所。一半的砖石建筑被拆除,一个玻璃和绿色橡木框架结构取代了面向花园的南部部分。这提供了一个双重高度娱乐空间,而寝室位于原来的部分。这座建筑是用一个新的竖缝锌屋顶连接起来的,它引用了该地块的农业遗产。
The milking parlour to the west of the farmhouse and barn would provide the annex accommodation required. Half of the brick and stone building was demolished, and a glass and green-oak framed structure replaced the southern part facing onto the garden. This provided a double height entertaining space, whilst sleeping accommodation was located within the original section. The building was tied through with a new standing seam zinc roof that references the agricultural heritage of the plot.
© Richard Downer Photography
理查德·唐纳摄影
四周广阔的林地提供了可再生的燃料供应四个燃烧木材炉灶位于整个财产,这将作为主要的热源。一个500平方米的地面源热泵阵列供应地板下采暖始终作为二级全年供暖.电力的使用被邻近荷兰谷仓屋顶上的光伏阵列所抵消,太阳能热板为家庭提供了大部分热水需求。
The extensive surrounding woodland provides a renewable supply of fuel for the four wood burning stoves located throughout the property which would act as the main heat source. A 500sqm ground source heat pump array supplies under-floor heating throughout as secondary all-year-round heating. Electrical usage is offset by a PV array on an adjacent Dutch barn’s roof, and solar thermal panels provide much of the hot water requirement of the household.
© Richard Downer Photography
理查德·唐纳摄影
排水设计将包装处理厂与天然芦苇床结合起来,处理污水,现场进入现有的溪水和池塘系统。地表水也同样排入现有的水道,并通过一系列池塘和堰缓冲,以缓解和额外的径流产生。
The drainage design combines a package treatment plant with natural reed beds to process foul sewage, which enters the existing stream and pond system on-site. Surface water is similarly discharged into the existing water course, and buffered through a series of ponds and weirs to ease and additional run-off created.
© Richard Downer Photography
理查德·唐纳摄影
建成后的农用地在恢复历史特征的同时,又将一座破败的农用地带回21世纪,家庭将适应家庭生活方式的变化,同时满足客户强烈的自给自足伦理要求。
The finished project has brought a dilapidated farmstead back into the 21st century whilst reinstating its historical character and the home will adapt to the changing family lifestyle of the family whilst fulfilling the strong self-sufficient ethic of the client.
© Richard Downer Photography
理查德·唐纳摄影
Architects van Ellen + Sheryn
Location Devon, United Kingdom
Category Renovation
Lead Architects Eilir Sheryn, Ian Phillips
Area 400.0 m2
Project Year 2013
Photographs Richard Downer Photography
Manufacturers Loading...
客服
消息
收藏
下载
最近






















