查看完整案例


收藏

下载
© Namgoong Sun
(孙南光)
架构师提供的文本描述。帕纳斯大厦位于三星地铁站的一角,是德黑兰最大的商业区,它不仅是一座新造的建筑,还拥有自己的价值,因为它周围有四家酒店和代表韩国现代形象的建筑,如国际会议中心、COEX购物中心、CALT、亚欧大厦和韩国贸易中心。
Text description provided by the architects. Located at the corner of Samsung subway station, the largest commercial district of Teheran-ro, Parnas Tower has its own value in itself beyond a newly-made architecture in that it is surrounded by the four hotels and the representative buildings which stand for the modern images in Republic of Korean such as the international-scale convention center, COEX Mall, CALT, ASEM Tower, and Korea Trade Center.
© Namgoong Sun
(孙南光)
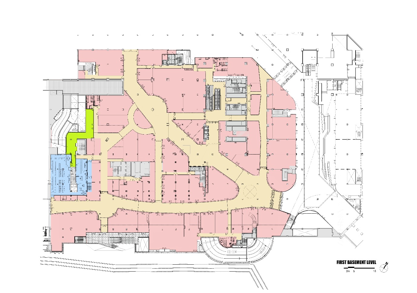
1st Floor Plan
一楼图则
© Namgoong Sun
(孙南光)
帕纳斯大厦是一座商业设施建筑,由8层地下室和38层地下建筑组成,高度183.48m。这两家公司的设计师昌乔建筑师和KMD在设计帕纳斯大厦时优先考虑实现与现有建筑的新和谐,翻修了大洲际汉城帕纳斯酒店的较低层,并设计了帕纳斯购物中心的一层地下室。该建筑的南下部和东面部分反映了邻近韩国贸易中心设计理念的一部分,采用透明玻璃和对角线凸出和凸起的形式设计。为了尽量减少同一地点的旅馆设计造成的干扰,建筑物的北角和南角用对角线完成,建筑物的东侧和西角都是圆形的。
Parnas Tower is a business facility building of 8 basement and 38 above-ground floors with the height of 183.48m. The designers of the two companies, Chang-jo Architects and KMD prioritized achieving a new harmony with the existing buildings in designing Parnas Tower, renovated the lower floors of Grand Intercontinental Seoul Parnas Hotel and designed the first basement floor of Parnas Mall. Reflecting some part of the design concept of the adjacent Korea Trade Center, the southern lower part and the eastern upper part of the building were designed with transparent glass and with diagonal protrusions and retrusions. To minimize the interruption by the designs of the hotels in the same site, the northern and southern corners of the building were finished with diagonal lines and the eastern and western corners of the building were finished with round shapes.
© Namgoong Sun
(孙南光)
黑色的水平百叶窗是用来标高的,这将是单调的,创造了高度的同一性。每隔一段时间附加的百叶窗创造了垂直提升的感觉,并作为美学的工具,根据不同的角度产生建筑的各个方面。
Black horizontal louvers were used for the elevation of the tower that would have been monotonous, creating the identity of the elevation. The louvers attached at regular intervals create sense of vertical escalation and work out as aesthetic tools which generate various facets of the building depending on perspectives.
© Namgoong Sun
(孙南光)
通过在西面立交桥上使用BIPV,可以将建筑物与现有酒店的立面连接起来,产生约25%的照明用电,使建筑达到一级绿色建筑认证标准。
By using BIPV in the spandrel of the west elevation, the building can be connected to the elevation of the existing hotel and about 25% of electric power for lighting can be generated, which enabled the building to achieve the first grade of green building certification criteria.
在底层,翻新酒店的古典大堂与三层楼高的办公室亮丽而现代的大堂形成了强烈的对比,每一层都呈现出各自的个性。这个项目最大的代表空间,巨大的中庭位于两个大厅之间,具有不同的功能和设计理念。26米高的天花板,垂直翼的大理石墙,以及巨大的天窗面积,丰富了空间。通过中庭设计,长乔建筑师计划在大厅之间提供空间上的和谐,并为城市宣传作为公共通道提供了一种新的可能性。
On the ground floor, the classical lobby of the renovated hotel and the bright and modern lobby of the office with the height of 3 floors are in the strong contrast, each of them presenting its own individuality. The largest representative space of this project, the huge atrium lies between the two lobbies with different functions and design concepts. The ceiling of 26m height, the marble walls with vertical fins, and the large skylight area enrich the space. Through the atrium design, Chang-jo Architects planned to provide the spatial harmony between the lobbies and suggest a new possibility of urban publicity as a public passage.
© Namgoong Sun
(孙南光)
构造函数GS E
The constructor, GS E&C, went through complex construction process by adopting non-noise and non-vibration method for the continuous operation of the hotel in the most densely populated area in Seoul. It excavated the lower part and expanded the building with the existing facility propped up using a supporting structure. Applying post tension method and flat slab method, it built the new office building while remodeling the existing hotel. GS E&C also applied three-dimensional simulation method using BIM Modeling and 3D Scanner to secure the high-quality construction through checking and correcting the irrationalities and interruptions in advance.
© Namgoong Sun
(孙南光)
Architects Chang-jo Architects
Location 521 Teheran-ro, Samseong-dong, Gangnam-gu, Seoul, South Korea
Category Mixed Use Architecture
Architect in Charge Joon-Bum Paik
Area 219.385 m2
Project Year 2016
Photographs Namgoong Sun
Manufacturers Loading...
客服
消息
收藏
下载
最近





































