查看完整案例

收藏

下载
© Jonathan Hillyer
乔纳森·希勒
架构师提供的文本描述。克莱姆森大学的瓦特家庭创新中心提供了一个独特的环境,先进的教学技术促进学生的参与和行业伙伴关系,以解决现实世界的问题。该设施位于一个狭长的场地上,毗邻一个生机勃勃、活跃的校园四合院,吸引路人,并通过使用其丰富的程序空间,邀请学生从一个概念向另一个市场提出想法。
Text description provided by the architects. Clemson University’s Watt Family Innovation Center provides a unique environment in which advanced instructional technologies foster student engagement and industry partnerships to address real-world problems. Located on a long, narrow site adjacent to a vibrant and active campus quadrangle, the facility engages passersby and invites students to take ideas from concept to marketplace by the use of its rich program spaces.
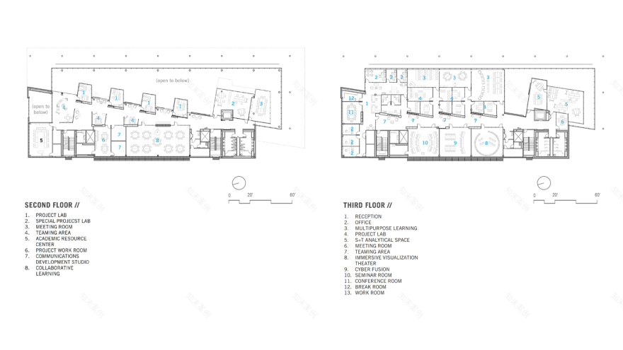
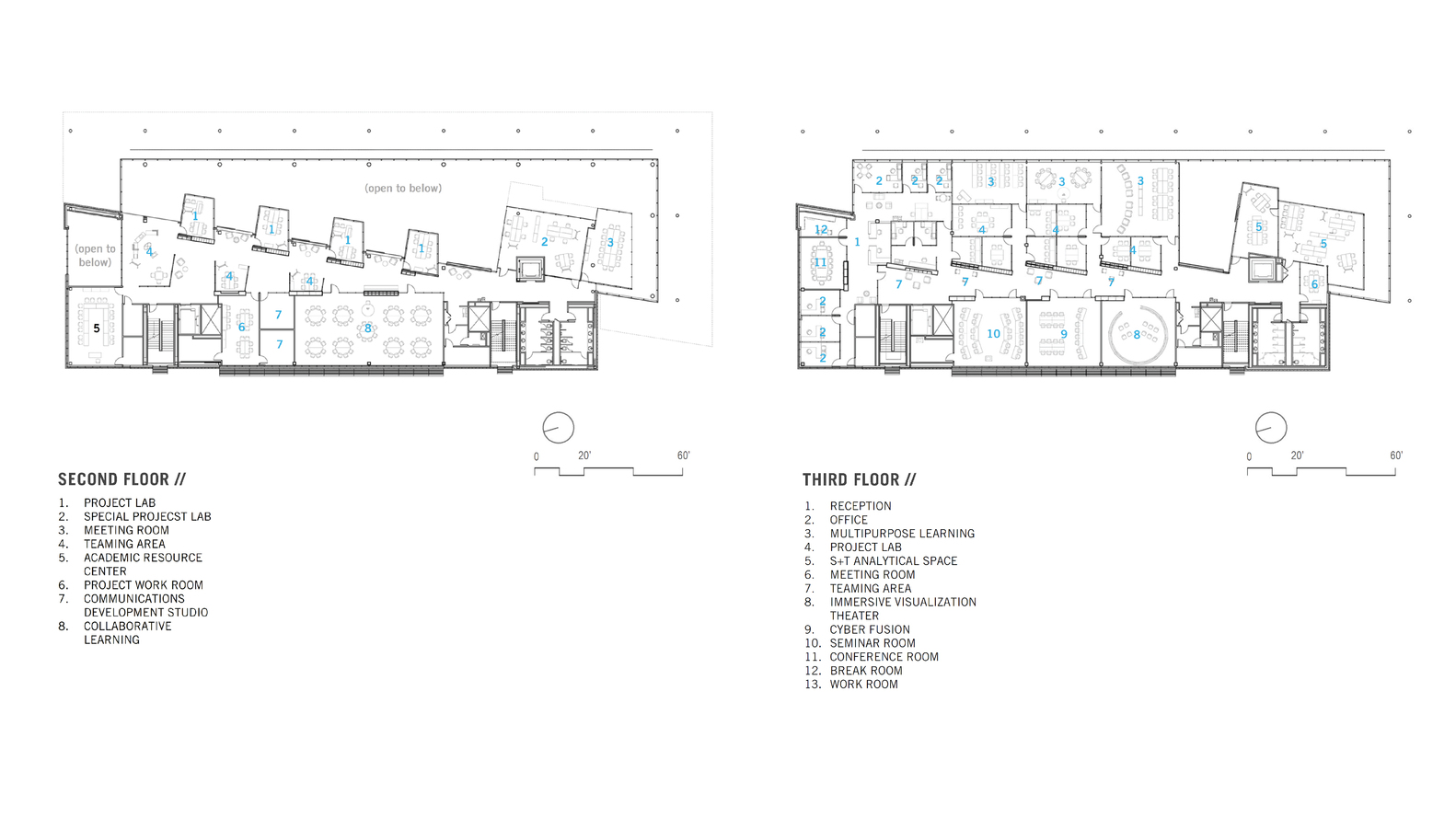
Site Plans and Diagrams
地盘图则及图表
建筑物集中为两个截短的三角形,彼此滑动,形成入口点。西侧三角更坚固,支持核心设施和跨学科实验室。透明的东侧打开,流入四合院,通过一个拱廊,创造了一条南北步行街,可以看到一个开放的画廊和中庭空间。俯瞰四合院的屋顶露台位于东侧顶层。
The building is massed as two truncated triangles slipping past one another and forming entry points. The west side triangle is more solid to support core facilities and cross-discipline laboratories. The transparent east side opens up and flows into the quadrangle by way of an arcade that creates a north-south pedestrian path with views into an open gallery and atrium space. A roof terrace overlooking the quadrangle is located on the top floor of the east side.
© Jonathan Hillyer
乔纳森·希勒
© Jonathan Hillyer
乔纳森·希勒
展示创新是设计的中心目标。层层叠叠的全玻璃墙创造了开放的感觉和充满活力的活动嗡嗡声。在校园规模上,210英尺长的网状结构媒体展示是建筑内部技术创新的外在表现。该外观创造了一个有影响力的数字画布,同时仍然使光线穿透外部,允许视图进出中心,并充当一个遮阳装置。瓦特家庭创新中心将使学生能够通过使用21世纪的技术和促进跨学科合作在一个鼓舞人心的空间,从概念到现实的想法。
Putting innovation on display is a central aim of the design. Layers of full-glass walls create feelings of openness and a vibrant buzz of activity. At the campus scale, a 210-foot long mesh media display acts as an outward manifestation of the technologically-enabled innovation taking place within the building. The façade creates an impactful digital canvas while still enabling light to penetrate the exterior, allowing views into and out of the center, and acting as a shading device. The Watt Family Innovation Center will enable students to pursue ideas from concept to reality by using 21st Century technology and facilitating interdisciplinary collaboration within an inspiring space.
© Jonathan Hillyer
乔纳森·希勒
Architects Perkins+Will
Location Sigma Dr, Clemson, South Carolina, United States
Category Research Center
Area 77000.0 ft2
Project Year 2016
Photographs Jonathan Hillyer, Michelle Litvin
Manufacturers Loading...
客服
消息
收藏
下载
最近
































