查看完整案例


收藏

下载
© Andrea Martiradonna
(Andrea Martiradonna)
架构师提供的文本描述。在这栋建筑的对面,卡普洛尼工厂有节奏的砖块系列,有着棚屋屋顶和工业考古魅力:M89酒店-位于维亚梅肯纳特89号的新四星级酒店-面向一百年前接待一家领先航空公司之一的工厂大厅,现在是古驰(Gucci)的所在地,在皮亚奇进行了一项精心的翻新和扩建项目之后。
Text description provided by the architects. Opposite the building, there is the rhythmic series of brick blocks of the Caproni factory, with their shed roof and industrial archaeology charm: the M89 Hotel – the new four-star destination at number 89 of via Mecenate– faces the factory halls that one hundred years ago hosted one of the leading aviation companies and which are now home to Gucci, after a meticulous renovation and expansion project by Piuarch.
© Andrea Martiradonna
(Andrea Martiradonna)
在梅森新总部落成几个月后,皮亚奇在米兰东郊启动了一个新项目,以加强其作为充满活力的商业中心的地位,该项目已向米兰开放。与周边城市结构的对话-适用于时装公司拥有的35,000多平方米生产工厂的概念的支点-也确定了酒店设施的项目,该设施的建筑设计与原有的体积保持一致,增强了社区的建筑特征。
A few months after the inauguration of the maison new headquarters, Piuarch has started a new project in the east outskirts of Milan, to reinforce its character as dynamic business hub, opened to the city. The dialogue with the surrounding urban fabric – fulcrum of the concept applied to the over 35,000 m2 of the production plant occupied by the fashion company–, also defines the project for the hotel facility, whose building is designed in continuity with the pre-existing volumes, enhancing the architectural identity of the neighbourhood.
© Andrea Martiradonna
(Andrea Martiradonna)
在外面,酒店暗示工厂大厅的轮廓:底层有一堵宽阔的玻璃墙,有一个金属栅栏,与工业建筑的高度相同,是街道透水立面的理想延续。取而代之的是,屋顶用一个当代的钥匙重新诠释了工业棚系统:它的封面形状是一个迷人的复杂轮廓,并向后退一步,将空间留给由全高玻璃墙构成的露台。屋顶还设有全景餐厅,可以看到米兰的天际线,对酒店客人和公众开放。
On the outside, the hotel hints at the outline of factory halls: the ground floor features a wide glass wall with a metal grate, at the same height of the industrial buildings as an ideal continuation of the permeable facade on the street. The roof, instead, reinterprets the industrial shed system in a contemporary key: the cover takes the shape of a fascinating complex profile and takes a step back to leave room to the terrace framed by full-height glass walls. The roof also hosts the panoramic restaurant, with a view of the Milan skyline, open both to hotel guests and to the public.
© Andrea Martiradonna
(Andrea Martiradonna)
在室内,这家酒店的外壳也有着同样的极简主义特征:它的商业职业激发了一种流线型设计,围绕着炭疽灰色、白色和绿色之间精致的色彩对比,以及现代家具和20世纪50年代标志性作品的混合。
Indoors, the hotel boasts the same minimalist character of its enclosure: its business vocation inspires a streamline design, revolving around refined colour contrasts between anthrax grey, white and green and a mix of contemporary furniture and iconic 1950s pieces.
© Andrea Martiradonna
(Andrea Martiradonna)
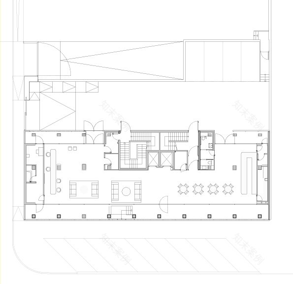
在入口处,接待处有一个大的流动区域,大堂-其舒适的沙发位于地毯的几何图案上-还有一个酒吧:白色天花板,上面有圆柱形的照明装置,与六角形地砖形成鲜明对比,产生了一种令人印象深刻的装饰效果;取而代之的是炭疽灰墙,上面印有复制前卡普罗尼工厂建筑遗产的版画,我们在顶层的餐厅区又发现了这些痕迹。
At the entrance, a large fluid area hosts the reception desk, the lobby –with its comfortable sofas resting on the geometric patterns of the rugs–, and a bar: the white ceiling, spangled with cylindrical light fixtures, is in contrast with the hexagonal floor tiles, creating an evocative decorative effect; the anthrax grey walls, instead, are embellished with prints reproducing the architectural heritage of the former Caproni factory and which we find again in the restaurant area on the top floor.
© Andrea Martiradonna
(Andrea Martiradonna)
© Andrea Martiradonna
(Andrea Martiradonna)
从第一层到第五层,共有50间客房和5间套房,其内部装饰为公共区域的负面部分:墙壁是白色的,天花板是炭疽灰色的,因此给私人区域带来了更大的亮度。面积分别为24平方米和42平方米的客房与套房的区别在于装饰细节,尤其是在拥有橡木地板和优雅胡桃木的套房。
The floors from the first to the fifth host the 50 rooms and 5 suites, whose interiors are decorated as a negative of the public areas: the walls are white and the ceiling is anthrax grey, thus delivering greater brightness to the private areas. With a surface of 24 m2 and 42 m2 respectively, what differentiates the rooms from the suites are the finishing details, more precious in the suites with oak parquet floors and elegant walnut boiserie.
© Andrea Martiradonna
(Andrea Martiradonna)
没有什么是多余的,装饰是通过明智的材料组合和功能分配来确保的,对于一个在室内和室外创造完美一致性的项目来说,加冕和它的多面轮廓是修复建筑的真正主角。
Nothing is superfluous and the décor is ensured by the wise combination of materials and functional distribution, for a project that creates perfect consistency between indoor and outdoor, with the crowning and its multi-faceted outline as the true protagonist of the restored building.
© Andrea Martiradonna
(Andrea Martiradonna)
Architects Piuarch
Location Via Mecenate, 89, 20138 Milano MI, Italy
Category Hotels
Architects in Charge Luca Lazzerotti, Mauro Mandelli
Area 2500.0 m2
Project Year 2017
Photographs Andrea Martiradonna
Manufacturers Loading...
客服
消息
收藏
下载
最近



















