查看完整案例


收藏

下载
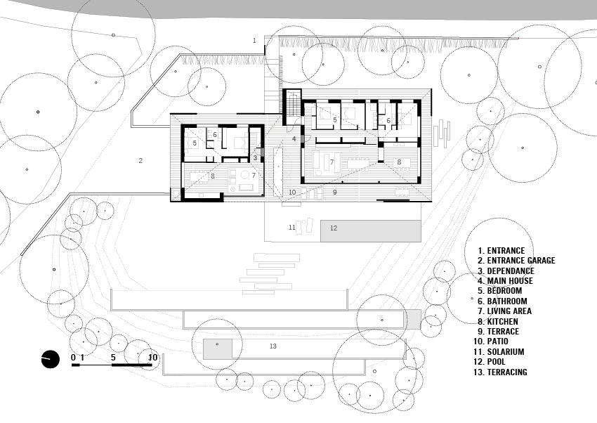
该项目的目标是设计一个300平方米的私人住宅,在一个特殊的地点地区:在山顶,城市和农村界限之间的一个独立的私人住宅。
这座建筑与城市街道保持一定距离,有一个过滤花园,以保护其隐私。
在功能上,这座建筑被强烈地分为一个更封闭的夜间区域(最北部)和一个开放空间起居区(西南)。
西南的玻璃立面俯瞰着公园,所以这座房子与景观有着直接的联系,成为它的延伸。主房和附属空间由露天公共区域(如入口-露台、门廊-Terrazza)、带游泳池的日光浴室和大型私人花园组成。
一个大而深的长方形双臀部屋顶,中央烟囱,给房子一个独特的轮廓,没有侵略性的景观。
Firm Geza
Type Residential › Private House
STATUS Concept
SIZE 0 sqft - 1000 sqft
keywords:architecture, architecture news, interiors, interior design, portfolio, spec, brands, marketplace, products FCT PRIVATE HOUSE
关键词:建筑,建筑新闻,室内设计,组合,规格,品牌,市场,产品FCT私人住宅
客服
消息
收藏
下载
最近




















