查看完整案例


收藏

下载
© Sam Pat - Picture and Color Media
山姆帕特-图片和彩色媒体
架构师提供的文本描述。前台与北温哥华市合作,将造船厂管道商店的场地改造成一个适应性强、令人向往的社区活动空间。在紧缩的预算和日程安排下,我们试图用白色油漆把注意力集中在厚重的木结构上(并与婚纱搭配得很好!),以求在1940年的Pipeefter‘s大楼中脱颖而出。
Text description provided by the architects. Proscenium worked with the City of North Vancouver to renovate the Pipe Shop Venue at the Shipyards into an adaptable and desirable community event space. On a tight budget and schedule, we sought to bring out the best in the 1940’s Pipefitter’s Building by using white paint to focus attention on the heavy timber structure (and pair well with wedding dresses!).
© Sam Pat - Picture and Color Media
山姆帕特-图片和彩色媒体
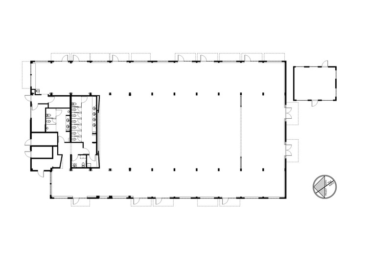
在大楼的另一端加上一小部分洗手间、一条锯齿和一个投影仪表面,剩下的空间可以灵活地用于各种社区活动。在4月8日开业后,管道商店举办了许多婚礼、瑜伽课、晚会、宴会、弹出式市场、反复出现的造船厂夜市、学习活动、摄影、地板曲棍球、被子表演、5K跑步、儿童筹款活动、技术会议和私人活动。未来计划的活动包括时装秀、旅游博览会、啤酒节、鬼屋、圣帕特里克节、摄影节和特斯利尔-沃图斯国家职业博览会!
Locating a small addition of washrooms, a servery, and a projector surface to the far end of the building, the remainder of the space was left flexible for a wide variety of community events. Following the opening on April 8th, the Pipe Shop has hosted numerous weddings, yoga classes, galas, dinners, pop-up markets, the recurring Shipyards Night Market, learning initiatives, photo shoots, floor hockey, a quilt show, a 5K run, a children’s fundraiser, a tech convention, and private events. Future planned functions include a fashion show, a travel expo, Oktoberfest, a haunted house, Saint Patrick’s Day, a photography festival, and a Tsleil-Waututh Nation Career Fair!
Elevations
在投影机表面后面提供了未来上层的空间和额外的编程。一条红色的走廊已经被开辟出来,引导公众去洗手间,并给会场的气氛注入活力。三种颜色的白色和两种颜色的红色油漆被用来进一步强调场地内的几何形状。油漆颜色被选中,以完美地匹配强森耐火材料弹性橡胶墙底座的现有色调。我们一直很高兴看到社区享受的设施,正如我们喜欢它的工作!
Space for a future upper floor and additional programming has been provided behind the projector surface. A red corridor has been carved out of the addition to direct the public to the washrooms and energize the atmosphere in the venue. Three shades of white and two shades of red paint were used to further accent the geometry within the venue. Paint colours were selected to perfectly match available shades of Johnsonite Resilient Rubber Wall Base. We have been thrilled to watch the community enjoy the facility as much as we enjoyed working on it!
© Sam Pat - Picture and Color Media
山姆帕特-图片和彩色媒体
Architects Interiors Inc, Proscenium Architecture
Location 115 Victory Ship Way, North Vancouver, BC V7L 0B2, Canada
Architect in Charge Kori Chan
Design Team James AV Bligh, Yungi Choi
Area 9050.0 ft2
Project Year 2017
Photographs Sam Pat - Picture and Color Media
Category Adaptive Reuse
Manufacturers Loading...
客服
消息
收藏
下载
最近















