查看完整案例


收藏

下载
© Stephane Groleau and Laetitia Boudaud
(C)Stephane Groleau和Laatetia BouDad
架构师提供的文本描述。在蒙特利尔以东一个半小时,这里的风景开始变成起伏的农田,周围有湖泊和小山。就在你到达佛蒙特州之前,北哈特利镇坐落在美国东北部和魁北克不太可能的交汇处。在独立战争期间领导康涅狄格州的英国效忠者定居下来,北哈特利镇周围的农场与早期美洲殖民地的文化有着同样的联系,就像他们与魁北克索瓦农舍的关系一样。
Text description provided by the architects. An hour and a half east of Montreal the landscape begins to rise into rolling farmland punctuated by lakes and small mountains. Just before you reach Vermont, the town of North Hatley sits at the unlikely meeting point of the north-eastern United States and Quebec. Settled by the British Loyalists who led Connecticut during the war of independence, the farms around the town of North Hatley are as much connected to the culture of the early American colonies as they are to the Quebecois barns of the seigneuries.
© Stephane Groleau and Laetitia Boudaud
(C)Stephane Groleau和Laatetia BouDad
该地区丰富多样的农业建筑是由Lee和Macgillivray建筑工作室(Lamas)设计的乡镇农场的背景。该地区丰富多样的农业建筑是由Lee和Macgillivray建筑工作室(Lamas)设计的乡镇农场的背景。
The rich variety of agricultural building in the area is the backdrop for the Townships Farmhouse, designed by Lee and Macgillivray Architecture Studio (LAMAS). The rich variety of agricultural building in the area is the backdrop for the Townships Farmhouse, designed by Lee and Macgillivray Architecture Studio (LAMAS).
© Stephane Groleau and Laetitia Boudaud
(C)Stephane Groleau和Laatetia BouDad
这所房子的客户是一对农民/艺术家夫妇,他们与这一地区有着长期的联系,对土地保护和农业建筑的保护非常感兴趣;这所房子被重新利用的铁杉覆盖着,这些铁杉是从安大略省破败的谷仓中打捞出来的。
The client for the house is a farmer/artist couple with long ties to the area and a keen interest in land conservation and preservation of agricultural buildings; the house is clad in repurposed hemlock salvaged from dilapidated barns in Ontario.
© Stephane Groleau and Laetitia Boudaud
(C)Stephane Groleau和Laatetia BouDad
这所房子位于一个正在工作的农场上,对农场生活的季节性变化很敏感;正面的谷仓门不是装饰性的,而是可以关闭的,以保护大面积的玻璃免受犁、播种和收割周期的影响。Lamas的负责人之一VivianLee解释说:“虽然它显然是面向家庭居住的,但这所房子的设计总是意味着农场建筑的发展和它们独特的空间构造方式。”
The house is situated on a working farm and is sensitive to the seasonal changes of farm life; the barn doors on the facade are not ornamental but can be closed to protect the large expanses of glass from cycles of plowing, sowing, and harvesting. Vivian Lee, one of the principals of LAMAS explains, “Although it is obviously geared towards domestic habitation, the design of the house was always meant as an evolution of farm buildings and the unique ways that they structure space.”
© Stephane Groleau and Laetitia Boudaud
(C)Stephane Groleau和Laatetia BouDad
庭院聚集是魁北克谷仓类型(通道和干草垂直于屋顶线)和安大略省谷仓在1850年后的混合体,通常有一个U形或完全封闭的庭院。这样就形成了一个中央庭院空间,冬天可以避风,夏天可以看到苹果树和马萨维皮湖对面的小山。JamesMacgillivray解释说:“我们一半的客户是一位画家,也是一位伟大的艺术收藏家,所以我们对风景非常敏感。一边是他们自己的燕麦田,另一边是起伏的山丘和马场,在房子建好之前,我们心里就有这些看法,然后三座建筑物的布置就围绕着这些景色进行了。“
The courtyard aggregation is a hybrid of Quebec barn types (in which aisles and haylofts are perpendicular to the roof line), and Ontario barns after 1850 which often had a U-shaped or completely enclosed courtyards. The result is a central courtyard space that is sheltered from the wind in the winter and can open up to views of apple trees and the hills across Lake Massawippi in the summer. James Macgillivray explains, “One-half of our client is a painter and a great collector of art so we were very sensitive to the views. On one side is their own 'eld of oats, another has rolling hills and a horse farm. Before the house was put together, we had these views in our minds and then the arrangement of the three buildings took place around those views.”
© Stephane Groleau and Laetitia Boudaud
(C)Stephane Groleau和Laatetia BouDad
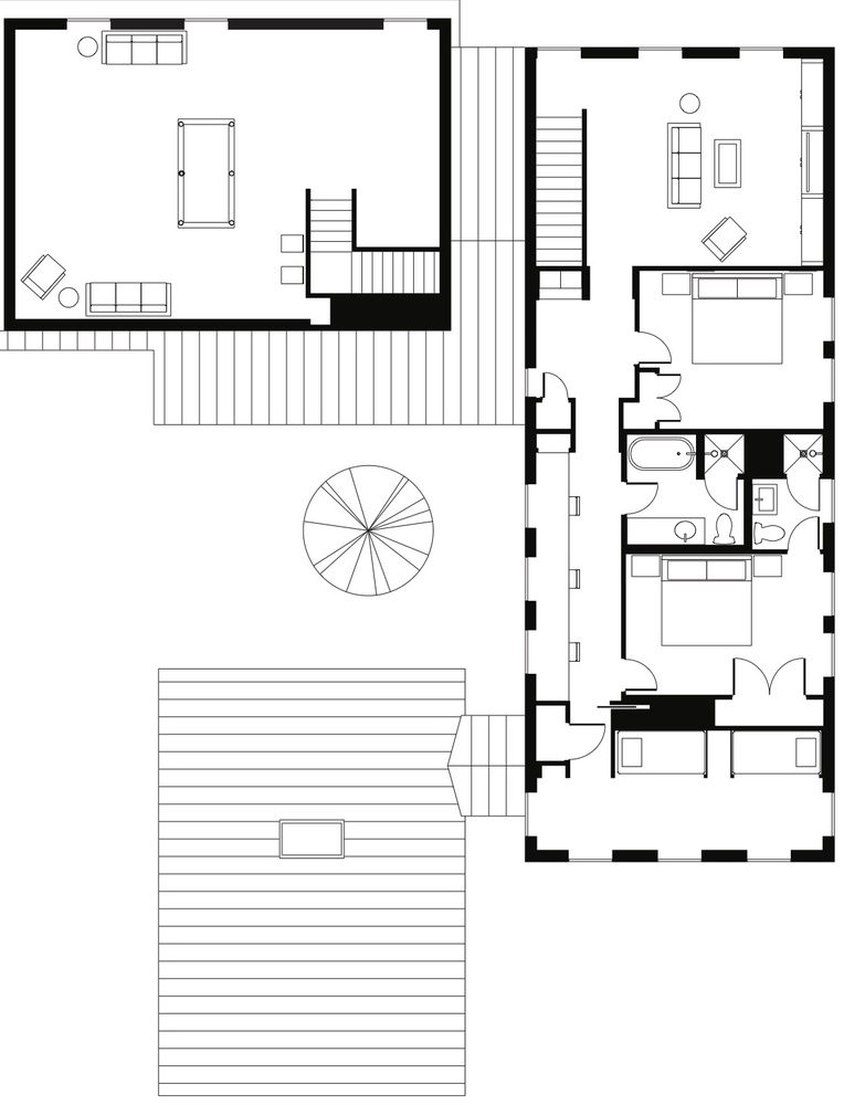
Lower Floor Plan
低层平面图
© Stephane Groleau and Laetitia Boudaud
(C)Stephane Groleau和Laatetia BouDad
景观的概念与建筑师对农业建筑的理解很好地吻合,“我们的第一个设计决定是采用谷仓的”过道“的概念-基本上是一条引入材料和牲畜的通道-然后把它重新定位到外面,以便从周围的‘盾牌’获取视图。”因为房子是在庭院里布置的,它可以回到原来的位置,内部空间可以意想不到的方式叠加在景观的背景上。窗户框架可以看到房子内、房子里和屋外的空间交汇处。
The concept of views dovetailed nicely into the architect’s understanding of agricultural buildings, “Our 'rst design decision was to take the concept of the “aisle” from barns—essentially a thoroughfare for bringing in materials and livestock--and repurpose it outwards to capture views from the surrounding 'elds.” Because the house is arranged in a courtyard formation it goes back in on itself and the interior spaces can be superimposed onto the background of the landscape in unexpected compositions.The windows frame views that capture the intersections of spaces within the house, through the house, and outside the house.
© Stephane Groleau and Laetitia Boudaud
(C)Stephane Groleau和Laatetia BouDad
窗框可以看到房屋内、房屋内和屋外空间的交叉点。过去所有的功能都变成了视觉和空间。
The windows frame views that capture the intersections of spaces within the house, through the house, and outside the house. Everything that used to be functional becomes visual and spatial.
© Stephane Groleau and Laetitia Boudaud
(C)Stephane Groleau和Laatetia BouDad
大约在他们开始为委员会工作的同时,Lamas被列入了MoMA的PS1青年建筑师计划的候选名单。MacGillivray将这两份工作描述为办公室中的二分法,“一方面我们试图为MoMA做一些完全具有争议性和激进性的事情,另一方面我们所做的这个项目确实必须非常严格地坚持某种类型的概念,但也要完全忠于客户的愿景。”
Around the same time that they started work on the commission, LAMAS was shortlisted for MoMA’s PS1 Young Architects’ Program. Macgillivray describes the two jobs as a dichotomy in the office, “On the one hand we were trying to do something wholly discursive and radical for MoMA, and on the other we were doing this project that really had to adhere very strictly to some notion of type but also have total fidelity to the client’s vision.”
© Stephane Groleau and Laetitia Boudaud
(C)Stephane Groleau和Laatetia BouDad
李补充道:“有趣的是,尽管这两个项目看上去完全不同,但它们都在玩着同样的想法,即框架式的视图、过道和空间塌陷成一幅图像。”这些是我们今天继续探索的主题,无论是面包工厂、儿童书店还是房子。“
Lee adds, “funnily enough, even though the two projects look entirely different, both of them were playing with the same idea of framed views, aisles and the collapsing of space into an image. These are themes that we continue to explore today, whether it’s a bread factory, a children’s bookstore or a house.”
Architects LAMAS
Location North Hatley, Canada
Area 4000.0 ft2
Project Year 2016
Photographs Stephane Groleau and Laetitia Boudaud
Category Houses
Manufacturers Loading...
客服
消息
收藏
下载
最近

















