查看完整案例


收藏

下载
架构师提供的文本描述。该项目扩大了多米尼克·佩罗设计的现有建筑,目的是将巴黎地区各大学图书馆和研究中心以及法国国家图书馆的文件存档。
Text description provided by the architects. Extension of an existing building designed by Dominique Perrault, this project is intended to archive documents from the libraries of universities and research centers in the Paris region, as well as from the French National Library.
© Julien Lanoo
朱利安·拉诺
© Julien Lanoo
朱利安·拉诺
© Julien Lanoo
朱利安·拉诺
CTLES由DominiquePerrault设计,在网站上强加了一个强大的身份。建筑布局的逻辑和建筑风格构成了一个和谐而恰当的整体,建筑的顺序和内部道路的创造赋予了场地的结构。保持现有建筑物的一致性和完整性,我们的增加代表了一个自然的延伸,但分离,以避免扭曲原来的结构。
The CTLES designed by Dominique Perrault imposes a strong identity on the site. The logic of the layout and the architectural style constitute a harmonious and appropriate whole; the building’s sequences and the creation of the internal road give the site its structure. Maintaining the consistency and integrity of the existing building, our addition represents a natural extension, but detached to avoid distorting the original structure.
© Pierre l'excellent
皮埃尔·L‘优秀
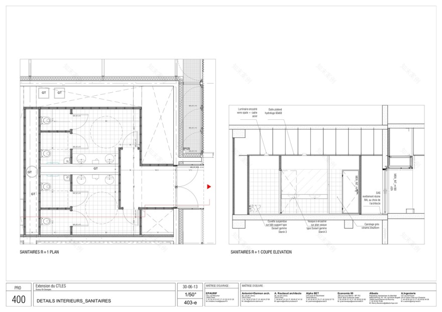
为了确保档案的妥善保存、文件的方便流通和用户的方便,该项目依赖三项主要功能原则:两个筒仓建筑物保存文件收藏,由一个自然光的中央画廊提供服务,用一个包裹着的皮肤来保护周围的所有技术要求。
To ensure proper conservation of the archives, the easy flow of documents and ease for the user, the project relies on three major functional principles: Two silo buildings to conserve the document collections, served by a central gallery with natural light, secured by an enveloping skin bringing together all the technical requirements on the periphery.
© Julien Lanoo
朱利安·拉诺
Section 04
Section 04
© Julien Lanoo
朱利安·拉诺
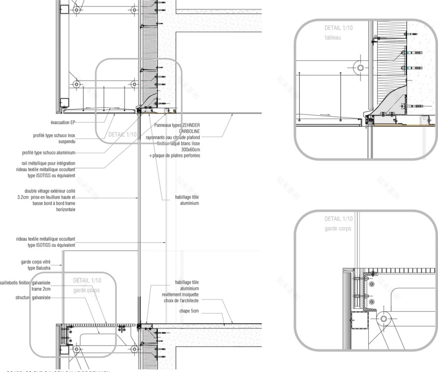
从实现和建筑表达的角度看,延展与佩罗的建筑具有连续性。再次,以金属为唯一的材料,延伸是覆盖有脉不锈钢,它的亮度与原始铝的迟钝对比。
From the point of view of both implementation and architectural expression, the extension works in continuity with Perrault’s building. Again taking metal as the sole material, the extension is covered in veined stainless steel; its brightness contrasts with the dullness of the original aluminum.
© Pierre l'excellent
皮埃尔·L‘优秀
Architects Antonini + Darmon Architectes
Location Le Génitoy, 77600 Bussy-Saint-Georges, France
Area 10000.0 m2
Project Year 2017
Photographs Pierre l'excellent, Julien Lanoo
Category Library
Manufacturers Loading...
客服
消息
收藏
下载
最近























































