查看完整案例


收藏

下载
© Bruno Klomfar
布鲁诺·克洛姆法尔
架构师提供的文本描述。新的教学理念要求有新的建筑形式。为了将埃德拉赫小学改造成当代集群学校,这座新建筑将大师班和分组室布置成小单元,并提供了广泛的空间配置。循环空间缩小到最小。
Text description provided by the architects. New pedagogical concepts ask for new architectural forms. To transform the elementary school in Edlach into a contemporary cluster school, the new building arranges the master classes and group rooms as small units and offers a wide range of spatial configurations. The circulation space is reduced to a minimum.
© Bruno Klomfar
布鲁诺·克洛姆法尔
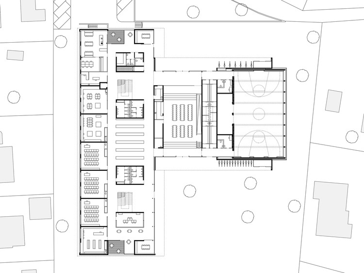
First floor plan
一楼平面图
© Bruno Klomfar
布鲁诺·克洛姆法尔
除了现有的健身房外,这座70米长的新主楼在两层上布置了教学室。课程开放到一个玻璃中央核心,慷慨地淹没在日光下。它在一些地方扩展,并定义了用于集体工作和放松的区域。有屋顶的,木质的,窄边的有切口的阳台,也可以作为户外课程.学校和体育馆之间的纽带是玻璃的、多功能的大厅,也是学校的主要入口。在一楼有一个图书馆,特别班,会议室和教师室,以及衣柜和厕所。两个独立的混凝土楼梯通向教室。
Parallel to the existing gym, the 70-meter-long new main building arranges the teaching rooms on two levels. The classes open to a glazed central core, generously flooded by daylight. It expands in some places and defines zones for group work and for relaxation. Roofed, wood-clad, incised balconies on the narrow sides also serve as outdoor classes. The link between the school and the gym is the glazed, multifunctional hall, also the main entrance to the school. On the ground floor there are a library, special classes, meeting and teacher rooms as well as wardrobes and toilets. Two free-standing concrete staircases lead to the classroom level.
© Bruno Klomfar
布鲁诺·克洛姆法尔
© Bruno Klomfar
布鲁诺·克洛姆法尔
木头是无所不在的-在框架,表面的包覆和教室的内部设计。这座体育馆的外墙还覆盖着银杉板,现在已经进行了热升级。使用天然产品,注重细节,使本建筑成为一个和谐愉快的教与学场所。
Wood is omnipresent – in the framework, the cladding of the facade and the interior design of the classrooms. The gymnasium, whose façade is also clad in silver fir panels, has undergone thermal upgrading. The use of natural products and the attention to detail make this building a harmonious and cheerful place of teaching and learning.
© Bruno Klomfar
布鲁诺·克洛姆法尔
Architects Dietrich | Untertrifaller Architekten
Location Edlach, 6850 Dornbirn, Austria
Area 3770.0 m2
Project Year 2016
Photographs Bruno Klomfar
Category Elementary & Middle School
客服
消息
收藏
下载
最近




















