查看完整案例


收藏

下载
Courtesy of Design Guild
设计协会提供
架构师提供的文本描述。私人住宅的设计就是设计家庭成员的生活。我们需要充分了解他们的生活方式。为了这个项目,经过几次会议,我们为他们身边的每个家庭成员做了故事。在他们都同意了这位建筑师的想象之后,我们终于开始在纸上作画了。我们在这个项目中没有太多的哲理和风格,但大多是互动和相互理解的。
Text description provided by the architects. Designing private house is all about designing the life of family members. We need to fully understand their life styles. For this project, after several meeting, we made stories for each members of family at their side. and, after all of them agreed with this architect's imagination, we started to draw in paper finally. There is not much our philosophy and style in this project, but mostly interaction and mutual understanding.
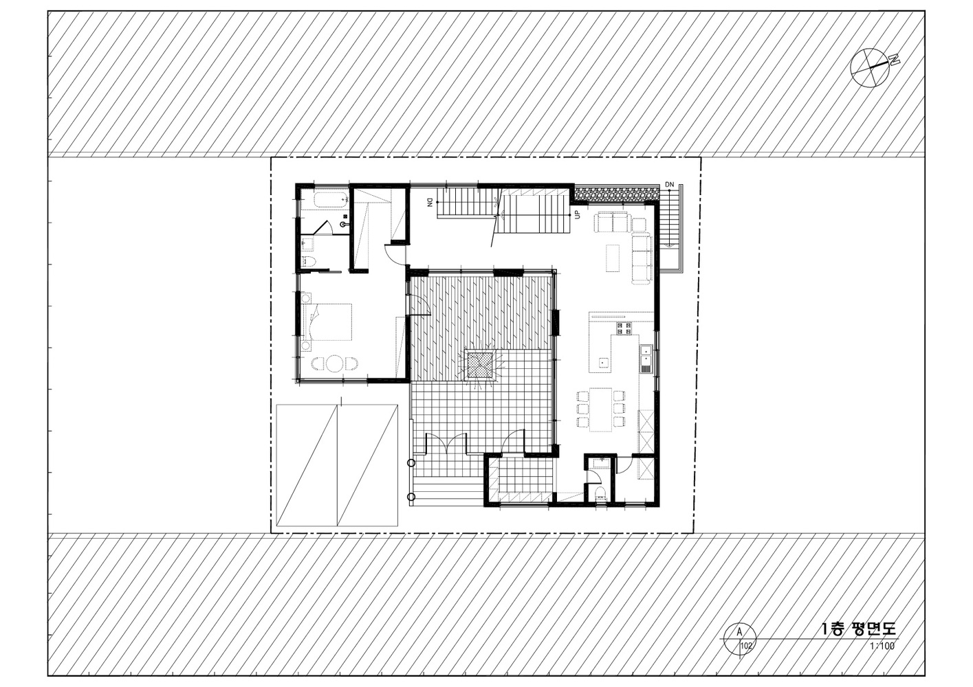
Program Diagram
这所房子位于私人住宅社区的中心。即使是在上坡之初,土地也几乎是平坦的。实际上,大多数的私人住宅都是面向前院的,而前院并不那么宽,所以人们不得不把自己锁在里面:把窗帘都关上,不能真正走出前线。多不方便.。在他们穿着得体之前,他们不可能真正走出前线。
This house is located in the middle of private house community. Even though, it is at the beginning of uphill, the land is almost flat. Actually mostly private houses are facing front yard which is not so wide, so it made people to lock themselves from inside: shutting all the curtains, and cannot really go out the the frontyard. how inconvenient.... before they wear properly, they cannot really go out the frontyard.
Courtesy of Design Guild
设计协会提供
我们在房子中央安装了庭院,以获得更好的隐私。他们不需要关上窗帘,他们不需要关心路过的人。他们可以在院子里吃早餐,在院子里穿睡衣。他们可以在院子里擦干内衣。而且,他们可以有自己美丽的秋天的天空框架在他们的房子。
We installed courtyard in the middle of house, for the better privacy. They don't need to shut the curtains, they don't need to care about people passing by. They can have breakfast at the courtyard with pajama at the courtyard. They can dry underwears at the courtyard. and, they can have their own beautiful autumn sky framed by their house.
Section 05
Section 05
Courtesy of Design Guild
设计协会提供
Section 02
Section 02
这座房子由四个门框组成。每个人都有自己的阁楼。左边大一点的给妈妈和爸爸,右边小一点给二楼的两个女儿。一楼是厨房、客厅和奶奶的房间。地下室有小电影院和酒吧。
This house is composed with 4 gabled masses. each masses its own attic. Left bigger one is for mom and dad, and right smaller ones are for both daughters on 2nd floor. and 1st floor is kitchen, Living room and grandma's room. there is small cinema and bar on basement.
Courtesy of Design Guild
设计协会提供
Architects Design Guild
Location Seoul, South Korea
Area 124.0 m2
Project Year 2016
Category Houses
Manufacturers Loading...
客服
消息
收藏
下载
最近




















































