查看完整案例


收藏

下载
架构师提供的文本描述。Flow Hostel位于布达佩斯一座百年历史悠久的市中心历史建筑的二楼。我们的团队被要求把整个地区变成一家有98张床位的旅舍,供年轻游客使用。除了可容纳4至8人的客房外,还设计了一系列公共区域,包括接待厅、休息室、自助厨房食堂和媒体区。
Text description provided by the architects. FLOW Hostel occupies the second floor of a more than hundred-year-old downtown historic building in Budapest. Our team was asked to turn the whole area into a hostel with 98 beds for young tourists traveling on a budget. In addition to rooms with capacities of four to eight people, a chain of communal areas was designed comprising of an entrance hall including the reception, a lounge, a canteen with self-service kitchen and a media area.
© Balázs Danyi
(Balázs Danyi)
© Balázs Danyi
(Balázs Danyi)
在二十一世纪,空间体验取代了黑暗的走廊和未知的准备,房地产的空间布局和功能发生了几次变化:它曾经是一间办公室,一间学生宿舍,最近几年,它作为另一家剧院发挥着作用。2015年,我们的团队受命把这个地方改造成一家旅店。
Spatial Experience Instead of Dark Corridors and Preparation for the Unknown During the XXth Century, the spatial arrangement and function of the real estate changed several times: It used to be an office, a student dormitory and in recent years it functioned as an alternative theatre. Our team was commissioned in 2015 to transform the place into a hostel.
© Balázs Danyi
(Balázs Danyi)
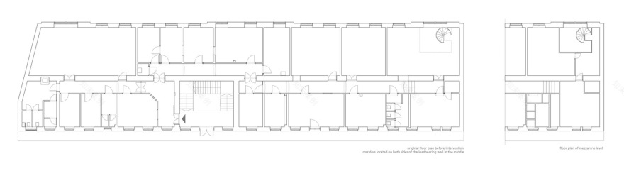
该建筑具有纵向布局,中间有一个承重墙,将平面图分成两个区域,再由垂直于立面的墙壁隔开。这些墙创造了一条相互连接的广阔空间,叫做爱马仕。
The building has a longitudinal layout with a load-bearing wall in the middle dividing the floor plan into two tracts, that are further divided by walls perpendicular to the facade. These walls had created a chain of interconnected generous spaces called emphilade.
Floor Plan - After
楼面平面图-事后
由于建筑物的不同用途,出现了几条走廊,使房间能够独立运作,但与此同时,它们变成了漫长、黑暗和狭窄的交通空间。
As different types of uses occupied the building several corridors appeared that enabled rooms to operate independently, but at the same time, they became long, dark and narrow transit spaces.
© Balázs Danyi
(Balázs Danyi)
我们不仅希望在设计过程中消除这些区域,而且希望将旅舍内游客的日常活动转变为一种令人兴奋的空间体验,并提供明亮和宽敞的空间。
We did not only want to eliminate such areas during the design but wanted even to turn visitors’ daily movements inside the hostel an exciting spatial experience with bright and generous spaces.
© Balázs Danyi
(Balázs Danyi)
学习过去的地方,我们还想为未来可能发生的变化做好准备,方法是找出能够以尽可能低的时间和基础设施成本最大程度地进行功能修改的体系结构方法。
Learning from the past of the place we also wanted to prepare for possible future changes by finding out architectural means that enable functional modifications to the possibly highest extent on the lowest possible cost of time and infrastructure.
© Balázs Danyi
(Balázs Danyi)
公共活动空间链:多功能结构,中立基础设施-我们的想法是利用社区功能来避免空间的单调性:我们把这些功能指定为把整个楼层连接在一起的空间链,作为对地板的解释。
Chain of Public Activity Spaces: Versatile Structures, Neutral Infrastructure We had the idea to use the community functions to avoid spatial monotonicity: instead of separate rooms, we designated these functions as a chain of spaces bonding the whole floor together as a paraphrase to the emphilade.
© Balázs Danyi
(Balázs Danyi)
采用均匀的油毡地板、均匀的白墙和天花板以下的索盘,为各种机械系统和其他永久元件提供了一个中立的“基础设施”,可以很容易地适应未来未知的使用变化。
With the homogeneous linoleum flooring, the uniformly white walls and the arrangement of cable trays below the ceiling for the various mechanic systems and other permanent elements we made a neutral ’infrastructure’ that can be easily adapted to unknown future changes in use.
© Balázs Danyi
(Balázs Danyi)
在这个中立的基础上,每个公共区域都通过家具的设计和我们设计的内部习惯中其他容易变化的元素,得到了一个独特的特征。我们设计了模块化、轻量级和易于拆卸的内部元素,因为这是在最短的时间内改变的层。
Onto this neutral base, each public area was given a unique character through the design of furniture and other easily changeable elements of the interior custom designed by us. We designed modular, lightweight and easily demountable interior elements since this is the layer that is to change in the shortest period of time.
© Balázs Danyi
(Balázs Danyi)
当游客们想要到达他们的房间时,他们会穿过这一混合的空间,这些空间具有不同的物理特征,提供多样化的活动,而不是黑暗和单调的走廊。
When visitors want to reach their room they walk through this mixture of spaces with heterogeneous physical characters that provide versatile activities instead of dark and monotone corridors.
Architects PRTZN Architecture
Location Budapest, Gönczy Pál u., 1093 Hungary
Lead Architects Gergely Hory, Zoltán Major, Péter Müllner
Area 660.0 m2
Project Year 2016
Photographs Balázs Danyi
Category Adaptive Reuse
Manufacturers Loading...
客服
消息
收藏
下载
最近





























