查看完整案例


收藏

下载
这所新学校的建造是这个项目的第一阶段。它可以通过以下三个想法来总结。
广场
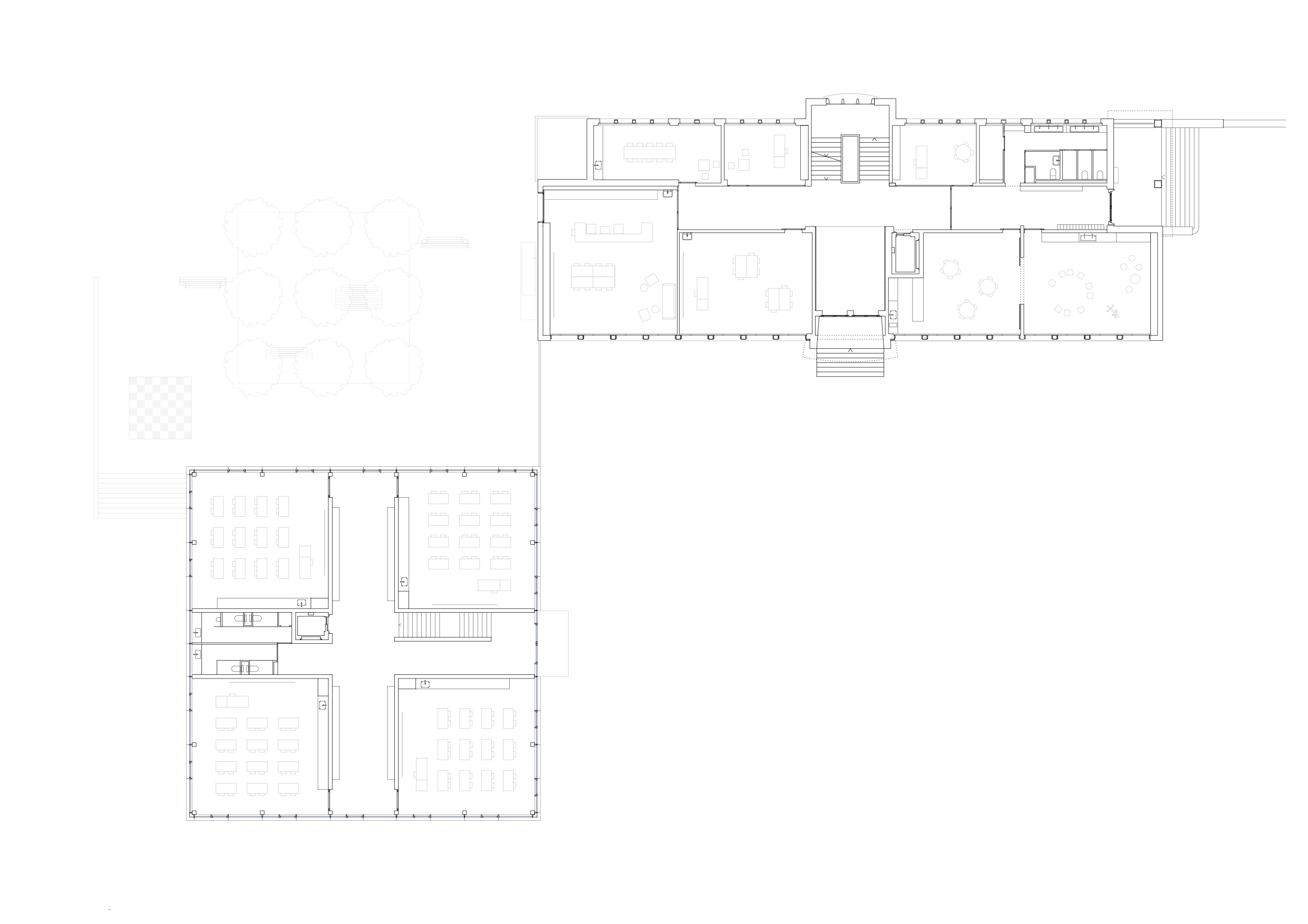
这所新小学是一座非常紧凑的建筑,它把自己插入到村子里。就其规模和位置而言,该建筑与现有学校和较小的乡村住房有着便捷的互动关系。该项目提供了一个全新的公共空间,为学校中心和村庄之间提供了新的联系。利用校园和乡村广场之间的两个不同的层次,地下大厅把旧学校和新学校连接起来。
可儿家族
四重混凝土墙与金属外壳的轻量化形成鲜明对比。节目的每一个部分,包括流通和服务,都在利用自然光。教室总是布置在角落里。这个职位提供了各种各样的观点和与上下文的关系。连续的和线性的立面表示建筑物的辐射成分。
硬壳
与玻璃板相比,镀锌板表现出了强度和耐久性。这种材料是根据天气条件、日光的特性或外观的老化而选择的。材料的野蛮性质是对“Rh ne山谷”高山地貌暴力的回应。
这项工作的第二阶段是对1956年建造的现有学校进行翻修。
对现有结构的主要干预措施是建造电梯、建造新的抗震墙和扩建教室。这些技术设施已按照最新标准进行了重建。挑战在于保持原始类型的性格和品质。
在校园下面,新的大厅被设计成一个多用途的空间。把新旧学校连在一起,就成了蓝色礼堂的新入口和延伸。公众可以使用学校中心的这一部分。
Firm R2A architectes
Type Educational › Elementary School Nursery
STATUS Built
YEAR 2016
SIZE 10,000 sqft - 25,000 sqft
BUDGET $5M - 10M
keywordsarchitecture, architecture news, interiors, interior design, portfolio, spec, brands, marketplace, products Ecole de Riddes
关键词建筑,建筑新闻,室内设计,组合,规格,品牌,市场,Ecole de Riddes
客服
消息
收藏
下载
最近























