查看完整案例

收藏

下载
Shawm House是一个多奖的自建和真正独特的项目。肖姆是农村住宅设计、创新和建设的典范,坐落在一个美丽但暴露的诺森伯兰环境中。这座房子是为退休夫妇安妮和托尼·彭德在他们现有的农舍内设计的,是MawsonKerr建筑公司的Dan Kerr和客户的儿子Richard Pender合作五年的产物。
该项目需要一个复杂的地点,挑战简短和预算限制,以产生一个优雅,清脆和刺激的建筑。值得注意的是,尽管这不是最初的意图,尽管之前没有这样规模的建筑经验,理查德继续自己建造房子。
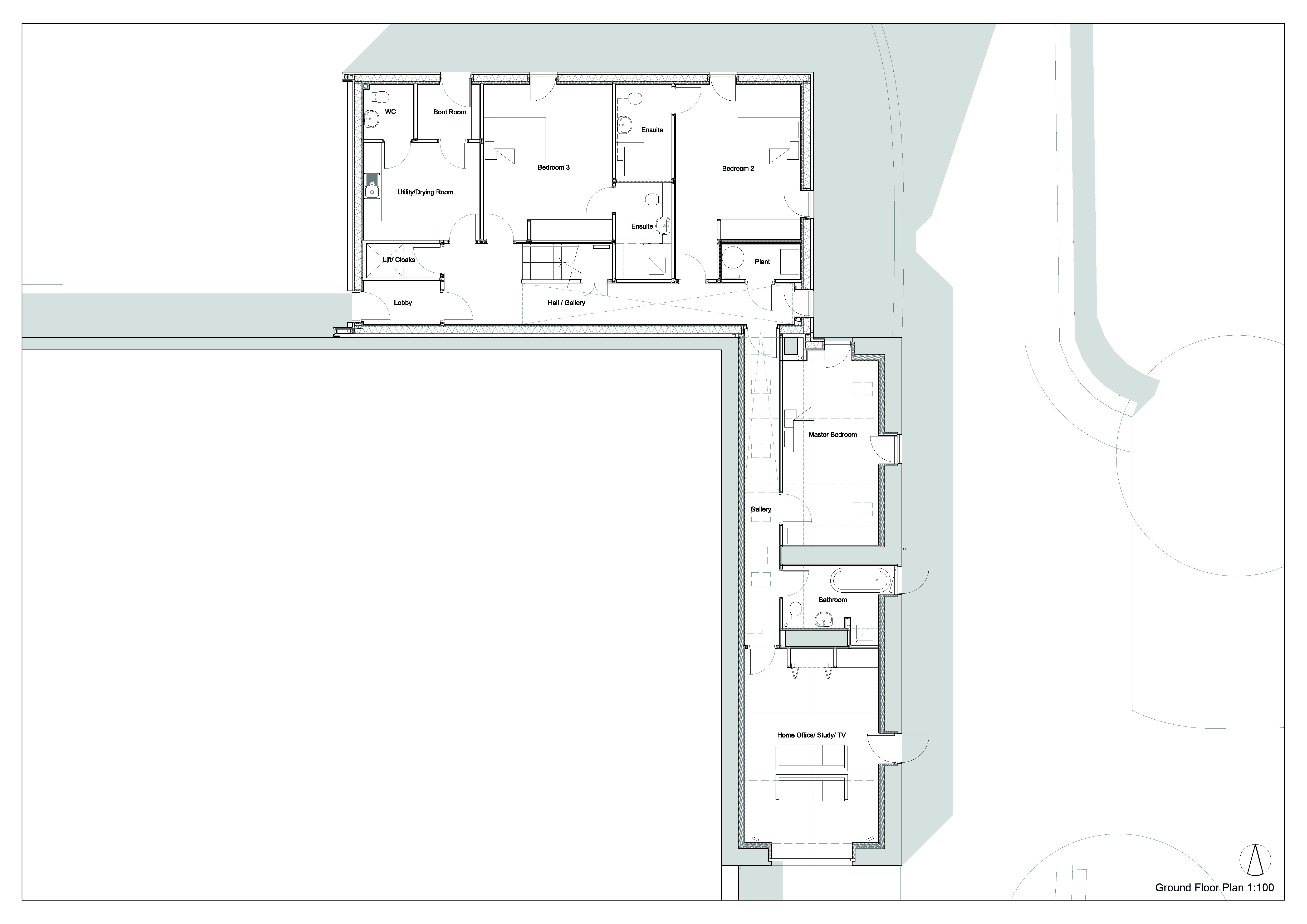
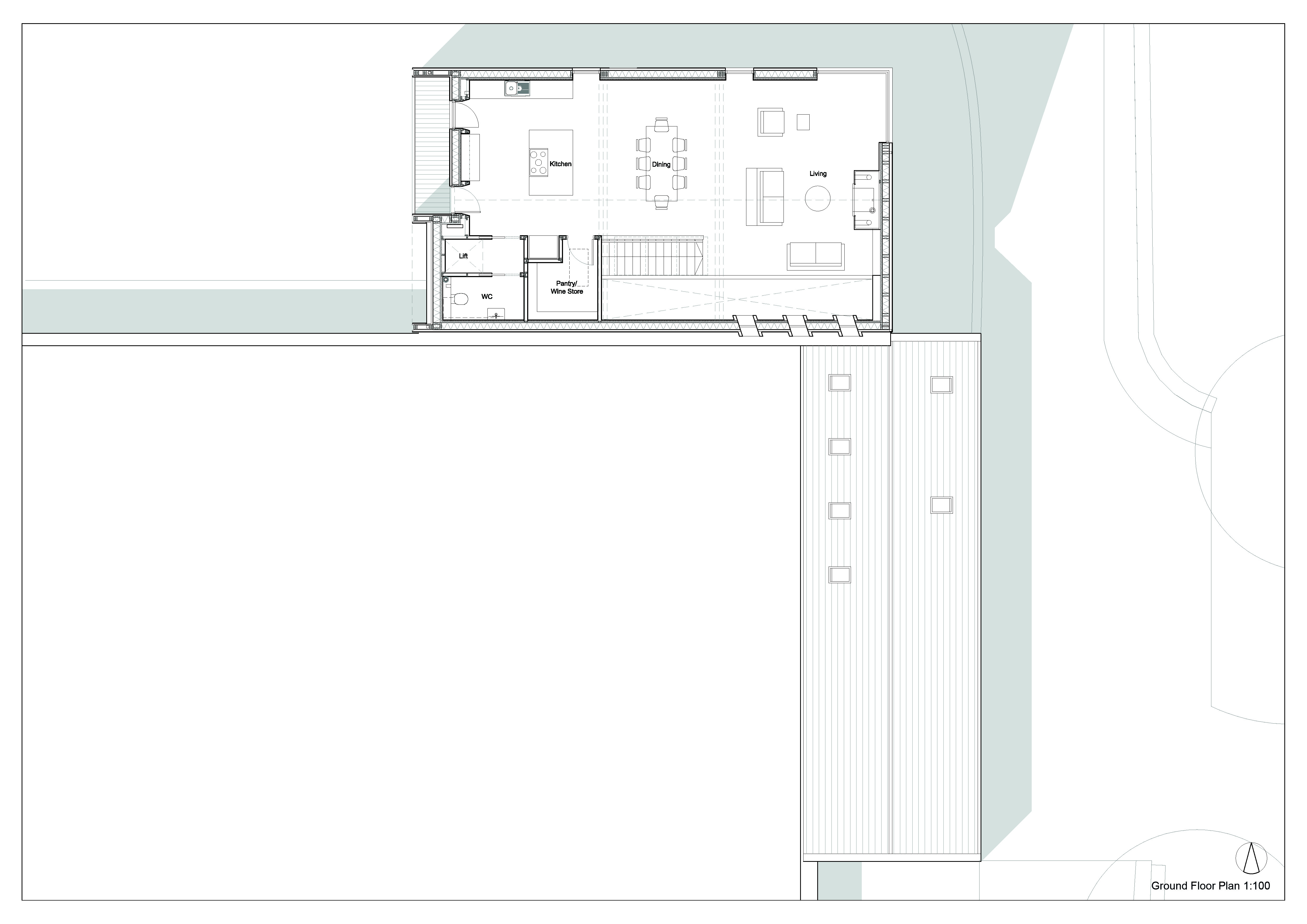
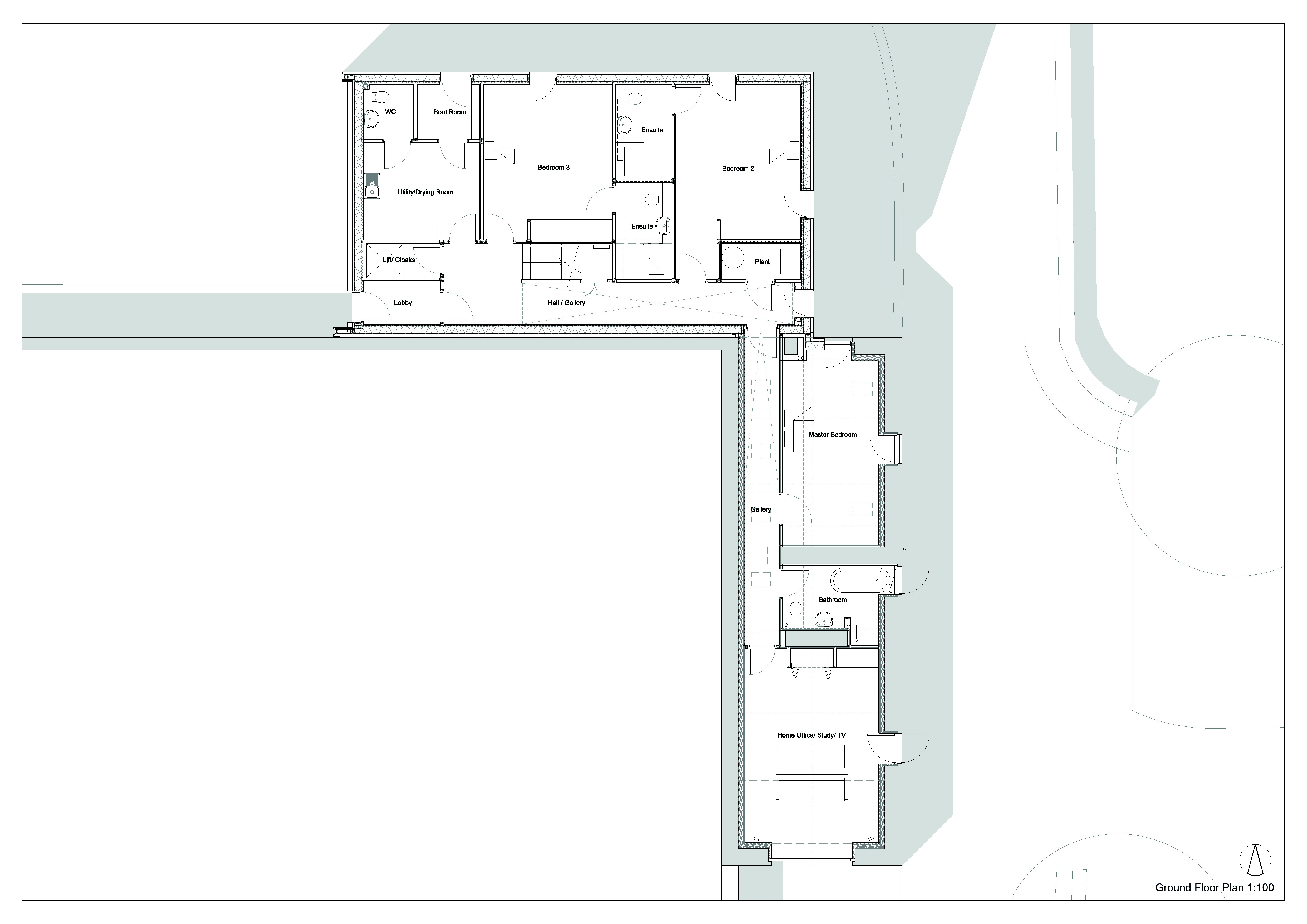
被当地规划当局认为是在开阔的乡村,在一个上市建筑的宵禁中,由于“设计质量极高”,它获得了规划许可。这所房子由一个木结构新建筑组成,连接到一个小的现有的石头稳定块。这些元素和新的木结构建筑被“锚定”到现有的石墙,这是一个挡风和轴心之间的新建筑。
该设计是由一个简单的谷仓形式,本地来源的材料和框架视图驱动的。一个人知道周围的乡村,而任何忽视的问题,客户的现有农舍都成功地解决了。虽然这一次的布局是为了空间质量和景观,而不是为了防御,但这一次的布局是以该地区的历史遗迹为先导,在一楼有居住空间。房子被一条厚厚的落叶松“毯子”包裹着,它无缝地包裹着屋顶和墙壁,下面是一座高度隔热、密闭的建筑。内部巧妙地利用自然光和空间对比,结合温暖的木材纹理与干净的白洗墙形成一个温暖和愉快的空间,让客户享受。
生活和工作现场理查德制造了整个超大木架在旧干草棚与一个专门设计的夹具。在整个项目中都使用了当地的材料。落叶松包层是专门来源于边界和树木砍伐本身,并已在整个房子使用定制的家具,厨房,桌子和楼梯。房子和车库的山墙尽头的石头是从诺森伯兰来的。
结合Passivhaus原则,建筑的设计达到了最高的能效标准,同时又不影响设计的美学。对新的和现有元件的超级绝缘、三层玻璃化、极密闭的建筑和机械热回收通风都减少了能源需求,使包括太阳能光伏发电和生物质锅炉在内的综合可再生能源能够满足绝大多数建筑的能源需求。为了避免热桥接,在详细设计所有连接处时都非常小心;整个木结构框架位于泡沫玻璃块上,巨大的无框三重玻璃窗上方的结构完全是用木材悬臂起来的。雨水收集进一步减少了建筑物的占地面积,并认真注意无障碍环境,包括增加一个小电梯,今后对房屋进行验证,并进一步提高建筑物的整体可持续性。
尽管人们最初对这样一座雄心勃勃的建筑采用自建方式感到担忧,但最终证明它是该项目成功的关键因素之一,就像它在整个过程中为“建筑师”和“建设者”之间的合作精神所做的那样,并为完成的建筑保留了质量和设计意图-一个真正的设计和建造。事实上,MawsonKerr和Richard之间的关系是如此成功,他们正将这些知识和经验作为一项新企业的蓝图,旨在为鼓舞人心的、以设计为主导、真正可持续的住房的建设和发展提供一个步骤性的改变。
Firm MawsonKerr Architects
Type Residential › Private House
STATUS Built
YEAR 2017
Photos Jennie Webb, Rob Rhodes
keywordsarchitecture, architecture news, interiors, interior design, portfolio, spec, brands, marketplace, products Shawm House
建筑、建筑、新闻、室内、室内设计、组合、规格、品牌、市场、产品Shawm House
客服
消息
收藏
下载
最近




















































