查看完整案例


收藏

下载
© Peerapat Wimolrungkarat
c Peerapat Wimolrungkarat
架构师提供的文本描述。这座混合用途的建筑位于曼谷一个迅速扩张的地区,它仅仅是对现代热带城市生活的解决方案。在一座320平方米的大院内,陈旧的现有房屋结构被夷为平地,一座新的4层建筑被计划用来适应新的多功能用途-一间位于底层的建筑设计室,一座位于楼上的小型家庭的房子,以及顶层的一个艺术收藏空间。
Text description provided by the architects. Located in a rapidly expanding zone of Bangkok city, this mixed-use building is a mere solution to what it means by the contemporary tropical urban living. Within a 320 square-meter compound, the obsolete existing house structure was leveled and a new 4-storey building was planned to suit new multi functional purposes – an architectural design office on the lower floor, a house for a small family on the upper floors, and an art collection space on the top floor.
© Peerapat Wimolrungkarat
c Peerapat Wimolrungkarat
从一开始,建筑师,他也是业主,提出了“与时间生活的艺术”的概念。这样的想法就是让居民在建筑物里快乐地变老,受到热带环境的启发,从而使建筑物与“时间和树木”有很强的关系。时间的概念是由建筑师如何表达当地材料的质量来构思的,当这些材料与曼谷炎热潮湿的气候持续互动时。40%的地块是专门用于树木和绿地的。这当然会带来快乐的生活。这意味着每一层楼的布局和空间规划都是为了提供持续的交叉通风,以创造热舒适性,从而达到降低能耗的目的。
From the start the architect, who is also the owner, has come up with the concept “The Art of Living with Time.” Such an idea is to have the inhabitants joyfully grow old with the building and be inspired by the tropical environment, so that the building has to have strong relationships with “time and trees.” Consequently, the concept of time is conceived by how the architect can express the qualities of available local materials when they perpetually interact with the hot-humid climate in Bangkok. The 40% of the plot is dedicated for trees and the green space. This will of course lead to the part of joyful living, meaning that the layout and the space planning of each floor are specifically designed to provide the constant cross ventilation in order to create the thermal comfort, which would anticipate the reduction of energy consumption.
© Peerapat Wimolrungkarat
c Peerapat Wimolrungkarat
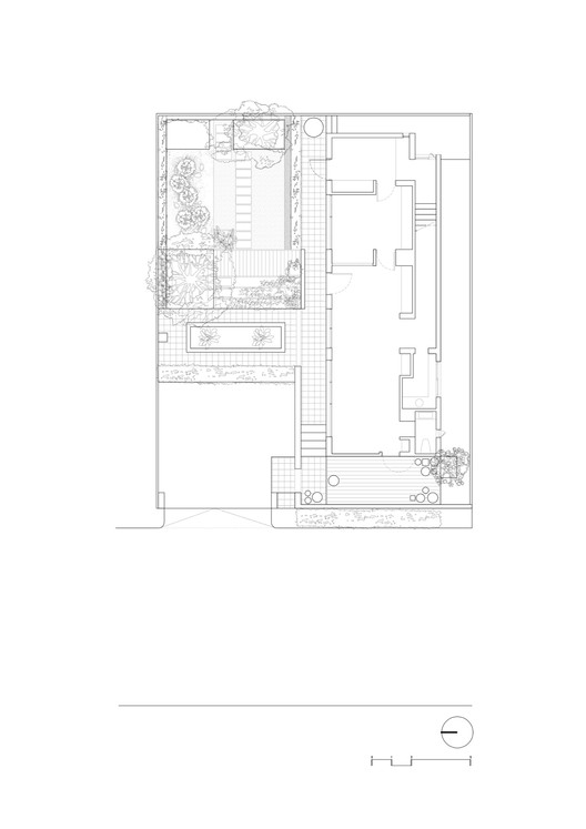
Ground Floor Plan
建筑呈简单的长方形,南北轴线高度宽,东西向高15米,四面由平面单元构成,而北侧则由平面单元构成,这架飞机被推开,以创造一个双层的立面,因为这个空间可以在恒定的白天光线下开放,但仍然有一个遮荫罩来保护雨水。然后,形式被有意地雕刻成各种类型的空虚,让自然光以诗意的方式渗透到室内空间中。
The building has a simple rectangular form, which has the wide elevations oriented on the axis of North-South and the narrow elevations on East-West. With the height of 15-meter above the ground, the building outlook is composed by planar elements on 4 sides. However on the northern side, the plane is pushed out to create a double-layered façade for the fact that the space can open up to the constant day light, yet still has a shade to protect the rain. Then the form is intentionally carved into types of void that allow the natural lighting to poetically penetrate into the interior spaces.
建筑师不使用传统水泥灰泥和油漆表面的光滑和清洁的表面,而是选择暴露的水泥砌块墙的粗糙和粗糙的质地,以预测随着时间的推移会发生污渍,因为这样可以与绿色植物产生独特的和谐。此外,从技术角度来看,水泥砌块墙的使用是由双层结构完成的-外部是混凝土砌块,内部是轻质砖,中间有空腔-其中墙在白天起到隔热作用,在夜间保持凉爽。
Instead of using the smooth and clean surfaces from the conventional cement plaster and paint for the exteriors, the architect chooses the rough and raw texture of the exposed cement block walls in order to anticipate stains to take place over time because that can create a unique harmony with the greenery. Moreover from the technical point of view, the use of the cement block walls is done by the double-layered implementation - the concrete block for the outer and the lightweight brick for the inner with air cavity in the middle – in which the walls are active as the heat insulation during the day and to keep the cool during the night.
© Peerapat Wimolrungkarat
c Peerapat Wimolrungkarat
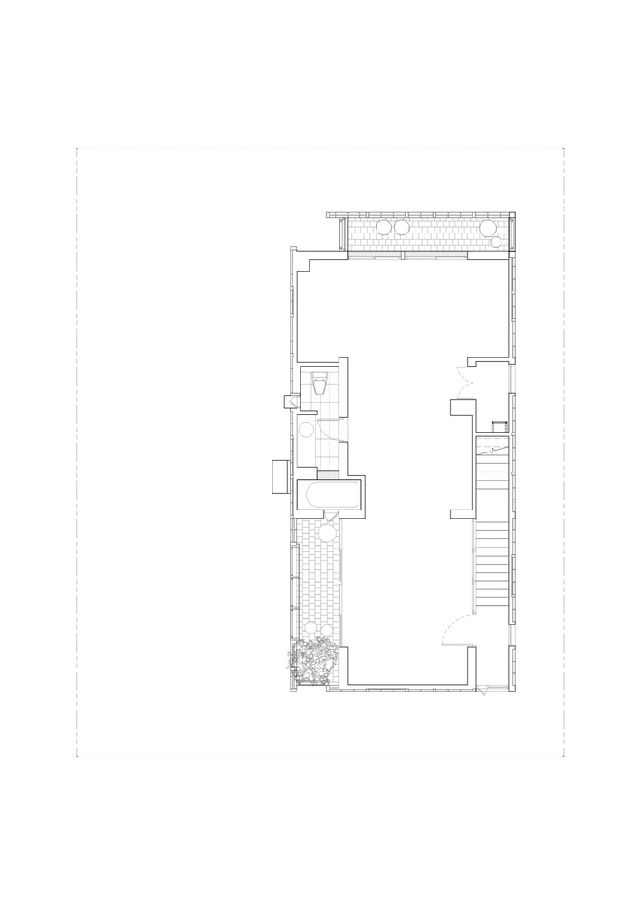
First Floor Plan
一层平面图
© Peerapat Wimolrungkarat
c Peerapat Wimolrungkarat
在地面上,一个紧凑的热带花园被设置为现场的湿度发生器,并提供令人愉快的视觉效果。另外,在其他上层,在不同的露台点有几个口袋花园,几个立面上垂直爬树。因此,所有绿色区域的总和不仅可以使内部和外部的视觉关系恢复清新,而且还可以使底层和上层的视觉关系焕然一新。
On the ground level a compact tropical garden is set to be the humidity generator of the site as well as to give a pleasant visual effect. Also on the other upper levels there are several pocket gardens at different terrace spots along with climbing trees vertically situated on a few facades. So the sum of all green areas can make refreshing visual relationships not just for the interiors and exteriors, but also for the lower level to the upper ones.
© Peerapat Wimolrungkarat
c Peerapat Wimolrungkarat
Architects INchan atelier
Location 7 Thanon Seri Soi 9, Khwaeng Hua Mak, Khet Bang Kapi, Krung Thep Maha Nakhon 10240, Thailand
Area 490.0 m2
Project Year 2016
Photographs Peerapat Wimolrungkarat
Category Office Buildings
Manufacturers Loading...
客服
消息
收藏
下载
最近

































