查看完整案例


收藏

下载
窗外有一幅画,远山青浅,绿树葱荣,窗前有一颗心,落落虚无,明净离尘,透着窗,感受天地生息,看叶绿,看花芽,看人间,时变换,倚着窗,静待影过低墙,煮茶,听风,听雨
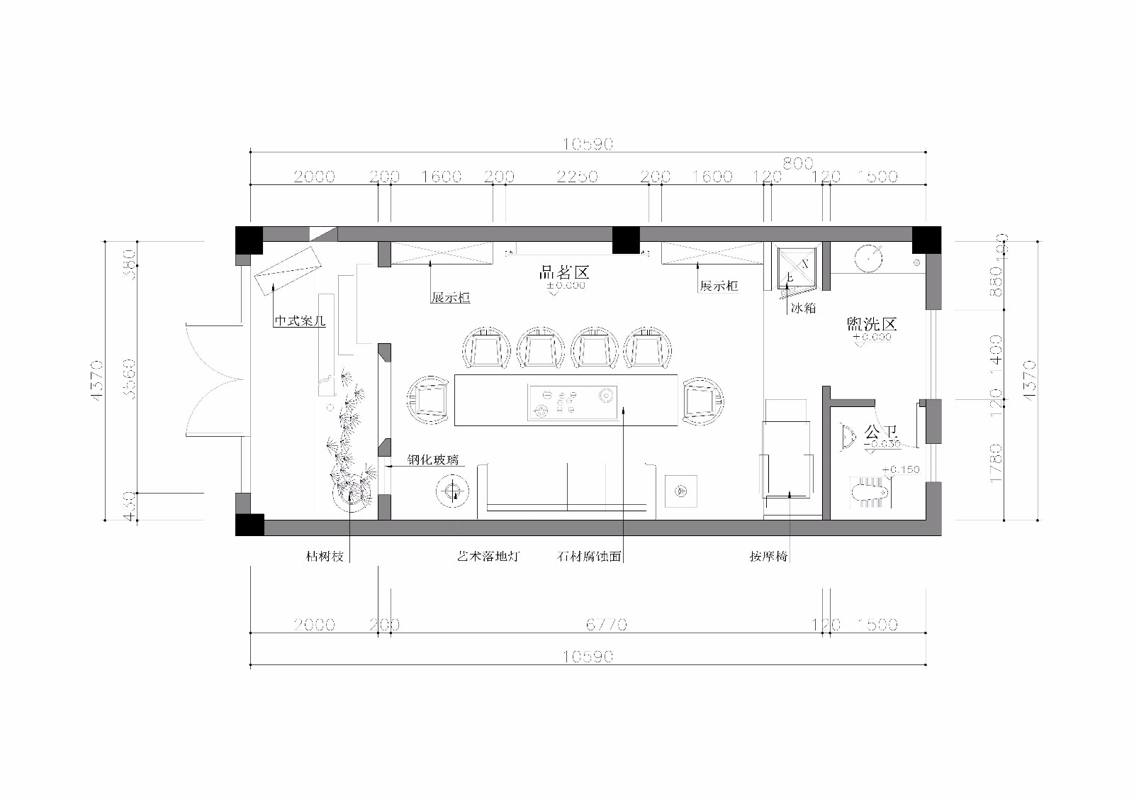
茶字如果拆分,就是人在草木之间,这一种归于自然的向往,喧嚣的城市中心拥有一抹禅意的静谧,身心都将归于宁静。浓厚的江南韵味把这些都变得返璞归真,灵魂也被其震慑。而在这个案例中设计师将江南的朦胧古朴,青烟淡水,融入其中流溢出水墨江南的意境。走进茶室入眼的是写意风白墙灰瓦的墨画与小阁窗交错连接,脚踩青石砖,身临江南听雨,倚窗,煮茶。体验江南的美,是朦胧而古朴的,是树下悠然落棋,是花间醉然品酒。是庭中淡然品茶。绿水萦绕着白墙,红花洒落于青瓦。清茶氤氲,举手投足间就如同那些处于静立的枯蓬,虽轻却透出丝丝韧性,而在不经意的回眸间亦可看见亭亭玉立的白玉兰花天然勾勒出来的窗画,好似少女犹抱琵琶半遮面。茶起茶沉间,偶得浮生虚閒,人生乐事亦不过如此,让身心拥有一处闲趣。
客服
消息
收藏
下载
最近















