查看完整案例

收藏

下载
© Diego Opazo
(迭戈·奥帕佐)
架构师提供的文本描述。预计的楼宇是对现有楼宇进行双重干预,将房间扩大,在南面加设一个大门廊,以及进行内部、正面及屋面的翻新,所采用的解决方案,一方面是考虑到顾客的需要,包括功能和美学方面的需要,作为现有楼宇的建筑特色及其位置。
Text description provided by the architects. The projected building is the result of a double intervention in the existing building, expanding the room with the addition of a large porch to south and an inner, facades and roofrenovation.The solution adopted takes into account on the one hand customer requirements, both functional and aesthetic needs, as the construction features of the existing building and its location.
面积、可建区、城市参数由该地区的具体规划条例确定,以建筑师为前提实现正确的整合和利用,以符合地块的条件及其定位,形成一座简单的建筑,单纯的建筑,根据立面的设计,根据自己的方位和观点,精心处理,重新组合成木匠,百叶窗的设计、处理和材料的选择。
The volume, buildable area, urban parameters defined by the particular planning regulations for this area, with the premise of the architects to achieve a right integration and use up to the conditions of the plot and its orientation, resulting in a simple building, of pure volumes with a very careful treatment of the facades design according to their orientation and views, with a renewed composition carpentry, shutters design treatment and the choice of materials.
© Diego Opazo
(迭戈·奥帕佐)
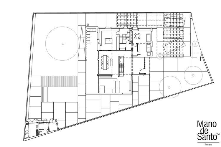
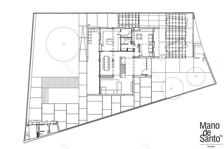
First Floor Plan
一层平面图
© Diego Opazo
(迭戈·奥帕佐)
住宅的解决方案基本上是在两层,一楼和一楼。在主入口所在的底层,起居室的部分被放置(面向院子),厨房实际上是现有的厨房,但与其他部分有着不同的关系:洗衣房、浴室、小地窖、第二间小客厅和附在一起的一间卧室;还有一个连接空间,它从通往上一层的部分开始。一楼有一个很小的连接空间,可以进入三间双人卧室,共用一间浴室,一间主卧室有浴室和更衣室。没有地下室。
The solution of the dwelling is basically in two floors, ground floor and first floor. On the ground floor, where the main entry is located, the living-dining room piece is laid up (facing the yard),kitchen is practically the existing one but with a different relation with the other pieces, a laundry room, a bathroom, a small cellar, a small second living room and a bedroom attached; there is also a connecting space which starts the section that leads to the upper floor. The first floor is solved with a small connecting space that gives access to three double bedrooms, a shared bathroom and a main bedroom with bathroom and dressing area. Thereis no basementfloor.
屋顶设计为倒砾石屋顶,拆除现有的倾斜瓦屋顶。
Roofs are designed as inverted gravel roof, removing the existing pitched tile roof.
© Diego Opazo
(迭戈·奥帕佐)
建筑物的体积测量是清晰而简单的,它们强调垂直的格子结构,将体积和呼吸生命分解成图像。这些格子解决了最大尺寸的玻璃墙,太阳遮阳。这个新的建筑体积是设计在光滑的成品灰色暴露混凝土,其余的现有正面是与一个双隔离墙连续完成水通道板。
The volumetry of the building is clear and simple, they emphazise the vertical latticework that decompose the volume and breath life into the image. These latticeworks solve the greatest dimension glass walls solar shading. This new built volume is designed in smooth finished gray exposed concrete, and the rest of the existing facades are cladded with a double isolated wall of continuous finished Aquapannel boards.
© Diego Opazo
(迭戈·奥帕佐)
Architects Mano de Santo
Location Valencia, Spain
Authors Architects Francesc de Paula Garcia Martinez, Ana Gil Collado, Francisco Miravete Martín
Area 402.0 m2
Project Year 2015
Photographs Diego Opazo
Category Houses
Manufacturers Loading...
客服
消息
收藏
下载
最近




















