查看完整案例


收藏

下载
© Ketsiree Wongwan
c.凯西里·王湾(Ketsiree Wongwan)
“花鸟房”是原屋村面积60平方米,内部面积300平方米。业主希望对这座已经超过10年的房子进行翻修,以提供适合其全部需求的空间。从家庭调查来看,建筑师们建议调整室内空间,引入自然光,在原来车库的基础上增加多功能区域。
"Flower cage house" is a former housing estate size 60 sq.wa with an internal area of 300 sq.m. The owner wants to renovate the house that was over 10 years to provide space that suits the needs to its full capacity. From home survey, architects have proposed to adjust the interior space, bring in natural light and add the multipurpose area over the original garage.
© Ketsiree Wongwan
c.凯西里·王湾(Ketsiree Wongwan)
底层,在主起居区,我们捣毁了大部分的实心墙,并引入了钢框架玻璃面板。扩大房子后面的额外空间,以满足增加使用的要求,并将自然光线带入房屋。因为它位于北面,所以我们只带光而不带热量,加上额外的窗户,它们可以加强通风。正门已经调整成步行回家的速度,使它更有趣。
Ground floor, at the main living area we smashing most of the solid wall and introduce steel frame glazing panels. Extend the extra space behind the house to meet the demands of increased usage and pull natural light into the house. Because it locates on the north side so we only bring the light but not the heat and with extra windows, they enhance better ventilation. The main entrance has been adjusted to the pace to walk home and make it more interesting.
© Ketsiree Wongwan
c.凯西里·王湾(Ketsiree Wongwan)
© Ketsiree Wongwan
c.凯西里·王湾(Ketsiree Wongwan)
Ground Floor Plan
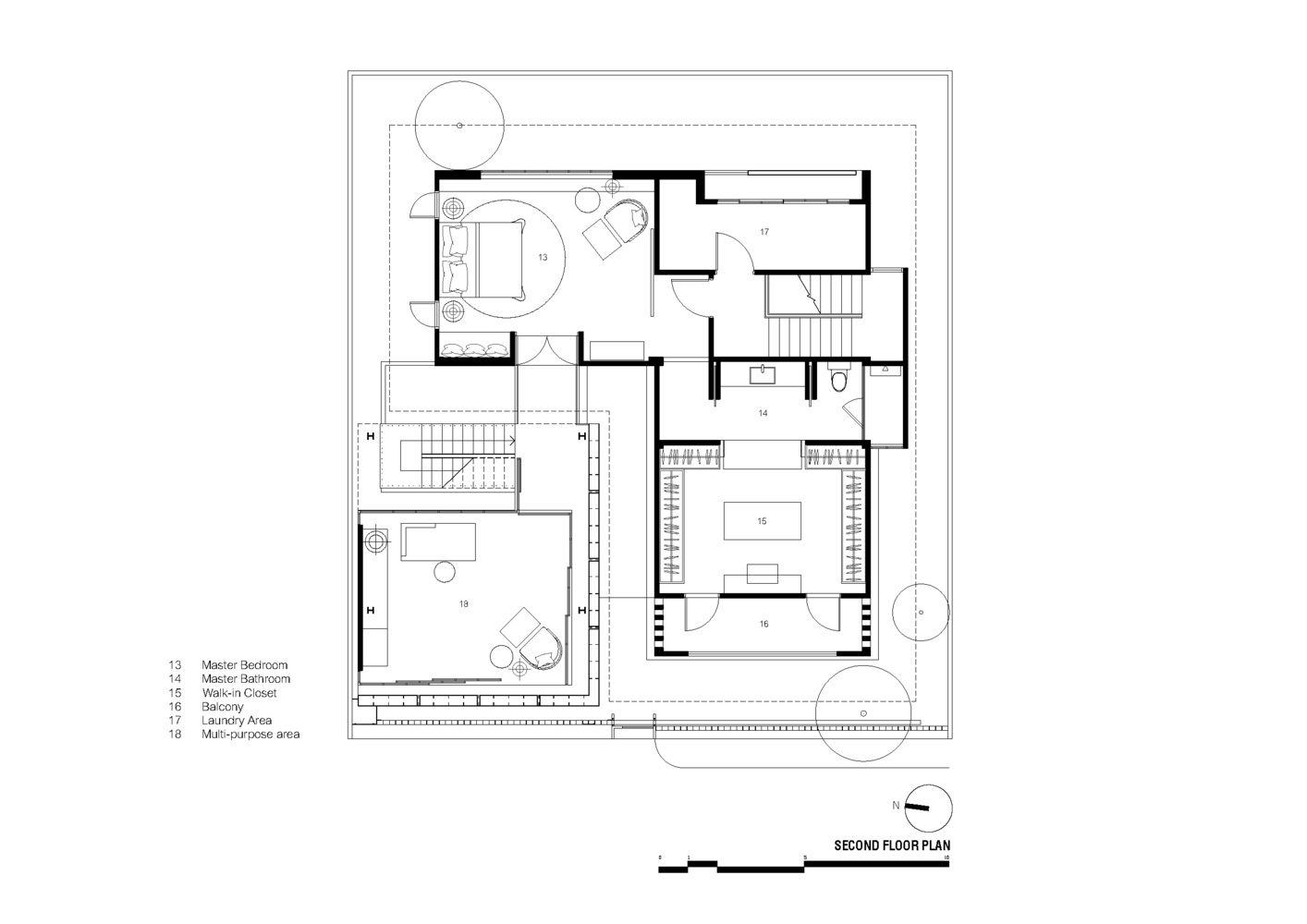
通过拆除旧的杆式结构,改善了车库面积。然后重建新的钢结构建筑,在二楼有一个多用途的区域,可以连接主卧室。在下面,通过创建鱼塘,该地区得到了更新。
The garage area is improved by removing the old pole structure. Then rebuild new steel structure building over to have a multi purpose area on the 2nd floor, which can be connected to master bedroom. Underneath, the area has been refreshed by creating fish ponds.
© Ketsiree Wongwan
c.凯西里·王湾(Ketsiree Wongwan)
池塘上方的铁楼梯通向多功能区域,作为该地区的特色.楼上的室内倒塌了,变成了阁楼。这层是真正的私人住宅,由主卧室、起居室、更衣室和连接浴室组成。
The iron stairs above the pond lead to the multi-purpose area, act as the area's features. The upstairs interior is collapsed and transformed into a penthouse. This floor is truly a private residence, consisting of a master bedroom, living area, dressing room and connecting bathroom.
© Ketsiree Wongwan
c.凯西里·王湾(Ketsiree Wongwan)
这座新建筑代表了业主的性格,他们强壮、精力充沛,但同时又温柔而敏感。它是加强了侵略性钢结构,但它仍然感觉轻。用陶瓷艺术家专门设计的橄榄树花盆增加柔情,自由的象征放置在102棵树的整个框架空间之间,以增强这座房子的独特性。
The new building represents the owner character who is strong, energetic, yet gentle and sensitive at the same time. It is reinforced with aggressive steel structure but it still feels light. Increase the tenderness with the olive tree pots that are specifically designed by ceramic artists, the symbol of freedom placed between the space of the entire frame of 102 trees to enhance the uniqueness of this house.
© Ketsiree Wongwan
c.凯西里·王湾(Ketsiree Wongwan)
Architects Anonym
Location Bangkok, Thailand
Lead Architects Phongphat Ueasangkhomset, Parnduangjai Roojnawate
Area 300.0 m2
Project Year 2017
Photographs Ketsiree Wongwan
Category Renovation
Manufacturers Loading...
客服
消息
收藏
下载
最近






























