查看完整案例


收藏

下载
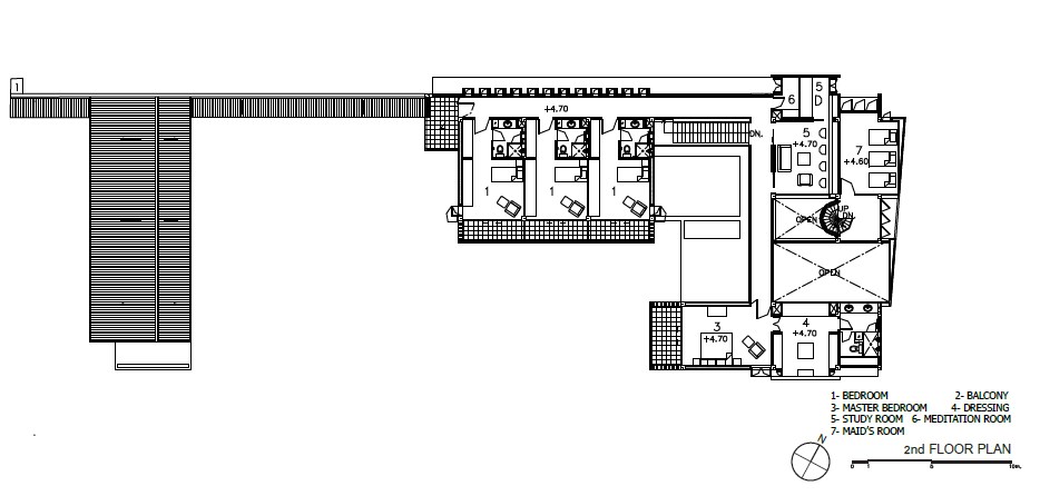
这所房子坐落在一片狭长的地块上,地块向北向南,四周环绕着另外三个地块。北部前部的地块是目前空置的,可能很快就会建一座房子。毗邻东北的地块是空置的果园,而不是附近的房产。南面的地块在西侧有一座房子,东面有一座花园。对隐私的需求是一个重要的考虑因素,创造景观的愿望也是如此,在整个房子里都强调了外部和内部之间的连续性感。房子被放置在地块的东面,与邻近的房子交替放置,以便在没有任何阻碍的情况下从南方吹来风,并为双方创造隐私。与花园对齐的有盖人行道将停车场与房子连接起来。这座L形的房子向内看花园和游泳池.面对相邻物业的外墙保持实心,只有必要的窗户。此外,还考虑到热带建筑。所有房间都有交叉通风,二楼的床房都有高高的天花板,天花板向上倾斜,窗户可以让热空气很容易通风,而间接光线则可以进入房间。卷帘安装在房子的外面,以防晒和防止灰尘进入房子。为了节约用水和能源,使用灰色水系统来浇水,而太阳能电池则用来供应热水。
Firm J T A Co., Ltd.
Type Residential › Private House
STATUS Built
YEAR 2004
SIZE 10,000 sqft - 25,000 sqft
BUDGET $500K - 1M
keywords:architecture, architecture news, interiors, interior design, portfolio, spec, brands, marketplace, products House # 147/58
关键词:建筑,建筑新闻,室内设计,组合,规格,品牌,市场,产品系列147/58
客服
消息
收藏
下载
最近























