查看完整案例


收藏

下载
© Ezio Manciucca
(Ezio Manciucca)
“美联社之家”见证了位于乌尔比诺最高山丘顶部的一个古老乡村村庄的重生,该村庄因其景观和环境而备受推崇。新的建筑体系建立在可追溯到中世纪公社的古代遗骸上。这些结构在地下相通,位于一个红色混凝土平台(38×20 mT)上,主导着周围的景观。这些房屋的核心构成了一个单一的住房单元,在景观中重新确立了这一场所的中心作用,恢复了新建筑与历史分层之间的直接和移情对话。这些建筑物在石头壳中,不受排水沟或排水管等任何超大型建筑的影响,并以其测量的比例提供给景观,作为纯正、谨慎和无声的文物,恢复它们与当地农村文化矩阵的身份和亲和力。
‘AP House’ bears witness to the rebirth of an ancient rural hamlet situated on the top of one of the highest hills in Urbino, highly esteemed for its landscape and environment. The new system of buildings stands on ancient remains dating back to Medieval Communes. Linked to each other on the hypogeum level, the structures rest on a red concrete platform (38 X 20 mt) dominating the surrounding landscape. The core of the houses, which forms a single housing unit, restablishes a central role to this site in the landscape, restoring a direct and empathic dialogue between new buildings and historical stratification. The structures, in their stone shell, free from any superfetations such as gutters or drainpipes andin their measured proportions, are offered to the landscape as pure, discreet and silent artifacts recovering their identity and affinity with the rural cultural matrix of the place.
© Ezio Manciucca
(Ezio Manciucca)
如果该项目以其建筑组成和严谨,忠实地解释这个意大利地区的典型正式主题(马尔什),在其内部,在材料的处理,工厂的设计和它的家具,它想要证明其卓越的同时代。
If the project with its architectural compositions and rigor, faithfully interprets the typical formal themes of this Italian region (Marche), in its interiors, in the treatment of the materials, the design of the plant and its furnishings, it wants to vindicate its remarkable contemporaneity.
© Ezio Manciucca
(Ezio Manciucca)
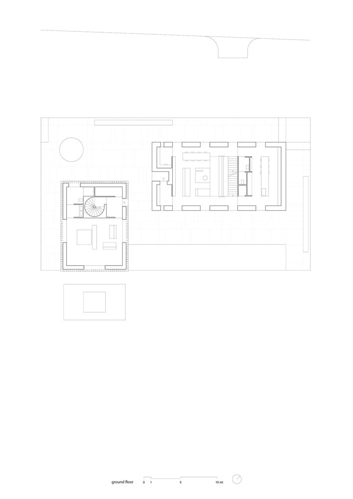
公平表面钢筋混凝土结构的内部周长,创造空间,自然光洪水,并释放体积从任何其他承重元件。整个功能程序分为三个层次。为了避免在花园层停车和看到任何交通工具,主入口位于地下室的大型车库内。在较低层次上,除技术和厂房外,还有所有主要设施:电影院、主建筑与其附属建筑之间的连接空间中的展览馆以及与SPA相邻的健身房。从地下室,楼梯直接通向主楼的中心,在那里可以看到令人叹为观止的丘陵景观和游泳池区域。一楼,完全面向户外,没有连续性的解决方案与花园:这是客厅,餐厅,厨房和私人工作室的空间。
The fair-face reinforced concrete structure of the internal perimeter, creates space for natural light to flood in and releases the volume from any other load-bearing element. The full functional program is arranged on three levels. In order to avoid the parking of cars and the sight of any means of transport at the garden level,the main entrance is located in the large garage in the basement. On the lower level, besides the technical and plant areas, there are all the main facilities: a cinema room, an exhibition gallery in the connecting space between the main building and its annex and a gym with an adjoining SPA. From the basement, the staircase leads directly to the heart of the main building where the view opens up over the stunning hilly landscape and the swimming pool area. The ground floor, completely projected towards the outdoors, has no continuity solution with the garden: This is the living room, dining room, kitchen and private studio space.
© Ezio Manciucca
(Ezio Manciucca)
在一楼,围绕着一个巨大的栏杆落地,是主公寓和两间带套房卫生间的双人卧室。家具设计完全由GGA建筑师设计,由天然胡桃木制成,每个房间都符合并创造秩序,包括服务区、厂房和技术组件。附件的木框结构,是一个谷仓记忆,往往是经常出现在这一风景。第三座建筑位于一座小人工山上的花园里,地下室里有一间存放园艺设备的储藏室和一层的烧烤。花园的这一部分,有着由Corten台阶和草组成的不对齐的几何图形,想要稍微脱离整个室外构图的严肃性。
On the first floor, arranged around a large balustraded landing, is the master apartment and two double bedrooms with thier suite restrooms.The furniture design, created entirely by GGA architects and made of natural walnut wood, qualifies and creates order in each room concealing service areas and plant and technology components. The annex, with its wooden frame structure, is a barn memory which is often a constant presence in this scenery. A third building is located in the garden upon a little artificial hill. In its basement there is a storage room for the gardening equipment and a barbecue on the ground floor. This part of the garden, with its disaligned geometry made of Corten steps and grass, wants to slightly break away from the severeness of the whole outdoor composition.
© Ezio Manciucca
(Ezio Manciucca)
能源供应,这仅仅是电力,是由一个广泛的光伏系统,隐藏在房地产的基础上,并位于一个距离建筑物。
The energy supply, which is only electrical, is guaranteed by an extensive photovoltaic system hidden in the grounds of the property and located at a distance from the buildings.
© Ezio Manciucca
(Ezio Manciucca)
Section / Elevation
剖面/高程
Architects GGA gardini gibertini architects
Location Rimini, Italy
Architect in Charge arch. Alice Gardini, arch. Nicola Gibertini
Area 1080.0 m2
Project Year 2017
Photographs Ezio Manciucca
Category Houses
Manufacturers Loading...
客服
消息
收藏
下载
最近














































