查看完整案例


收藏

下载
这座房子是人们对当代建筑充满热情的长期反思的结果,他们最初要求建筑师皮埃尔·米纳辛对他们的房子进行扩建。在研究过程中,对空间和与自然的关系的渴望接踵而至,他们决定在他们原来的建筑前在他们的土地上建造一座完整的房子。
这个机会确实是独一无二的,因为他们在里昂市中心一条安静的小街道上有一块建筑用地,这在今天尤为罕见。
因此,AUM团队合作了一个只有原材料的房子项目:原材料:混凝土、球状钢、玻璃和木材。
这座房子是由混凝土围护而成的,隔离了向花园开放的生活核心。花园上的这个洞口是由一座无处可去的人行桥记录下来的,它穿过客厅,在玻璃前停下来,就像一幅景象,或一种超越建筑物物理界限的建议。这一概念非常重要,因为它反映了建筑师对当代建筑概念的一个重要观点:建筑是在相互冲突的商品和关系商品之间建立的关系。建筑师的工作是确定这种关系的需要,以建立效果。
因此,我们试图确定我们想要在不同的空间和房子的不同功能之间产生什么样的效果。亲密,展览沉浸,建议.。
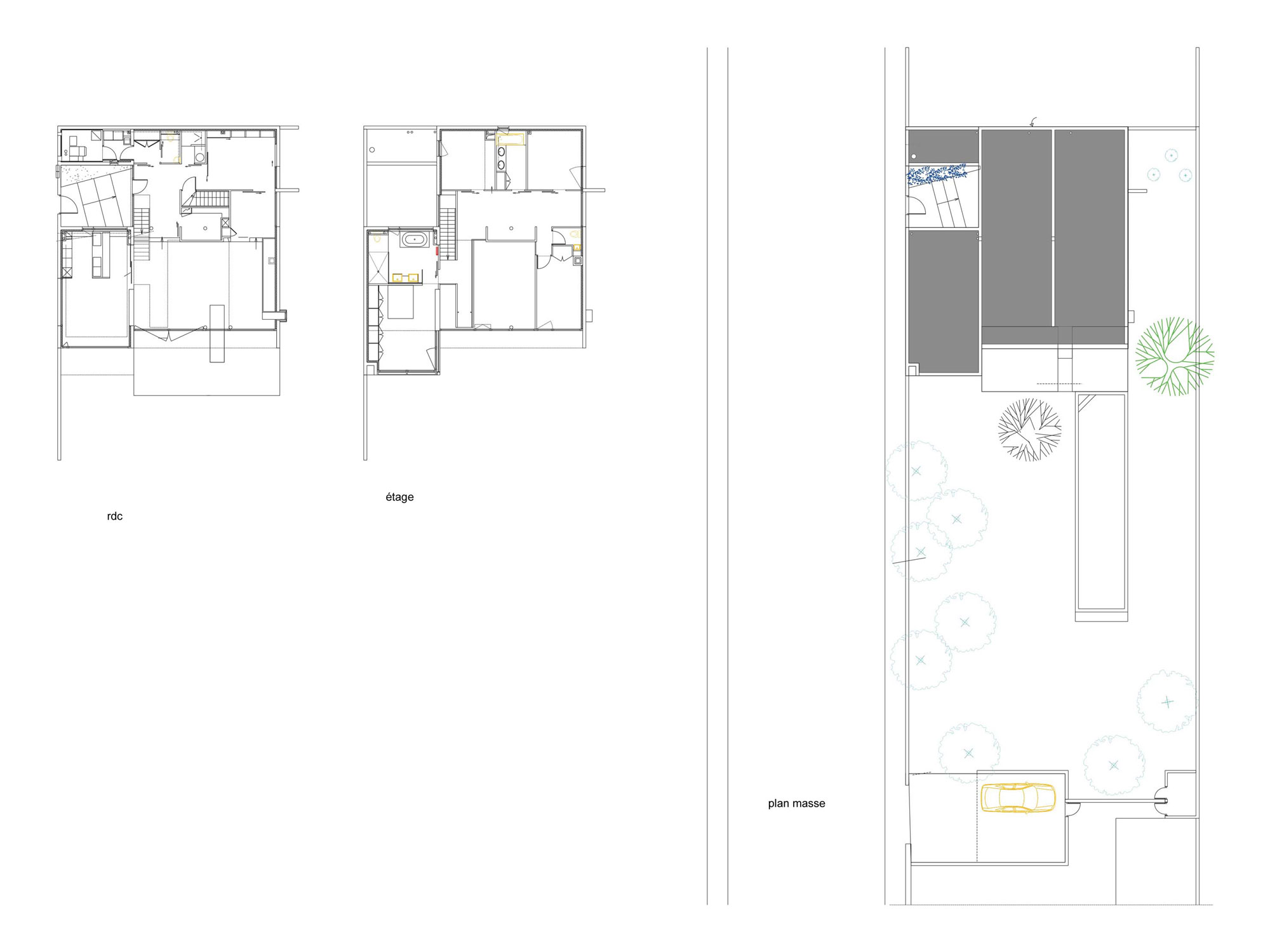
功能程序是实现4间卧室、2间浴室、厨房/客厅、办公室、地下室、露台、游泳池和花园的住宅。该房屋的居住面积为280平方米。起居室位于一楼,楼上的卧室。
当所有的建筑选择都被预先确定时,材料的开发和施工过程的确定都是与接受其改造产品以满足建筑结构的制造商密切相关的。因此,建筑的混凝土化可以在现场进行调整,甚至可以通过修改混凝土的混合物和密度来实现。这个关系架构师供应商是必不可少的,并且对建筑是有益的。另一方面,这座房子是那些投资过并希望展示投资成果的制造商的枢纽。我们一直努力强调建筑师作为研究人员的角色,在我看来,这是他的主要职能。
这座房子的建筑可以被三个强大的元素所识别。
包裹着房子的粗糙的混凝土外壳将居民与繁忙的街道隔离开来。开口简单线性。这些框架都是用原钢手工制作的。
母室填充物是由滑轮、缆索和配重系统连接的可定向球状钢板,允许处理重元素。它们给建筑带来了活力,加强了街道上房间的视觉隔离。
南立面是一个很大的玻璃和玻璃制成的建筑。大回转门打开客厅外,旋转钢板允许空间通风。一个原始的混凝土悬臂式桌子穿过玻璃,可以在室内或室外使用。
房子的游泳池,在轴线上是一个14米x3的泳道,有一个生混凝土跳水板。我们用树脂涂层制作了一条黑色和灰色的条纹。
Firm AUM Pierre Minassian
Type Residential › Private House
STATUS Built
YEAR 2010
SIZE 3000 sqft - 5000 sqft
BUDGET Undisclosed
keywords:architecture, architecture news, interiors, interior design, portfolio, spec, brands, marketplace, products Seven
关键词:建筑,建筑新闻,室内设计,组合,规格,品牌,市场,产品七
客服
消息
收藏
下载
最近















