查看完整案例


收藏

下载
该项目位于智利瓦尔帕莱索地区Ocoa的Ocoa的Oasidela Campana保护区,占地面积90平方米。它是由建筑师Enzo Sartori Torres,JoséLuis Valladares,和Zuar牙生设计的建筑公司Estudio 111 ArquArchtos。
客户想要一个度假的第二个家,在那里他可以在一个特权的环境中与家人和朋友在一起。
房子有金属结构和隔断,力求充分利用环境的美学和自然丰富性,使其所有空间都与周围环境保持联系。这所房子的设计方式使人一进屋,眼睛就会直接看到大窗户,这些窗户构成了风景的美丽。
尽管占地面积只有90平方米,它给人的印象是一个空间和幅度,由于其地区流通的宽度,对公共区域的访问不匀,那窗户到天花板上。
在屋外,房子内衬着淡淡的木头,有一格木头,从露台一直延伸到后面的大部分立面,停在房子的入口处。
我们推荐这些项目-Enrique Browne和Tomás Swett-在智利圣地亚哥设计这座美丽的家,HerrieMelhuish O‘Neill建筑师在茂密的植被中设计了这座美丽的房子
一个下午的雨,坐在壁炉边的一杯茶和新鲜烘焙的曲奇,欣赏着Cerro La Campana的景色,所有这些都是为了创造一个独特的时刻。
画廊外景自然包围的建筑景观
画廊外景自然包围的建筑景观
画廊外景自然包围的建筑景观
画廊内部走廊景观
有玻璃墙的画廊房间可欣赏到景观
有玻璃墙的画廊房间可欣赏到景观
画廊内部走廊景观
画廊内的视野,房子及周围地区的外部夜景。
画廊内的视野,房子及周围地区的外部夜景。
画廊内的视野,房子及周围地区的外部夜景。
画廊内的视野,房子及周围地区的外部夜景。
画廊中的视图
画廊中的视图
画廊中的视图
画廊中的视图
画廊中的视图
画廊中的视图
画廊中的视图
画廊中的视图
画廊中的视图
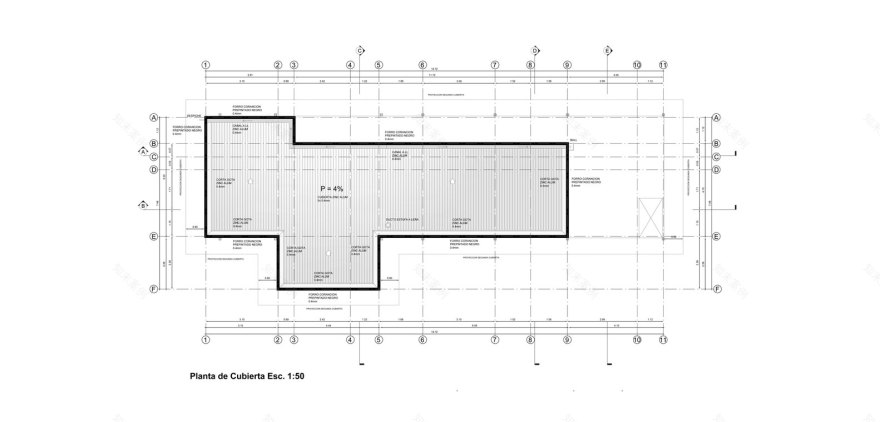
keywords:Contemporary Interior Design Decorative Accessory Floor Plans Glass Walls Hall and Entrance Landscaping Lighting Staircase Terrace Wood Floors Wood Walls
关键词:现代室内设计,装饰附件,平面图,玻璃墙,大厅和入口景观,照明,楼梯,台地,木地板,木墙
客服
消息
收藏
下载
最近






















