查看完整案例


收藏

下载
© Lo.cul.p
C.Lo.cul.p
架构师提供的文本描述。这是一项35岁的房屋翻新工程。它是一座两层高的木屋,位于任何地方,根据当时生活的需要,由精心划分的房间组成。
Text description provided by the architects. This project is a house renovation with 35 years of age. It is a two-story wooden house located anywhere, consisted of finely divided rooms, according to the needs of the living at the time.
© Lo.cul.p
C.Lo.cul.p
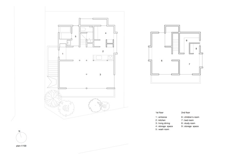
Floors Plans
楼层图
© Lo.cul.p
C.Lo.cul.p
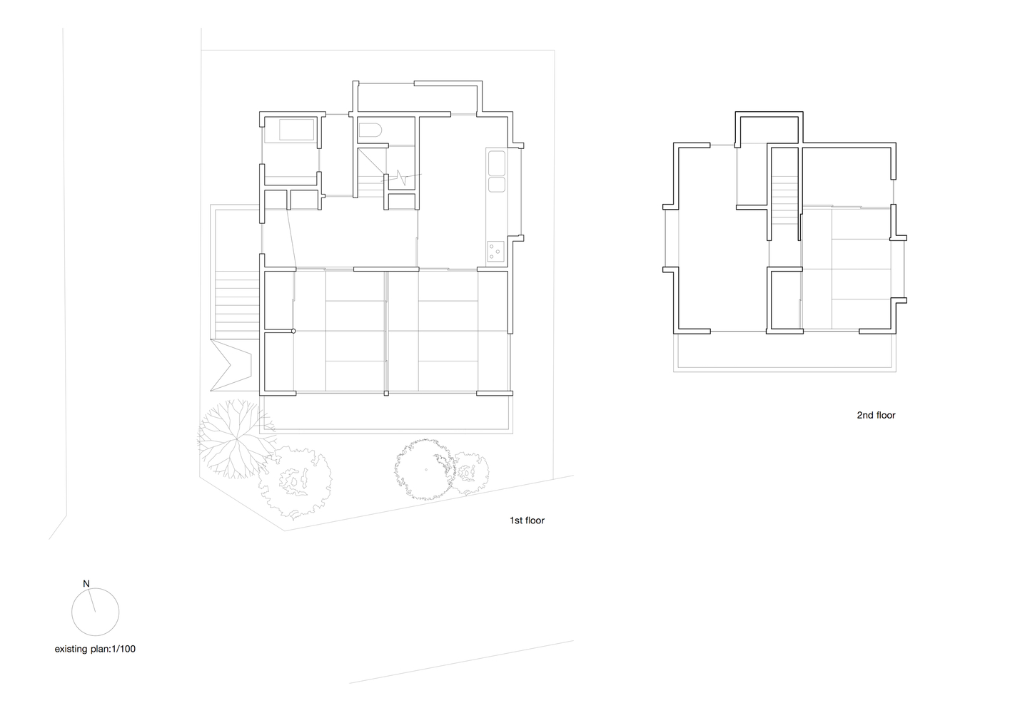
我想让太阳从南方的洞口进入整个房间,因为我预计三个家庭居住时,房间就会离开,所以我拆除了隔开房间的墙壁,通过拆掉墙壁,腾出空间,穿过光和风,感觉到了新鲜,同时,我觉得凉爽,我无法解释,看看现有的梁和柱子隐藏在完成。
I wanted to let the sun entering from the opening in the south spread throughout the room because I expected that the room would be left when three families lived, so I dismantled the walls separating the rooms.I was able to feel the freshness by removing the walls, making space, passing through light and wind, and at the same time, I felt coolness that I could not explain by looking at the existing beams and pillars hidden in the finish.
© Lo.cul.p
C.Lo.cul.p
树的表现力和结构显露的状态被认为是未完成的,但通过剪裁,它的表达更简单,而且,通过与现有材料相协调,它变成了一种只有通过翻新才能完成的设计。
The state where the expression of the tree is visible and the structure is exposed is seen as unfinished, but by cutting the finish it led to a simpler expression.Moreover, by rebuilding while harmonizing with the existing material, it became a design that can only be done by the renovation.
© Lo.cul.p
C.Lo.cul.p
Architects SNARK
Location Takasaki, Japan
Lead Architects Rei Oshima
Area 72.06 m2
Project Year 2017
Photographs Lo.cul.p
Category Houses Interiors
客服
消息
收藏
下载
最近





















