查看完整案例


收藏

下载
© Christian Burmester
克里斯蒂安·伯梅斯特
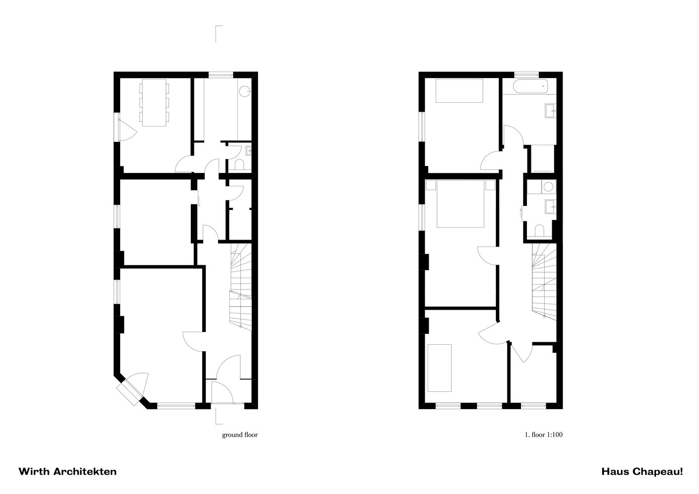
一个年轻的家庭想在他们传统的不来梅排屋里创造一个开放的生活空间,但是现有的房间太小,不能同时容纳厨房和客厅。解决办法?增加一个新故事。原来的大楼买了一顶新的“帽子”。通过把屋顶的角度嵌套在一起,延长了对历史结构的认可。
A young family wanted to create an open living space in their traditional Bremen row house, but the existing rooms were too small to accommodate both kitchen and living room. Solution? Adding a new story. The original building acquired a new “hat”. The extension gives a nod to the historic structure by nesting the roof angles to each other.
© Christian Burmester
克里斯蒂安·伯梅斯特
由于房子位于一个角落,新窗户的位置可以直接看到教堂的对面。(鼓掌)
And as the house is located on a corner, the new windows were positioned to grant a direct view to the church just opposite.
Elevations
© Christian Burmester
克里斯蒂安·伯梅斯特
上面的画廊还允许家庭观察下面的街道,同时提供给过路人-通过对建筑物的新解释-如果你愿意的话,内部和外部以及新旧之间的对话。从原来到加法的平稳过渡已经成为整个邻里的一个参照点。(鼓掌)
The upper gallery also allows the family to observe the street below while providing the passers-by a new interpretation of the building – a dialogue if you will between the inside and the outside, and between the new and old. The smooth transition from the original to the addition has become a point of reference for the whole neighborhood.
© Christian Burmester
克里斯蒂安·伯梅斯特
Architects Wirth Architekten
Location Bremen, Germany
Area 235.0 m2
Project Year 2017
Photographs Christian Burmester
Category Extension
Manufacturers Loading...
客服
消息
收藏
下载
最近
























