查看完整案例


收藏

下载
架构师提供的文本描述。这个带有地中海特色的度假别墅是半个世纪前用传统的加泰罗尼亚式建筑方法建造的。它已在内部翻新和现代化,以增加自然光。厨房和门廊已经扩大,以创建一个庭院,以连接室内生活区和室外。这提供了阴影和池的增加完成了这些领域的整合。
Text description provided by the architects. This holiday home, with a Mediterranean character, was built half a century ago using traditional Catalan construction methods. It has been refurbished and modernized internally to increase natural light. The kitchen and porch have been extended to create a courtyard to connect the interior living areas with the outdoor. This offers shade and the addition of a pool completes the integration of these areas.
© Aitor Estévez
Aitor Estévez
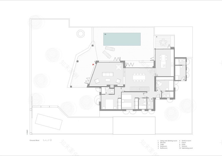
Ground Floor Plan
© Aitor Estévez
Aitor Estévez
该项目保持了几个原始的特点,如球场渲染在外部和抛物线拱。为了尊重这所房子的传统,在院子里和内部楼梯上都安装了手工制作的瓷砖。白色被用来保护地中海的氛围。
The project maintains several original features such as course renders on the exterior and parabolic arches. To respect the home´s heritage, handmade clay tiles have been fitted in the courtyard and on internal staircases. White has been used to preserve its Mediterranean ambiance.
© Aitor Estévez
Aitor Estévez
Architects Pepe Gascón Arquitectura
Location Platja d'Aro, Spain
Area 224.0 m2
Project Year 2015
Photographs Aitor Estévez
Category Houses Interiors
Manufacturers Loading...
客服
消息
收藏
下载
最近
























