查看完整案例


收藏

下载
© Song Yousub
宋有子
架构师提供的文本描述。砖石,一个多家庭的房子在韩国,在两个方面寻找一个“规模”的游戏,建筑本身和砖在其外观。该网站坐落在拐角处,面向长北和短东面的道路。由于城市规划的原因,入口处和房子的长方需要朝南。这就造成了屋面倾斜方向与房屋主体面矛盾的状况。
Text description provided by the architects. The Masonry, a multi-family house in Korea, seeks a playful game of “scale” in two aspects, the building itself and bricks in its façade. The site sits at the corner, facing its long-north and short-east sides to the roads. Due to the town planning, the entrance and the long side of the house need to be facing South. It makes a contradictory condition of pitched roof direction and the main face of the house.
© Song Yousub
宋有子
Massing Strategy Diagram
集结战略图
© Song Yousub
宋有子
参考罗伯特文丘里的房子,山墙被放置在一个很长的一边,地点朝南。故意将山墙相对于典型的斜屋顶形状进行处理,以达到结构和经济效益的目的。我们被要求为两个家庭设计一套房子,但这所房子会避免两栋联排别墅的出现。对角叠加两种砖(100毫米x 200毫米)和水泥块(200毫米x 400毫米)创造了一个单一的砖石外观,但也细微的两个单位的程序在一个质量。
Referring Robert Venturi’s House the gable is placed along with a long side of the site towards South. Intentionally treating the gable in opposite position against typical pitched roof shape for structural and economic efficiency the Masonry tricks its scale until visitors enter the house. We were asked to design a house for two families but the house would avoid the appearance of two townhouses. Diagonally stacked two kinds of bricks (100mm x 200mm) and cement blocks (200mm x 400mm) creates a singular masonry façade but also nuanced two units of the program in a single mass.
© Song Yousub
宋有子
Exploded Axonometric
爆炸轴测
© Song Yousub
宋有子
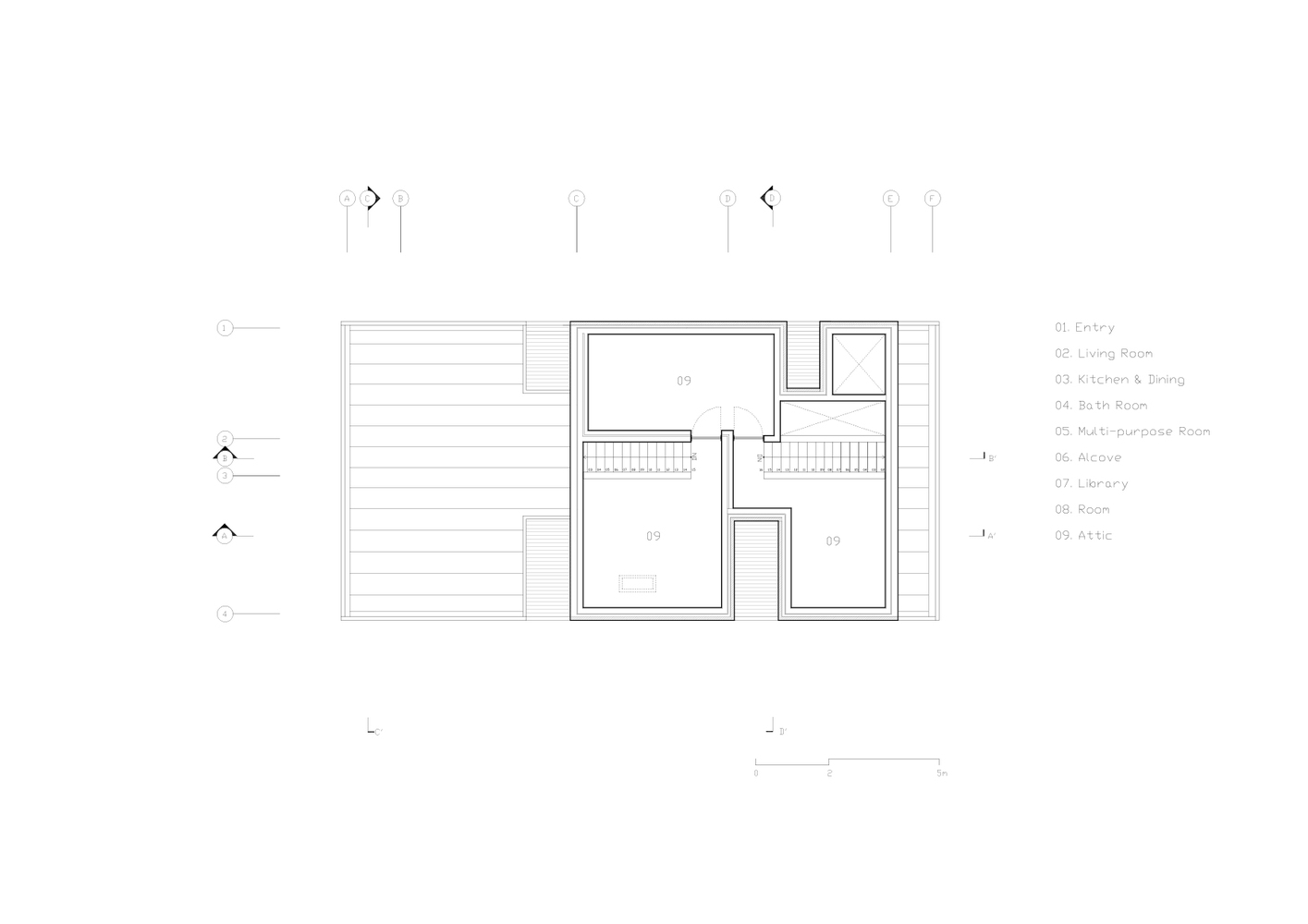
这所房子由两个家庭组成,东、西平分。楼梯贯穿两个单位,就像脊柱一样。楼梯从一楼到阁楼,连接客厅、厨房、图书馆、房间、浴室、露台和阁楼工作室。这种攀登提供了动态的空间体验和视觉联系,通过着陆和天花板的变化。除了楼梯的连接和功能之外,这种循环脊柱成为住宅的主要结构核心。双高的天花板空间,二楼的露台和阁楼允许自然照明和通风在四季保持控制的热量和湿度。
The house composed of two families bisected East and West. The stairs run as a spine throughout two units. The stairs from the first floor to the attic and connects living room, kitchen, libraries, rooms, bathrooms, terraces and attic studio. This climbing up provides dynamic spatial experiences and visual connections through landing and ceiling changes. Beyond the connection and function of the stairs, this circulation spine becomes a main structural core in the house. Double height ceiling spaces, terraces on the second floor and attic allow natural lighting and ventilation inside keeping controls heat and humidity through four seasons.
© Song Yousub
宋有子
Architects stpmj
Location Suwon-si, South Korea
Area 205.5 m2
Project Year 2017
Photographs Song Yousub
Category Houses
Manufacturers Loading...
客服
消息
收藏
下载
最近













































