查看完整案例


收藏

下载
架构师提供的文本描述。对于建筑师来说,遗产建筑是一把双刃剑,尤其是如果它是自己的家的话。一方面,历史中充满情绪化、近乎浪漫的一面;另一方面,你有规划和法规的务实方面-然后你把它与充分认识到一个地点和地点的潜力的愿望结合在一起。
Text description provided by the architects. Heritage houses are a double edged sword for an architect, especially if it’s an own home. On the one hand there is the emotive almost romantic aspect of history and on the other you have the pragmatic aspects of Planning and regulations- then you mix this with the desire to fully realise the potential of a site and location.
© Jack Lovel
C.Jack Lovel
清脆的豪斯当然也不例外。尽管有一个单独的重要评级,这是一个相当可怕的情况下,被剥夺了几乎所有的传统结构和特征,并似乎与多年的厚厚的油漆结合在一起。
Crisp House was certainly no exception to this. Despite having an Individually Significant rating the property was in a pretty dire condition having been stripped of nearly all of its heritage fabric and character, and seemingly held together with years of thickly applied paint.
© Jack Lovel
C.Jack Lovel
重新开发的早期概念倾向于纯粹着眼于规划和满足当地的指导方针-着眼于最大限度地发挥土地的潜力,而不是考虑到现有的村舍。以北侧公寓楼的高度为指导,探讨了采用3层楼的各种方案。[科林伍德正奋起直追],最大限度地发挥网站潜力似乎是明智的[经济]方式。
Early concepts for the re-development tended to focus purely on Planning and meeting local guidelines - looking to maximise the potential of the site rather than consideration to the existing cottage. Using the height of the apartment block to the north as a guide, various schemes using 3 levels were explored. [Collingwood was on the up and up] and maximising the site potential seemed to be the sensible [financial] way to go.
© Jack Lovel
C.Jack Lovel
与此同时,我们也开始钻研过去,准备提交安理会,然后我们的态度发生了转变。随着我们了解到更多关于小屋和科尔林伍德斜坡区的情况,我们认为历史上有很大的价值,确保它得到保护是很重要的。
At the same time we also started to delve into the past in preparation for Council submission, and it’s then that our attitude took a turn. As we learnt more about the cottage and the Collingwood Slope district we decided that there was great value in the history, that it was important to ensure it was preserved.
© Jack Lovel
C.Jack Lovel
这栋房子的名字来源于爱德华·克里斯普(EdwardCrisp),他是一位爱尔兰酿酒商,在附近的剑桥街建立了伯顿啤酒厂(BurtonBrewery)。这是19世纪50年代早期定居期间从英国进口的一座预制农舍。科林伍德斜坡是墨尔本以外最早的分区之一,工业家们都蜂拥而至。他们很快就需要住房,这些木材住宅在整个地区出现,后来被更多的砖房取代。脆屋是柯林伍德现存最古老的木材住宅之一,这也是高评级的原因。爱德华实际上建造了附近的砖房,并在60年代后期将他的家人搬到了那里,克里斯普大厦(Crisp House)在那里进行了进一步的扩建,后来发展成了两座小农舍,这就是我们今天看到的两个前门。
The house name derives from an association with Edward Crisp, an Irish brewer who established the Burton Brewery in nearby Cambridge Street. It was a pre-fab cottage imported from England during early settlement of the 1850’s. The Collingwood Slope was one of the first subdivisions outside of Melbourne and the industrialists all flocked here. They needed accommodation quickly and these timber dwellings appeared throughout the area, to be replaced later with more substantial brick dwellings. Crisp House is among the oldest remaining timber dwellings in Collingwood, and this is the reason for the high rating. Edward actually built the neighbouring brick home and moved his family into there in the late 60’s, Crisp House undergoing further expansion around then into 2 small cottages which accounts for the 2 front entrances we see today.
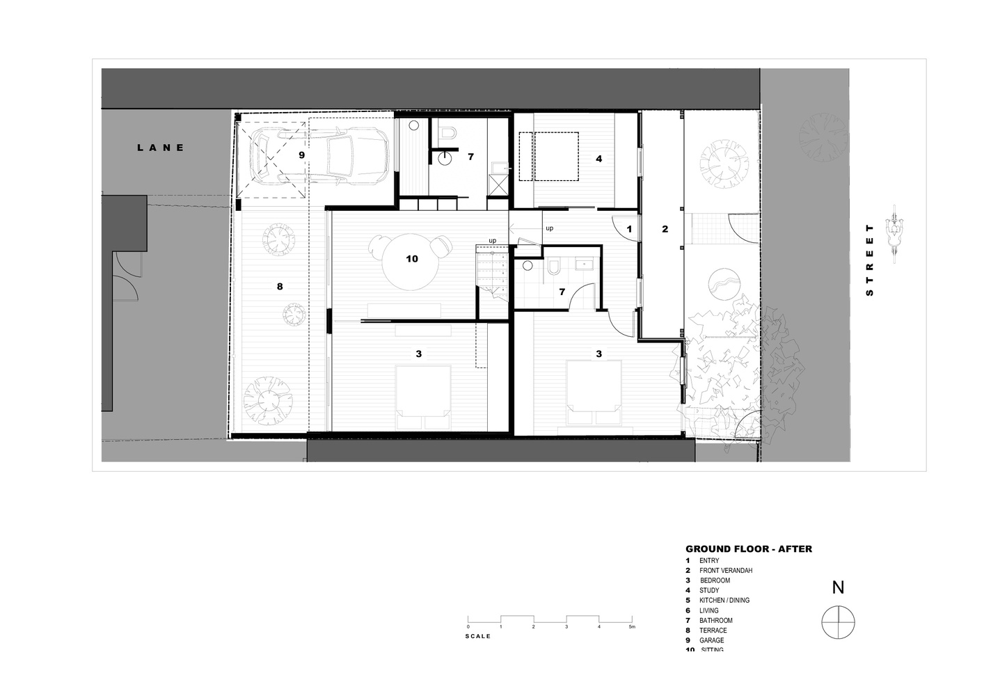
After / Elevations
后/海拔
所进行的修复工程包括完全重新建造原来的小屋-没有任何东西是可赎回的。串珠状的风向板是在波罗的海松中复制的,以原来的木板为模板,事实上在19世纪60年代的转换中有两种尺寸的小尺寸板。原来的双挂帘线和重量窗被复制,较小的6窗格结构在之前的翻新工程中被移除后重新引入。木材廊柱连同木制装饰细节一起归还,在拆除小屋的过程中,我们收集了一袋手工伪造的钉子,它们的存在使我们着迷,并极大地提醒了它的时代。
The restoration works undertaken included a complete re build of the original cottage - nothing was of a redeemable quality. The beaded weatherboards were reproduced in Baltic pine using the original boards as the template, there were in fact 2 sizes as the conversion in the 1860’s used a smaller sized board. The original double hung cord and weight windows were reproduced, and the smaller 6 pane configuration reintroduced after being removed during previous renovation works. The timber veranda posts were returned along with the wooden decorative details, and during the demolition of the cottage we were able to collect a bag of hand forged nails, fascinated by their existence and a great reminder of its age.
© Jack Lovel
C.Jack Lovel
这一设计把一间狭小的小屋开辟成了一座自由流动的通风住宅.一旦通过了原来的部分住宅,使用广泛的玻璃和北面的天窗充满了光的内部。大的滑动门打开到外面的区域与无缝的地板水平。结构元素已经暴露,增加了视觉兴趣的内部强调和庆祝一系列自然完成-胶合板/橡木/钢/青石/水泥。遮挡在斜屋顶形式后面的是一个大型屋顶露台,它将主要的室外空间提升到保证太阳能进入的水平,并且通过雕塑的外部钢和木制楼梯很容易从生活空间进入。
The design has opened up a small confined cottage into a free-flowing airy residence. Once past the original portion of the dwelling, the use of extensive glazing and north facing skylights flood the interiors with light. Large sliding doors open up to the outside areas with seamless floor levels. Structural elements have been left exposed adding visual interest to the interiors which emphasise and celebrate a range of natural finishes – plywood /oak /steel /bluestone /cement. Concealed behind the angled roof form is a large roof terrace which brings the primary outdoor space up to a level where solar access is guaranteed and is easily accessible from the living spaces via a sculptural external steel and wooden stair.
© Jack Lovel
C.Jack Lovel
19和20世纪以来,在不同的传统和工业建筑街景中,在一个不断发展和变革的地区,克里斯普大厦终于保住了自己的位置。它的两边都是高楼,原来的农舍几十年来都被淹没和忽视-它的身份因不适当的治疗而受损。这些新作品填补了这一空白,为160年前起源于英国的忠实修复的住宅提供了一个敏感和隐性的背景。
In a varying streetscape of heritage and industrial buildings from the 19th and 20th centuries, and in an area of continued development and change Crisp House has finally secured its place. Hemmed in by taller buildings either side of it, the original cottage was overwhelmed and neglected for decades - its identity compromised by inappropriate treatments. The new works now fill in this gap and provide a sensitive and recessive backdrop to the faithfully restored dwelling that originated some 160+ years ago in England.
© Jack Lovel
C.Jack Lovel
客服
消息
收藏
下载
最近























