查看完整案例


收藏

下载
© Michael Sinclair
迈克尔·辛克莱
架构师提供的文本描述。让 Kay 和 KristianHyde 说出那些能让一个好的设计成为一个很好的生活场所的东西,你永远也无法确定会有什么样的反应。它可能是光,空间和好诗。或者寻找某种重力。
Text description provided by the architects. Ask Kay and Kristian Hyde to name the things that help make a good design a great place to live, you can never be quite sure what the response will be. It might be light, space and good poetry. Or a search for a certain gravitas.
在银屋的例子中,它是真实的,尊严的,和一定的建筑完整性。
In the case of Silver House, it was authenticity, dignity, and a certain architectural integrity.
坐落在高尔半岛的石灰岩悬崖上,布里斯托尔海峡与大西洋交汇,这是威尔士海岸的珍贵部分,是英国第一个公认的杰出自然美景地区。
Perched up high on a limestone cliff on the Gower Peninsula, where the Bristol Channel meets the Atlantic Ocean, this cherished part of the Wales coastline was the first recognised Area of Outstanding Natural Beauty in the UK.
© Michael Sinclair
迈克尔·辛克莱
希尔弗一家搬到这个地方,向奥克斯威奇点望去,这本身就是一种声明。他们想逃跑。他们渴望远离伦敦的和平与孤独。他们想要感受到自然环境的一部分,重新与自然联系起来。
The Silver’s family’s move to this spot looking out towards Oxwich Point was a statement in itself. They wanted to escape. They craved peace and solitude away from London. They wanted to feel part of the natural environment and reconnect with nature.
木材的温暖保护着它们。裸露的梁与农业建筑的构造相呼应。这块石头让他们想起了中世纪传统上在高尔岛建造的几英里长的干燥石墙,并保护它们免受狂风暴雨的侵袭。
The warmth of wood protects them. Exposed beams echo the tectonic construction of agricultural buildings. The stone reminds them of the many miles of dry stone walls built on Gower in the medieval tradition, and protects them from the heavy storms that pass over. © Michael Sinclair
迈克尔·辛克莱
最近,银屋被威尔士皇家建筑师协会授予“2017 年最佳建筑”。它还赢得了“星期日泰晤士报”英国家庭奖 (年度大房子奖) 的高度赞扬,并在 2017 年威尔士国家特色建筑奖上获得威尔士建筑金奖提名,并被列入“每日电讯报”住宅的候选名单。
Recently, Silver House was awarded the Royal Society of Architects Wales “Best Building of 2017”. It also won Highly Commended at the Sunday Times British Homes Awards (large house of the year category), was nominated for Wales’ Gold Medal for Architecture at the 2017 National Eisteddfod of Wales and is shortlisted for The Daily Telegraph Homebuilding & Renovating Awards 2017, the Build It Awards 2017, the RIBA Stephen Lawrence Prize 2017 and the Blueprint Awards 2017.
© Michael Sinclair
迈克尔·辛克莱
这些荣誉反映了海德的创新方法。就像银屋一样,这个过程总是从客户的个人故事开始。这项工作与原始情感有关,也与原材料有关。
These accolades reflect Hyde + Hyde’s innovative approach. And just as it did with Silver House, the process always starts with the personal stories of the clients. This work has just as much to do with raw emotion as it does with raw materials.
© Michael Sinclair
迈克尔·辛克莱
甚至在绘制初步草图之前,就有一些对话需要进行,还有一些问题要问。
Even before the preliminary sketches are drawn, there are conversations to be had, questions to be asked.
你最感兴趣的是什么?你读、听、学谁?是谁激励你的?你的希望、梦想和抱负是什么?
What are you most passionate about? Who do you read, listen and learn from? Who inspires you? What are your hopes, dreams, and ambitions?
克里斯蒂安说:“重要的是要有私心。”“我们的客户来找我们的愿望是创造出不仅仅是设计美学的东西。他们喜欢这样的想法:我们可以帮助他们反映他们是谁,他们的家对他们意味着什么。我们质疑他们的生活方式,开辟新的方式来庆祝这一生。这整个过程就是让他们留下自己的印记,讲述一个将延续多年的故事。“
"It’s important to get personal," says Kristian. "Our clients come to us with a desire to create something more than just a design aesthetic. They like the idea that we can help them reflect who they are and what their home means to them. We question how they live, open up new ways of celebrating this life. This whole process is about them making their personal mark, telling a story that will last through the ages."
© Michael Sinclair
迈克尔·辛克莱
正如每个项目与一个亲密的叙事共鸣,每一个设计也与环境和自然的力量有很强的联系。银屋提供了一个完美的例子,这是如何在实践中。
Just as each project resonates with an intimate narrative, every design also has a strong connection with the environment and the forces of nature. Silver House provides the perfect illustration of how this works in practice.
1st Floor Plan
一楼图则
Ground Floor Plan
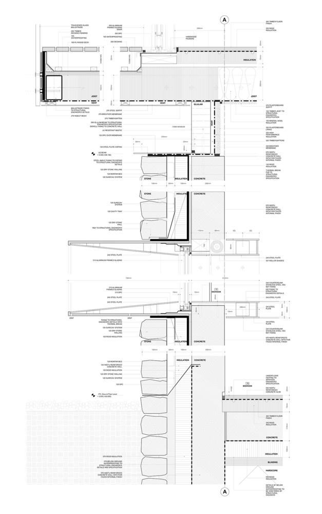
嵌入的视觉图像的家园捕捉了偏远的沿海性质的遗址和附近的乡土文化遗产。它对经过半岛的未经驯服的天气锋作出了反应。它的生存和庆祝其狂野的背景。
The embedded visual iconography of the home captures the remote coastal nature of the site and the vernacular heritage nearby. It responds to the untamed weather fronts that pass over the peninsula. It endures and celebrates its wild context.
© Michael Sinclair
迈克尔·辛克莱
银屋的内部计划一整天都在对海岸的光线变化作出反应。厨房朝向朝阳,正午的居住空间,主卧室面向夕阳。
The internal programme of Silver House reacts to the shifting coastal light throughout the day. The kitchen is located towards the rising sun, living spaces for midday, with the master bedroom facing the setting sun.
© Michael Sinclair
迈克尔·辛克莱
Architects Hyde + Hyde Architects
Location United Kingdom
Architects in Charge Kay Hyde, Kristian Hyde
Project Year 2017
Photographs Michael Sinclair
客服
消息
收藏
下载
最近

















