查看完整案例


收藏

下载
© Lisbeth Grosmann
Lisbeth Grosmann
架构师提供的文本描述。盖博屋是位于桑德林厄姆的爱德华式木屋,靠近火车站、商店和海滩。在该地区许多时期的典型房屋中,先前的一次扩建在后面增加了一个房间,其中包括主卧室、厨房和膳食区,但这一空间遭受了南方向和房间配置差的困扰。
Text description provided by the architects. Gable House is an Edwardian timber cottage in Sandringham, close to the train station, shops and beach. Typical of many of the period houses in the area, a previous extension had added a room on the back incorporating the main bedroom, kitchen and meals area but this space suffered the ailments of a south orientation and poor room configuration.
© Lisbeth Grosmann
Lisbeth Grosmann
我们需要考虑如何更好地利用这个空间。客户觉得他们不需要更大的房子,而只需要一个更好的房子,这让他感到很舒服。设计简约是提供一个宽敞,轻盈,开放的平面区域在后面,更好地连接到后院,纠正了缺乏隐私之间的主要卧室和客厅。现有房屋面积已达207平方米,场地面积为491平方米,客户不愿牺牲任何后院,也不愿过度利用这一相对较小的场地。
We needed to consider how this space could be better utilized. The client was comfortable that they didn't need a bigger house, just one that worked better. The design brief was to provide a spacious, light-filled, open plan area at the back that better connected to the backyard and corrected the lack of privacy between the main bedroom and living area. The existing house already measured 207 m2 and with a site area of 491 m2, the client was reluctant to sacrifice any backyard nor overcapitalize on the relatively small site.
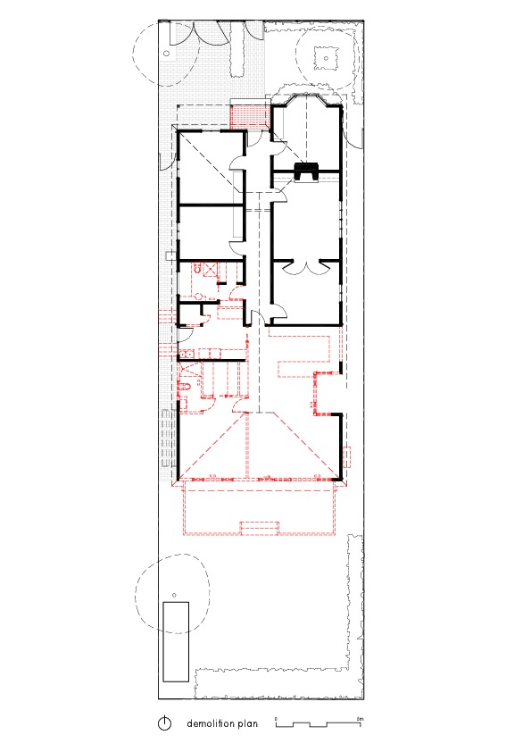
Floor Plan
在前面的定期房屋保留,包括3间大小良好的卧室,正式休息室,餐厅和原来的走廊。浴室和洗衣房进行了翻新和改造,包括一个单独的化妆间。在房子的后面,新增加的尽可能小,以保留后花园,并满足理事会的要求,现场覆盖。在主卧室和家庭区域各增加了2种山墙屋顶形式,以提高天花板,提高空间的质量。
The period house at the front was retained, incorporating 3 good-sized bedrooms, formal lounge, dining room and original hallway. The bathroom and laundry were refurbished and reworked to include a separate powder room. At the rear of the house, the new addition was kept as small as possible to retain the rear garden and meet Council requirements for site coverage. 2 gable roof forms were added, one each for the main bedroom and family area, to lift the ceilings and give a quality of spaciousness.
© Lisbeth Grosmann
Lisbeth Grosmann
主卧室稍微延伸了一段时间,可以穿长袍和套间散步,它的入口被重新改造,以模糊从起居区到它的视野。厨房和起居区被翻转,将厨房与一个新的外甲板连接起来,而高高的山墙屋顶被延伸到甲板上,就像一棵木桩。当玻璃滑动堆叠门打开,整个东西变成一个室外空间,内外工作真的很好地结合在一起。
The master bedroom was extended slightly to provide a walk in robe and ensuite and its entry reworked to obscure views to it from the living area. The kitchen and living area were flipped to connect the kitchen with a new outside deck, while the lofty gable roof form was extended over the deck as a timber pergola. When the glazed sliding stacking doors are open the whole thing becomes an outdoor space and the interior and exterior work really well together.
© Lisbeth Grosmann
Lisbeth Grosmann
为了捕捉阳光,在厨房的东边刻了一扇新的窗户和天窗,在一天的不同时间提供了美丽的阳光。厨房的长凳突出在天窗下,就像一个木材早餐吧。无源能源设计
,新的窗户和天窗,为南面厨房和餐饮区提供了巨大的太阳能通道。厨房和餐饮区是为了享受这些阳光的时刻,而定位和连接到南面的后院。
To catch the sun a new window and skylight were carved into the east side of the house at the end of the kitchen, providing lovely moments of sunlight at different times of the day. The kitchen bench juts out under the skylight as a timber breakfast bar. Passive energy design
The new window and skylight offer the south facing kitchen and meals area great solar access. The kitchen and meals area are organized to enjoy these moments of sun, while orientated and connected to the south facing backyard.
© Lisbeth Grosmann
Lisbeth Grosmann
可持续性
大部分现有房屋被保留或改造,减少了浪费。屋顶是隔热的金斯潘空气电池和R3.5批。R3.5还在现有上限中增加了批数。新的轻质墙是用R2和硅砂绝缘的,地板上安装了新的R2绝缘材料。所有新的窗户是漆澳大利亚硬木木框与低E透明双层玻璃。房子使用低能LED照明。保留了现有的地板管道气体加热系统,并对其进行了改造以适应改变,现有的蒸发冷却系统也是如此。
Sustainability
Most of the existing house was retained or reworked, reducing waste. The roof is insulated with Kingspan Air-cell and R3.5 batts. R3.5 batts were also added to the existing ceiling. New lightweight walls are insulated with R2 batts and sisalation and the floor is fitted with new R2 insulation. All new windows are painted Australian hardwood timber frames with low E clear double glazing. The house uses low energy LED lighting. The existing floor ducted gas heating system was retained and reworked to suit the alterations, as was the existing evaporative cooling system.
© Lisbeth Grosmann
Lisbeth Grosmann
这所房子坐落在一条主要是浅色木材房屋的街道上。所选择的材料是从质量和美学的角度来选择的。客户寻找一个轻松,中立的内部,舒适地坐在原来的爱德华,并接近海滩。室内是相当克制的白色空间,色调和纹理的微妙变化,使用墙砖,砖和木材。
的厨房是一个白色的2包,一个重组的石凳顶部,并包括一个回收黑屁股早餐吧。现场油漆完成是低-VOC。屋顶的薄板是辛卡卢姆。新的木材地板是黑屁股,并完成了博纳交通。瓷砖是由传统陶瓷制成的。
Materials
The house sits in a street of predominantly light colored, timber houses. The materials selected were chosen for their quality and aesthetics. The client sought a relaxed, neutral interior that sat comfortably with the original Edwardian and proximity to the beach. The interiors are fairly restrained white spaces with subtle shifts in tone and texture by use of wall tiles, brick, and timber.
The kitchen is a white 2-pack with a reconstituted stone bench top and incorporates a recycled Blackbutt breakfast bar. Site painted finishes are low-VOC. The roof sheeting is Zincalume. The new timber flooring is Blackbutt and finished with Bona Traffic. The ceramic tiles are from Classic Ceramics.end-0
© Lisbeth Grosmann
Lisbeth Grosmann
Architects Sheri Gaby Architects
Location Sandringham, Australia
Area 217.0 m2
Project Year 2016
Photographs Lisbeth Grosmann
Category Extension
Manufacturers Loading...
客服
消息
收藏
下载
最近
















