查看完整案例


收藏

下载
© Troy Thies
特洛伊泰斯
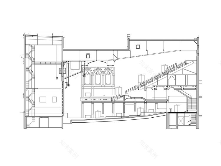
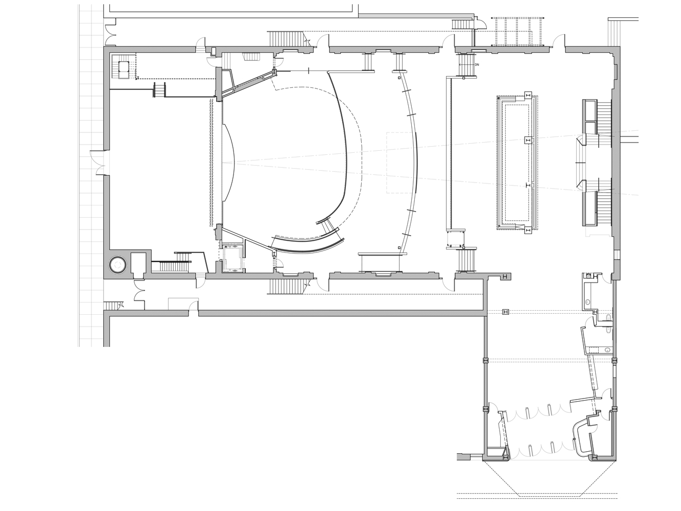
架构师提供的文本描述。皇宫剧院建于1916年,坐落在圣保罗娱乐区中心的图书馆大楼的灰烬上。这座剧院最初是一座杂耍之家,但很快就变成了一家电影院,直到1984年才关闭。该剧院在1986年和2001年至2004年的短期内投入使用。70年的使用和30年的衰败留下了一个深刻和分层的故事。大楼里的每一个空间都充满了一种历史感、沉睡感和忽视感。我们的任务是讲述这个故事,在明尼苏达州的首都市中心,对这些遗留下来的东西做一些令人信服的报道。
Text description provided by the architects. The Palace Theatre was built in 1916 on the still smoldering ashes of the Library Building in the heart of St. Paul’s entertainment district. The theater began as a vaudeville house but quickly transformed into a movie theater, which it remained until closing in 1984. The theater was used on a short-term basis in 1986 and again from 2001 to 2004. Seven decades of use followed by three decades of decay left a deep and layered story. Each space within the building was imbued with a sense of history, dormancy and neglect. It was our task to tell this story, to make something compelling of these remnants in the heart of Minnesota’s capital city.
这个项目的使命和一个世纪前皇宫剧院开门时一样,就是为了展示我们这个时代受欢迎的表演艺术家。该项目的总体设计战略是“通过稳定保持”。这样做的目的不是为了恢复建筑的原状,而是为了保护剩余的历史结构。该团队努力推迟和拆除随后的翻修,以发现、稳定和保护1916年建筑的遗迹,并根据需要补充现代建筑技术。
The mission for this project was the same as when the Palace Theatre opened its doors a century ago, to showcase the popular performing artists of our time. The overall design strategy for the project was “preservation through stabilization”. The intent wasn’t to restore the building to its original state, but a conservation to feature the remaining historic fabric. The team worked to delayer and strip away subsequent renovations to uncover, stabilize, and protect what remains of the 1916 construction, supplementing complementary modern construction techniques as required.
© Troy Thies
特洛伊泰斯
到获得资金时,大楼正在迅速恶化。项目组与业主一起运作时,认为年龄、损坏和缺陷讲述了一个重要的故事。通过选择稳定,而不是修复或面具,故宫剧院和圣保罗城的故事是开放的和容易的。
By the time funding was secured the building was rapidly deteriorating. The project team, in conjunction with the owner, operated under the notion that the age, damage, and imperfections told an important story. By choosing to stabilize, not to repair or mask, the story of the Palace Theatre and the city of St. Paul is left open and accessible.
© Darin Kamnetz
达林·坎涅茨
Architects Oertel Architects
Location St Paul, MN, United States
Architect in Charge Thomas Stromsodt
Area 36328.0 ft2
Project Year 2016
Photographs Troy Thies, Darin Kamnetz
Category Renovation
Manufacturers Loading...
客服
消息
收藏
下载
最近
















