查看完整案例


收藏

下载
© Tove Lauluten
.Tove Lauluten
架构师提供的文本描述。霍尔门水上运动中心是霍尔曼海滩的延续,通过保护和加强网站的自然品质。建筑物占用的脚印被屋顶花园所取代,这进一步提高了海滩的体验和壮观的景色。
Text description provided by the architects. Holmen Aquatics Center is a continuation of Holmen beach, by protecting and reinforcing the site’s natural qualities. The footprint occupied by the building is replaced with a roof garden that further enhances the experience of the beach with spectacular views.
© Tove Lauluten
.Tove Lauluten
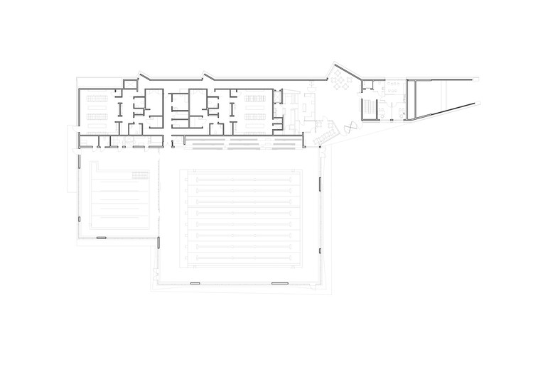
Floor Plan
© Tove Lauluten
.Tove Lauluten
该项目概念的重点是激活建筑物的屋顶,使其成为霍尔曼海滩游憩区不可分割的一部分。长满草的屋顶向南倾斜,在奥斯陆峡湾的岛屿和珊瑚礁上提供了不间断的景观。
The focus point of the project’s concept is the activation of the building’s roof as an integral part of Holmen beach recreation area. The grassy roof slopes towards the south and provides an uninterrupted view over Oslo fjord’s isles and reefs.
© Tove Lauluten
.Tove Lauluten
© Geir Andres Rybakken Orslien
c Geir Andres Remoakken Orlien
主入口、接待处、更衣室和游泳池大厅位于大楼的主层,从斜坡到大楼的草坪上升起。较低层次的房屋体育馆,多功能厅,技术空间和工作人员设施。
The main entrance, reception, changing rooms and swimming pool hall are located on the building’s main level, rising over the lawn that slopes up to the building. The lower level houses gym, multifunction hall, technical spaces and staff facilities.
© Tove Lauluten
.Tove Lauluten
Architects ARKIS architects
Location Devikveien 6, 1394 Nesbru, Norway
Area 5319.0 m2
Project Year 2017
Photographs Tove Lauluten, Lasse Leonhardsen, Geir Andres Rybakken Orslien
Category Swimming Pool
Manufacturers Loading...
客服
消息
收藏
下载
最近




































