查看完整案例


收藏

下载
建筑公司Aricol ArquArchtura S.L.技术建筑师Luis Martínez Almazán Structure Analysis Eduardo y Oscar Ingeniería S.L.P合作者Alberto Vicario
Construction Company Aricol arquitectura S.L. Technical Architect Luis Martínez Almazán Structure Analysis Eduardo y Oscar Ingeniería S.L.P Collaborator Alberto Vicario More Specs Less Specs
© Josema Cutillas
(Josema Cutillas)
架构师提供的文本描述。一种环绕着一个大的中央空间的盒子,它有双高,眼睛和光线都可以通过。
Text description provided by the architects. A box Organized around a large central space with a double height through which the eye and the light can pass.
© Josema Cutillas
(Josema Cutillas)
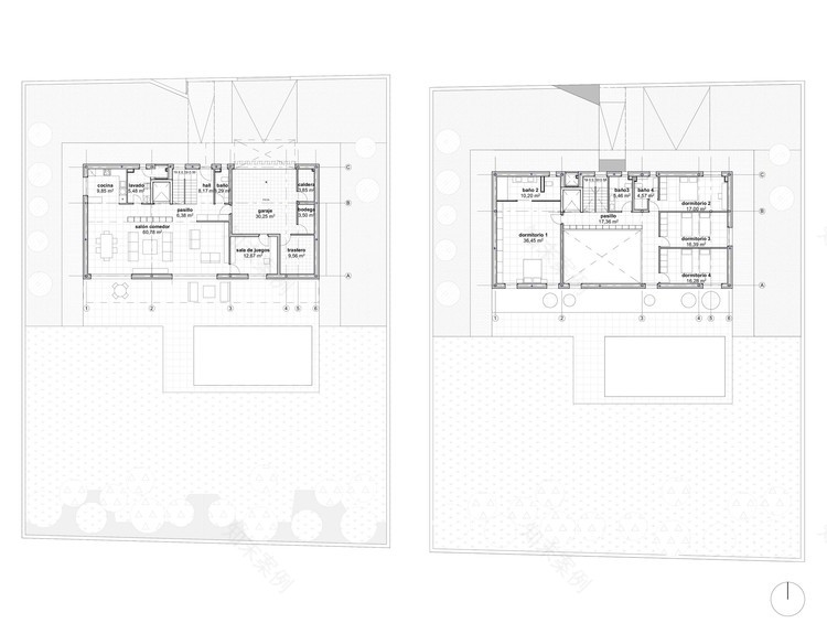
该项目的基本理念是优化房间的使用,并创造一种明显的空间感。通过使用两个大型货架单元,实现了底层的正交布置。各单位组织空间,同时分离和加入用途。因此,在东西方向上,我们有重要的家园空间,而南北地带将服务空间与服务空间分隔开来。
The idea underlying the project was to optimize the use of the rooms and create a marked feeling of space. The orthogonal layout of the ground floor is achieved through the use of two large shelving units. The units organize the space, separating and joining the uses at the same time. As a result, in the east-west direction, we have the vital spaces of the home, while the north-south strip separates and divides the serving spaces from the served ones.
© Josema Cutillas
(Josema Cutillas)
© Josema Cutillas
(Josema Cutillas)
北立面包含房子的技术区域,比为其他房间提供服务的空间更大。因此,连接到这个外观,我们有水平和垂直循环系统和安装系统。在房子的南面,有可以享受的房间和空间:客厅、餐厅、游戏区和卧室。有了这样的布局,就有可能将空间组织起来,充分发挥其潜力,并以一种简单和连贯的方式连接建筑物的设施。
The north façade contains the technical area of the house, the space than provides service to the other rooms. Hence, linked to this façade, we have the horizontal and vertical circulation systems and the installations system. In the south of the home are the rooms and spaces to be enjoyed: the living room, dining room, games area and bedrooms. With this layout, it was possible to organize the space to its full potential and to connect the building´s installations in a simple and coherent way.
© Josema Cutillas
(Josema Cutillas)
一楼的走廊仅由架子单元划定,没有门。在一楼,走廊是整个家庭的纽带,视觉上连接着两层楼。此外,它的特点是一端有一扇大窗户,这样,从走廊往下看,眼睛就会被抬到房子的边缘以外。
The corridor on the ground floor is delimited only by the shelving units; it does not have doors. On the first floor, the corridor is the nexus of the entire home, visually connecting the two floors. It features, moreover, a large window at one end so that, on glancing down the corridor, the eye is carried beyond the confines of the house.
© Josema Cutillas
(Josema Cutillas)
关于立面设计,开口的位置是根据每个立面的能量要求及其后面的空间。因此,你可以在北面看到较小的开口,而在南方则有较大的开口,在那里大多数活动都发生在家里。厨房所在的湿地板上只有一个可调节的开口,从而减少了一个较大的开口所造成的能量损失。
With regard to the façade design, the openings were positioned according to the energy requirements of each façade and the spaces behind them. You can therefore see smaller openings in the north façade and large ones in the south, where most activity within the home takes place. There is a single adjustable opening in the wets façade where the kitchen is located, thus reducing the energy loss that a larger opening would have caused.
Architects Esther Vicario Azcona
Location Lardero, Spain
Area 350.0 m2
Project Year 2017
Photographs Josema Cutillas
Category Houses
Manufacturers Loading...
客服
消息
收藏
下载
最近










































