查看完整案例


收藏

下载
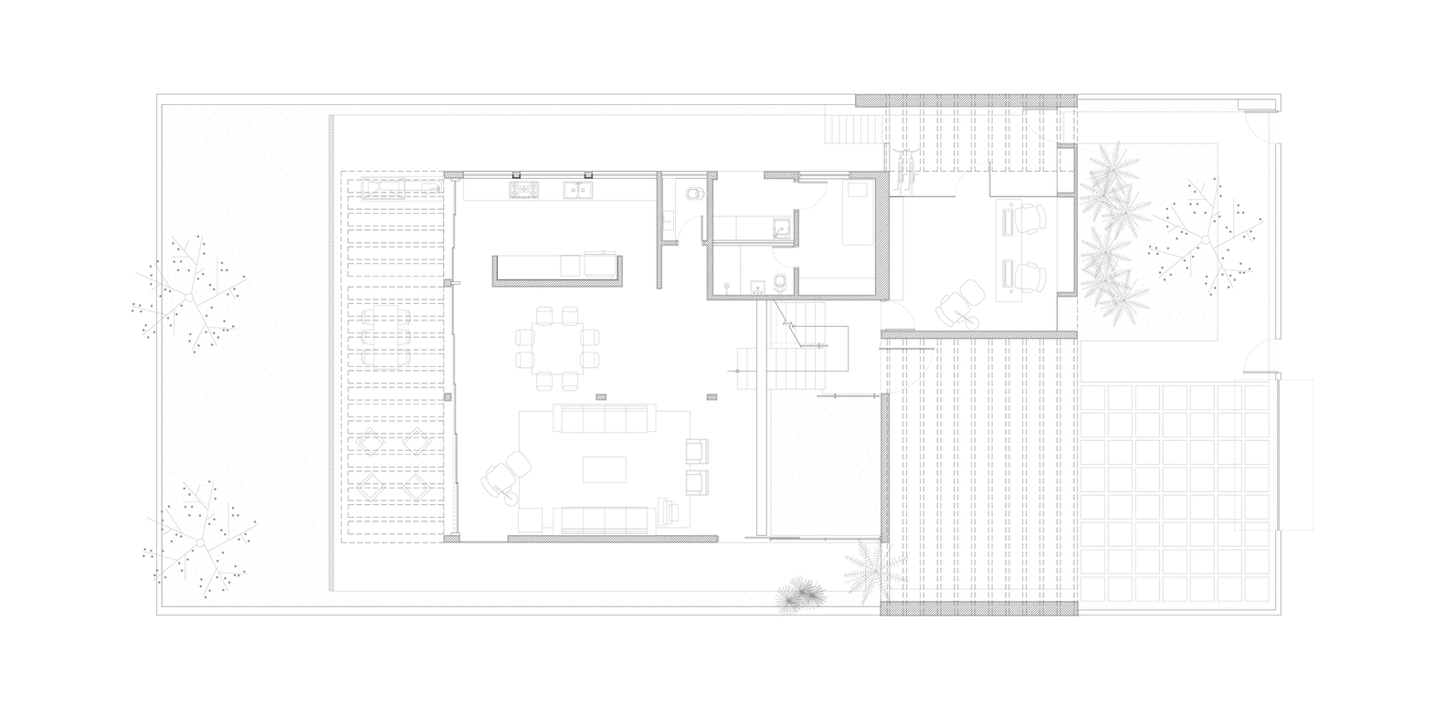
没人能想象,在看完这座房子之后,直到最近才发现它的可怕状态。经过40年的使用,它已得到了极大的更新,需要克服一些障碍,比如墙的分隔过多导致空间清晰度差和流通不良,还有需要淘汰占地100平方米的后院建筑。还有其他障碍。建筑公司Casa14阿奎图拉,由其专业人员Mariana Andersen和Mariana Guardani领导,负责执行300平方米项目。
画廊中的视图
在画廊后院用玻璃门观看
画廊中的视图
画廊中的视图
与花园相连的现代客厅景观
我们推荐这些项目-豪宅-加里福尼亚Bungalow豪宅的改造与扩展
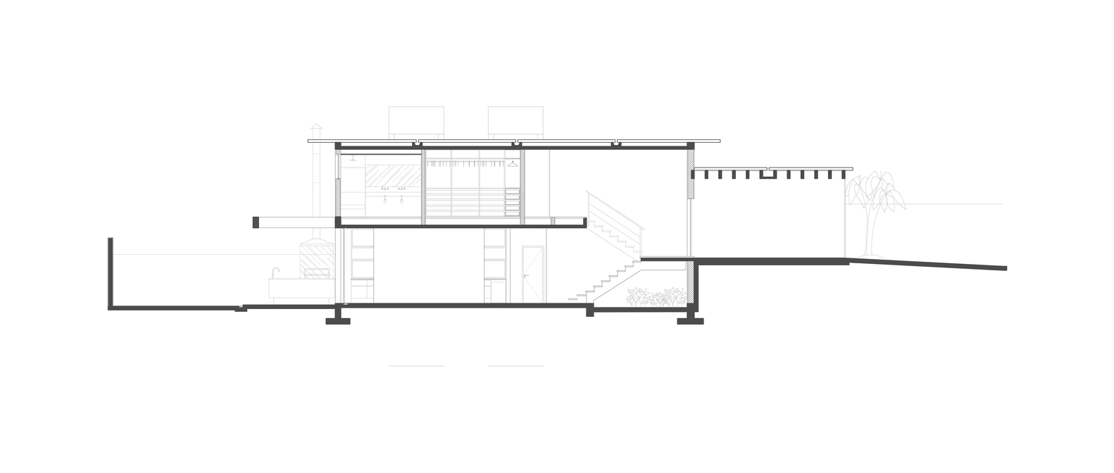
为了组织这个项目,建筑师们提议取消附件,消除房子下部的隔板,然后平移社交区域的地板。这样可以整合房间和扩大花园,包括内部,这使得阳台成为主要生计,负责客厅、厨房和后院之间的过渡。
有露台的画廊客厅景观
画廊视野宽敞明亮的工作室
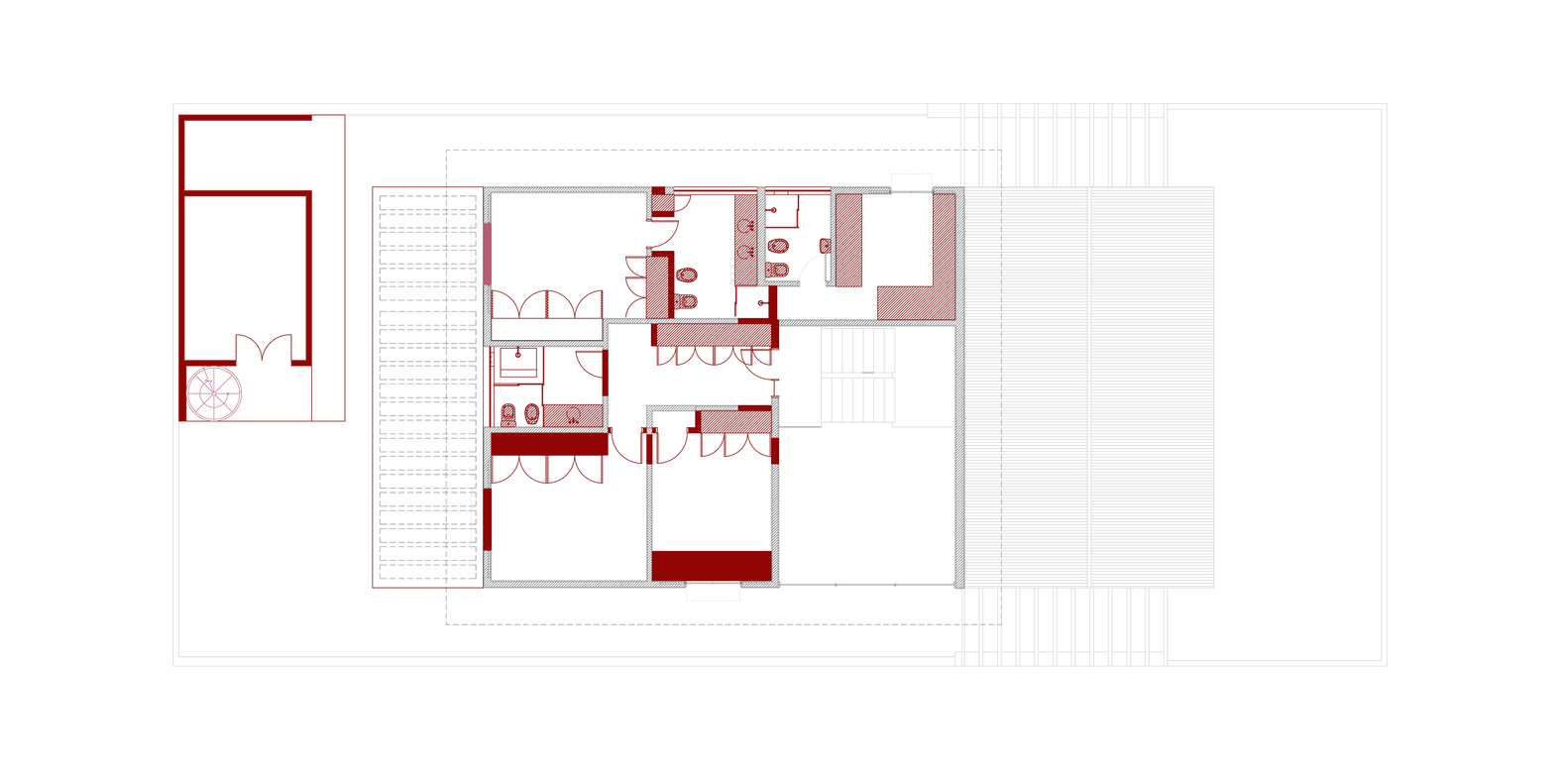
起居室内亦加设玻璃框,将推拉门伸延,以增加观感及外部照明,私人空间位于二楼。在此之上,我们找到了亲密的领域,当你拥有优秀的专业人士和一个组织完善的计划时,你能取得的成就是惊人的。
画廊内的现代厨房,可进入露台。
用木制台阶在画廊楼梯上观看
画廊内花园景观
画廊中的视图
在画廊看到舒适的卧室充满阳光
露台夜景
在画廊看到房子的夜景
画廊中的视图
画廊中的视图
画廊中的视图
画廊中的视图
画廊中的视图
keywords:Bedroom Bookshelf Contemporary Interior Design Decorative Accessory Floor Plans Glass Walls Hall and Entrance Kitchen Landscaping Lighting Living Room Rug Staircase Study Room Terrace Wood Floors
关键词:卧室、书架、现代室内设计、装饰附件、平面图、玻璃墙、大厅和入口厨房、景观美化、起居室、地毯、楼梯、书房、露台、木地板
客服
消息
收藏
下载
最近





















