查看完整案例


收藏

下载
© Ippei Shinzawa
(IppeeShinzawa)
架构师提供的文本描述。这套二手共管公寓位于东京都,是一座郁郁葱葱的绿城,靠近塔马河和市立公园,通往东京市中心。由于高速公路上的Chofu交汇处很近,通往日本阿尔卑斯山的通道很好。我们在四楼的一间角落套房里为一对热爱山的夫妇设计了一套房子。
Text description provided by the architects. The Tokyo prefecture Chofu City where this second-hand condominium is located is a lush green commuter town where close to the Tama river and the municipal park, and access to the central Tokyo well. There is good access to the Japan Alps owing to the proximity of Chofu Interchange on expressway. We designed a house for a couple who loves mountains in a corner suite on the 4th floor.
© Ippei Shinzawa
(IppeeShinzawa)
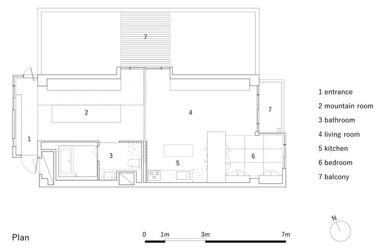
从那里,他们可以在阳光明媚的日子看到西侧的塔考。这对夫妇每个周末都到山上和田里去爬山、徒步过河、滑雪、猎蘑菇等…。他们平日在东京中心工作。夸张地说,他们住在山里大约四分之一年。当然,他们有很多户外用具,而在原来居住的公寓里,一个叫做“山间”的房间-大约9㎡-是齿轮储藏室。
From there they can view Mt.Takao on the west side on a sunny day. The couple go out to mountains and fields at the every weekend in order to climb mountains, trek river, ski, hunt mushrooms, etc… and they are work in central Tokyo on weekdays. Exaggeratedly, they are living in mountains about a quarter of a year. Of course, they have many outdoor gear, and in the apartment that originally lived, a room called "mountain room” about 9 ㎡ was the gear storage place.
Floor Plan
在这次的装修中,我们把山间扩大了,住的地方一年的四分之三变小了,调整了房间大小的平衡,使房子成为连接大山和城市的大本营。
In the renovation this time we took the mountain room to expand, took the place to live three-quarters of the year to small, and adjusted the balance of the size of the room to make the house that will be the base camp connecting mountains and cities.
© Ippei Shinzawa
(IppeeShinzawa)
山间的开放是为了使各种活动得以进行,如维护齿轮、准备登山、与山区朋友聚会,而不仅仅是通过扩大到一倍以上的大小来建立一个储藏室。我们选择的砂浆整理,可以方便地清洁地板从入口到阳台,以便允许携带肮脏的装备到阳台,以维护尽快从山上回来。所有存放这些设备的家具都是用劳安胶合板制成的,细节粗糙,便于严格使用,并通过将体积控制在腰部高度来诱导使用,而不是储存。
The mountain room was opened as a place to allow various activities such as maintenance of gear, preparation of mountain climbing, gathering with mountain friends, not just a gear storage place by expanding to a size more than double. We chose mortar finish that can easy cleaning in the floor from the entrance to the balcony so that allow to carry dirty gear to the balcony in order to maintenance as soon as come back from the mountain. All furniture that stores the gear were made of lauan plywood with rough details that allow for tough usage and made to induce usage other than storage by keeping the volume down to the waist height
© Ippei Shinzawa
(IppeeShinzawa)
© Ippei Shinzawa
(IppeeShinzawa)
© Ippei Shinzawa
(IppeeShinzawa)
居住的地方紧紧地聚集在一起,那就是居住、就餐、厨房、卧室。提高了空调的效率,同时又不妨碍视线向三个方向的开放,与山间隔开的框架门。把厨房和卧室分开的家具比其他家具稍高一些,布置得可以把卧室围起来。这样,虽然它是一个房间的布局,我们计划调整周边地区与配件和家具的关系,以使生活舒适。
The place to live was gathered compactly that living, dining, kitchen, bedroom. The efficiency of air conditioning is increased without obstructing the line of sight to the opening in three directions with the frame door that separate the place to live with the mountain room. The furniture separating the kitchen and the bedroom was made a little higher than other furniture and arranged so as to enclose the bedroom. In this way, although it is a one-room layout, we planned to adjust the relationships of neighboring places with fittings and furniture to live comfortably.
© Ippei Shinzawa
(IppeeShinzawa)
我们希望,连接山区和城市的大本营将是这对夫妇冒险的开始,也是他们的目标。
We hope that the base camp connecting mountains and cities will be the start of the couple's adventure and will be the goal.
© Ippei Shinzawa
(IppeeShinzawa)
Architects SNARK
Location Chofu, Japan
Architect in Charge Yu Yamada
Area 75.0 m2
Project Year 2017
Photographs Ippei Shinzawa
Category Houses
客服
消息
收藏
下载
最近






















