查看完整案例

收藏

下载
© James Haefner
詹姆斯·海夫纳
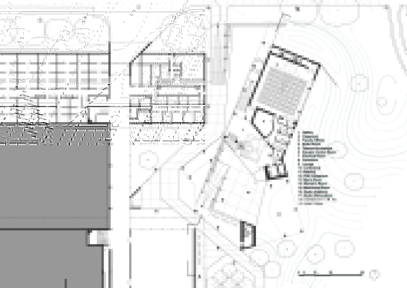
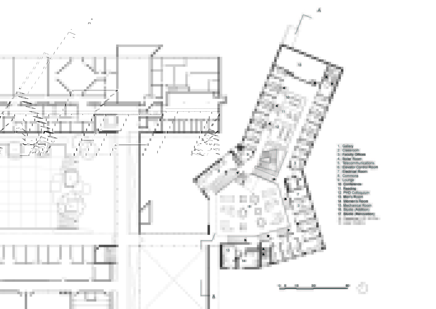
架构师提供的文本描述。最重要和最有趣的挑战之一是两方面的需求:一方面,创建一座36,000英尺2的建筑,从学院现有的建筑/规划部门延伸到艺术中心,一直延伸到博尼斯蒂尔大道,另一方面,让这座位于现有建筑东端的建筑看起来像是在学校的中心,这样它才能成为所有学生和教职员工的流通纽带。简而言之,目标是在线性边缘建筑中建立一个中心。为了使这座三层楼的建筑面积达到所需的范围,一楼的一半都被疏散了,这为学生项目创建了一个户外实验画廊。
Text description provided by the architects. Among the most important and interesting challenges was a twofold demand: on the one hand, to create a 36,000 ft2 building that would stretch from the existing architecture /planning wing of the college, past the art wing, all the way to Bonisteel Blvd, and on the other hand to make this building that is on the eastern end of the existing building act as if it is in the center of the school, in order that it will serve as the nexus of circulation for all students and faculty. In short, the goal was to establish a center within a linear edge building. In order to make the square footage of the three-story building stretch as far as it needed to, half of the ground floor was evacuated, which created an outdoor experimental gallery for student projects.
© James Haefner
詹姆斯·海夫纳
© James Haefner
詹姆斯·海夫纳
以这种方式解除公地,解决了其他几个问题;它允许现有建筑物和新建筑物之间的庭院继续向山谷开放,东面保留池塘,使新建筑能够在现有和新建筑之间开辟一条通道,解决新全体会议和现有建筑物之间的高度差距,从而建立一个上升和连续的内部空间序列。主空间,称为公域,由两对坡道组成,由一个螺旋状的悬空楼梯连接。栏杆的实心部分保持在较低的位置,以便从远处观察中央空间,并阐明显著的尺度效果。
Lifting the commons off the ground this way solved several other problems; it permitted the courtyard between the existing and new buildings to remain open to the valley and retention pond to the east, allowed the new building to create a path through – between the existing and the new -, resolved the disparity in height between the new plenums and the existing building’s, and thereby established an ascending and continuous sequence of interior spaces. The main space, called the commons, is composed of two pairs of ramps linked by a spiral-like suspended stair. The solid parts of the railings are kept low to enable viewing of the central space from afar and to articulate a remarkable scale effect.
© James Haefner
詹姆斯·海夫纳
公地是一个连续的空间,被新的和现有的工作室以及该项目的所有其他基本空间所包围:建筑和规划学生的休息室,教师办公室,以及一套非常分层的会议室和阅览室。它的功能是作为一个休息室,一个进行评论的空间,一个大型制作项目的工作空间,一个重要场合和晚餐的空间,一个演讲和讨论的空间。砖块图案,编织运行的纽带和士兵的追求,是由形式化的隐含阴影或褶皱,从锯齿轮廓延伸到窗户。四个大窗口从工作室传来远处的景致;较小的单独的办公室窗口显示了建筑物内不断变化的水平。
The commons is a continuous space encircled by the new and existing studios, as well as all the other essential spaces of the program: the lounges for architecture and planning students, faculty offices, and a remarkably tiered set of meeting and reading rooms. Its function is to serve as a lounge, a space in which to hold reviews, a workspace for large fabrication projects, a space for important occasions and dinners, and a space for lectures and discussions.The facades combine modest vernacular and cultural building character. The brick pattern, which weaves running bond and soldier’s coursing, is composed to formalize implicit shadows or folds that extend from the sawtooth profile to the windows. Four large windows address distant views from the studio; the smaller individual office windows reveal the changing levels within the building.
© James Haefner
詹姆斯·海夫纳
Design architect Preston Scott Cohen
Location Ann Arbor, MI, United States
Architect Of Record Integrated Design Solutions
Area 36000.0 ft2
Project Year 2017
Photographs James Haefner
Category Educational Architecture
Manufacturers Loading...
客服
消息
收藏
下载
最近



























