查看完整案例


收藏

下载
© Alexandre Delaunay
c Alexandre Delaunay
架构师提供的文本描述。这套公寓位于1920年巴黎第11区的一座工业大楼内。正方形的初始空间被剥离成生混凝土。仅增加一个中央岛屿就足以定义各种空间、入口、主要居住空间、穿衣、水平和垂直循环,而不需要任何墙壁或隔断。
Text description provided by the architects. The apartment is located in a 1920’s industrial building of Paris’ 11th arrondissement. The initial space of square proportions is stripped down to raw concrete. The sole addition of a central island is enough to define a variety of spaces, entrance, main living space, dressing, horizontal and vertical circulations, without the need for any wall or partition.
© Alexandre Delaunay
c Alexandre Delaunay
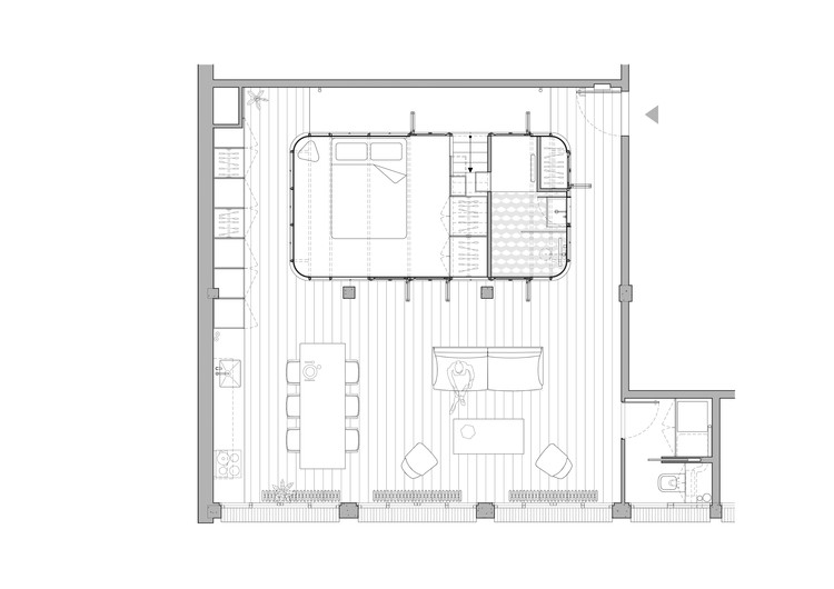
Lower Level Plan
低级计划
© Alexandre Delaunay
c Alexandre Delaunay
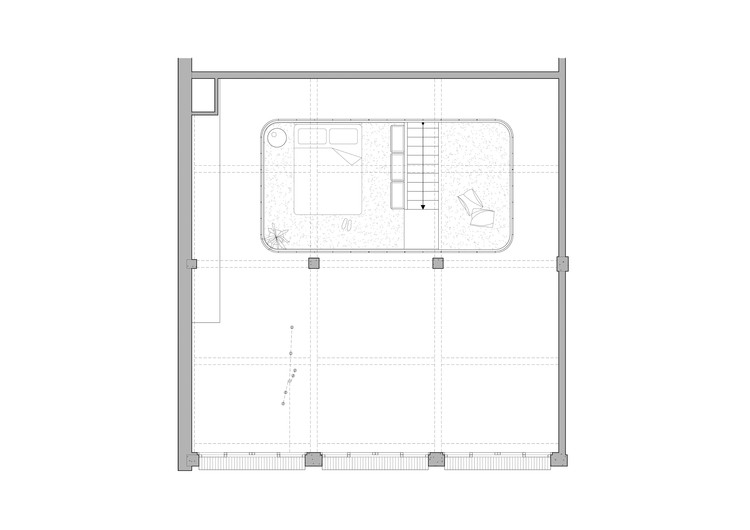
Upper Level Plan
高层规划
© Alexandre Delaunay
c Alexandre Delaunay
粗糙的天花板贯穿整个公寓,而循环建立了一个微妙的等级之间的主要空间和更多的私人区域。岛状覆层由40块铝板组成,这些铝片是自定义的穿孔、折叠、阳极化和安装在金属结构上的。对穿孔百叶窗的操纵为许多光线和隐私场景提供了潜在的可能性。
The rough ceiling runs continuously throughout the apartment while a looping circulation establishes a subtle gradation between the main space and the more private areas. The island cladding consists of 40 aluminum sheets that are custom punched, folded, anodised and mounted on a metal structure. The manipulation of perforated shutters provides the potential for many light and privacy scenarios.
Architects SABO project
Location 11th arrondissement of Paris, 75011 Paris, France
Lead Architects Alexandre Delaunay
Area 81.0 m2
Project Year 2017
Photographs Alexandre Delaunay
Category Apartment Interiors
Manufacturers Loading...
客服
消息
收藏
下载
最近








































