查看完整案例


收藏

下载
© David Montero
(戴维·蒙特罗)
架构师提供的文本描述。Villa Slow是位于西班牙北部的Valles Pasiegos自然公园的一个租房度假胜地,它是在一片超过两公顷的自然景观地形中从一处石头废墟中冒出来的。新的家庭类型学是建立在一个传统的地区被称为“卡巴尼亚帕西加”(农民小屋)的传统建筑,但有一个当代的转折。这座建筑的战略位置位于一座面向南的小山的顶端,让人对山谷和从山上看到了令人印象深刻的景色。
Text description provided by the architects. Villa Slow is a rental holiday retreat in the Natural Park of Valles Pasiegos, in the North of Spain emerging from a stone-ruin within a more than two-hectare terrain of natural landscape. The new home typology is based on a traditional construction of the area called ‘cabaña pasiega’ (peasant cabin) but with a contemporary twist. The strategic location of the construction on top of a little hill facing south, grants impressive views towards the valley and from the mountain.
© David Montero
(戴维·蒙特罗)
Section CC
CC节
© David Montero
(戴维·蒙特罗)
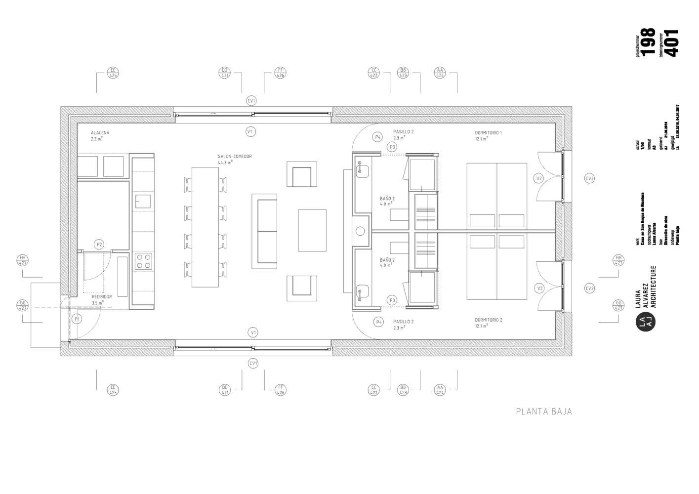
房子的布置很简单。客厅的两扇大全景窗户面向相反的方向,创造了一幅美丽的山峦、云彩和树木景观。这两个洞口让我们可以从房子中央宽敞的起居室欣赏到山谷和山脉的令人印象深刻的景色。两间卧室位于起居区旁边,在东侧,在最私密的一侧,都有自己的浴室和通向无限风景的开口。他们早上收到美丽的光。由于他们的高度很高,浴室的核心上有一个阁楼,可以安排额外的睡眠安排:只有一对夫妇,有孩子的夫妇,朋友等等。
The scheme of the house is simple. Two big panoramic windows in the living room facing opposite directions create a beautiful scenography of mountains, clouds, and trees. These two openings allow to enjoy the impressive views towards the valley and mountains from the spacious living room in the centre of the house. Two bedrooms are situated next to the living area, on the eastern wing, in the most private side, both with their own bathroom and openings to the infinite landscape. They receive beautiful light in the morning. Thanks to their generous height, a mezzanine on top of the bathroom core, allows for additional sleeping arrangements: just a couple, couple with children, friends, etc.
© David Montero
(戴维·蒙特罗)
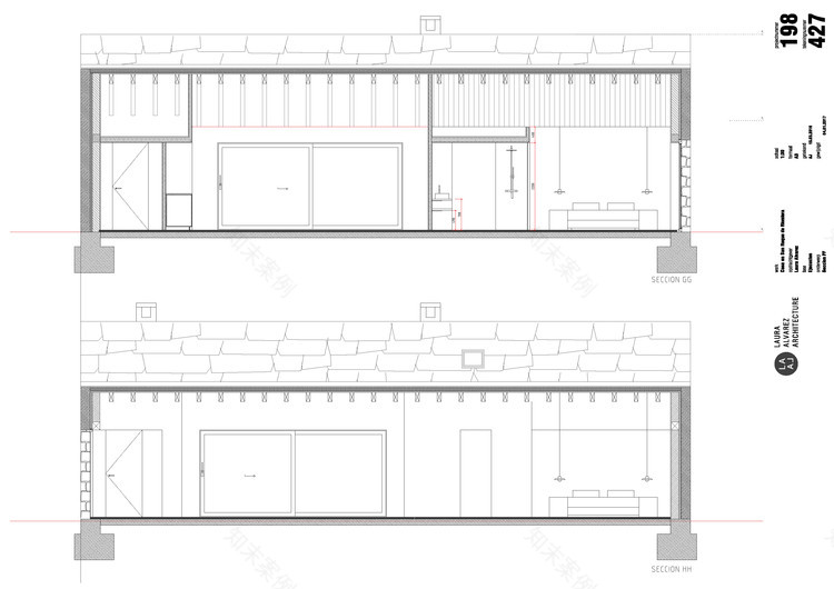
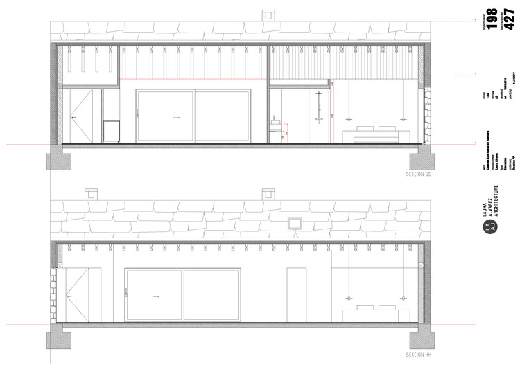
Sections HH + GG
HH GG节
© David Montero
(戴维·蒙特罗)
别墅慢是设计和建造的极端正念和关心细节。这所房子在美学和技术方面非常尊重环境。别墅慢是一个被动的房子,由于热泵,地板加热和高质量的隔热和窗户的最低热量损失。高性能玻璃在冬季温暖的内部和大的木制百叶窗保护不热在夏季。所有用于建造慢别墅的材料都是从旧石棚再使用的,或者来自坎塔布里亚地区。
Villa Slow is designed and built with extreme mindfulness and care for detail. The house is very respectful with the environment in aesthetic and technical terms. Villa Slow is a passive house thanks to a heat pump, under floor heating and high quality insulation and windows for a minimum heat loss. The high performance glass warms up the interior in the winter and the big wooden shutters protect from heat gain during summer. All materials used to build Villa Slow are reused from the old stone shed or come from the area of Cantabria.
© David Montero
(戴维·蒙特罗)
粗糙的外部石墙和屋顶与精致的内部木结构和细节形成鲜明对比。别墅慢是一个微妙的对比:粗糙-微妙,开放-封闭,木材-灰色,内部-外部,传统-现代。
The rough exterior stone-walls and roofs contrast with the delicate interior wooden structure and details. Villa Slow is a house of subtle contrasts: rough-delicate, open-closed, wood-grey, interior-exterior, traditional-modern.
© David Montero
(戴维·蒙特罗)
© David Montero
(戴维·蒙特罗)
劳拉·阿尔瓦雷斯(LauraAlvarez)的架构试图在物化方面找到平衡的解决方案。在这个项目中,木材元素给予温暖的感觉,而白色有助于理解建筑信封。一个经典的坐式家具和极简主义元素的结合创造了一个非常平静的空间,从中享受卓越的自然环境。
Laura Alvarez architecture tries to find balanced solutions in materialisation. In this project, wood elements give a warm feeling, whereas white helps understanding the building envelope. A combination of classic sitting furniture and minimalist elements create a very calm space from which enjoying the outstanding natural setting.
© David Montero
(戴维·蒙特罗)
Architects Laura Alvarez Architecture
Location San Roque de Riomiera, Spain
Area 160.0 m2
Project Year 2017
Photographs David Montero
Category Houses
Manufacturers Loading...
客服
消息
收藏
下载
最近






































