查看完整案例


收藏

下载
Courtesy of Terence Yong
特伦斯·勇 (Terence Yong)
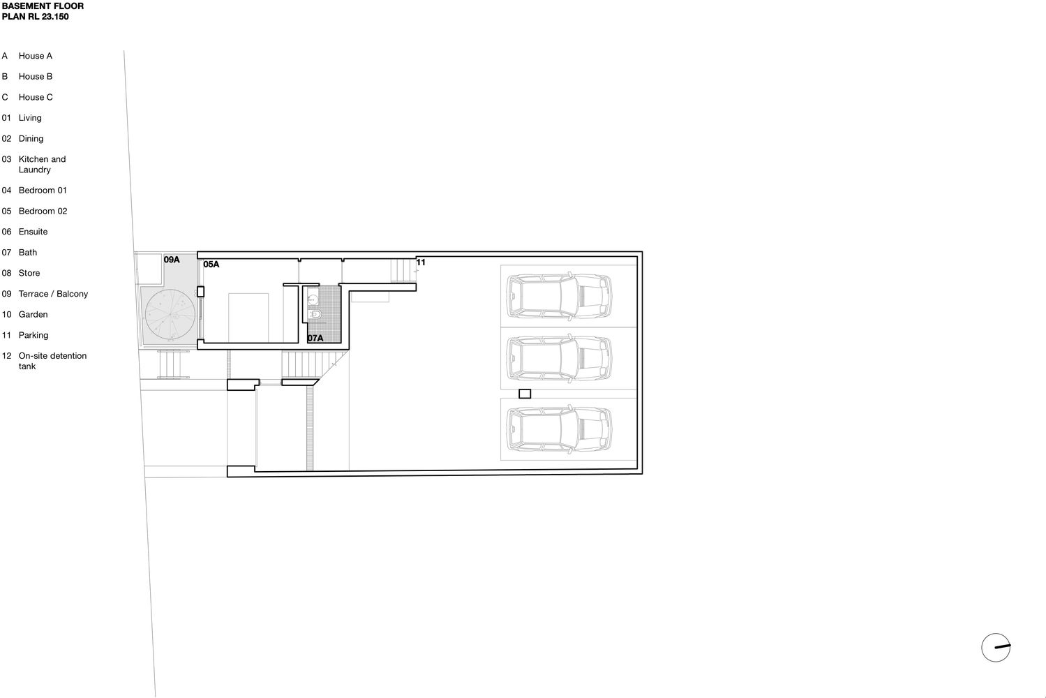
紧凑,我们的想法是创建三个联排住宅与安全停车 (最初的简介),是当代和令人兴奋的,但完全在家中的历史街区巴尔曼。
Compact Our idea is to create three townhouses with security Parking (the original brief) that are contemporary and exciting yet completely at home in the historic neighbourhood of Balmain.
仅覆盖 2/3(约 180 平方米,270 平方米) 的一个小城市填充地,有惊人的景观横跨树木和屋顶面向城市和安扎克桥,房屋设计的毫米,以适应竞争的消防法规和隔离,舒适性和公用事业的要求。作为回报,这些约束导致了一系列有趣的动态空间体验,它们以不同的形状和形式指导 (运动)、扩展和收缩。
Covering just 2/3 (approximately 180sqm of 270sqm) of a tiny urban infill site that has amazing views across the trees and rooftops towards the city and Anzac Bridge, the houses are designed down to the millimetre to accommodate competing fire regulation and separation, amenity and utility requirements. In return, such constraints result in an interesting sequence of dynamic spatial experiences that direct (movement), expand and contract in different shapes and forms.
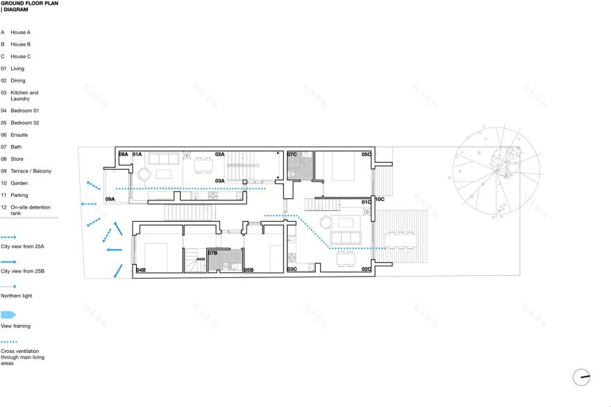
First floor plan / Diagram
一楼平面图/图表
Section through public entry corridor + House C
经公众进入走廊的一段-C 楼
:“我被你在这么小的地方成功地安装了三个高效规划的房子而震惊,所有这些都是双重的。”绝对惊人!“-一个建筑师在 AAA‘在家里与建筑师的自我驱动架构之旅。
"I’m blown away by how you managed to fit three efficiently planned homes on such a tiny site, all with dual aspects. Absolutely stunning!" — an Architect at the AAA ’At home with the Architect’ self-drive architecture tour.
Courtesy of Terence Yong
特伦斯·勇 (Terence Yong)
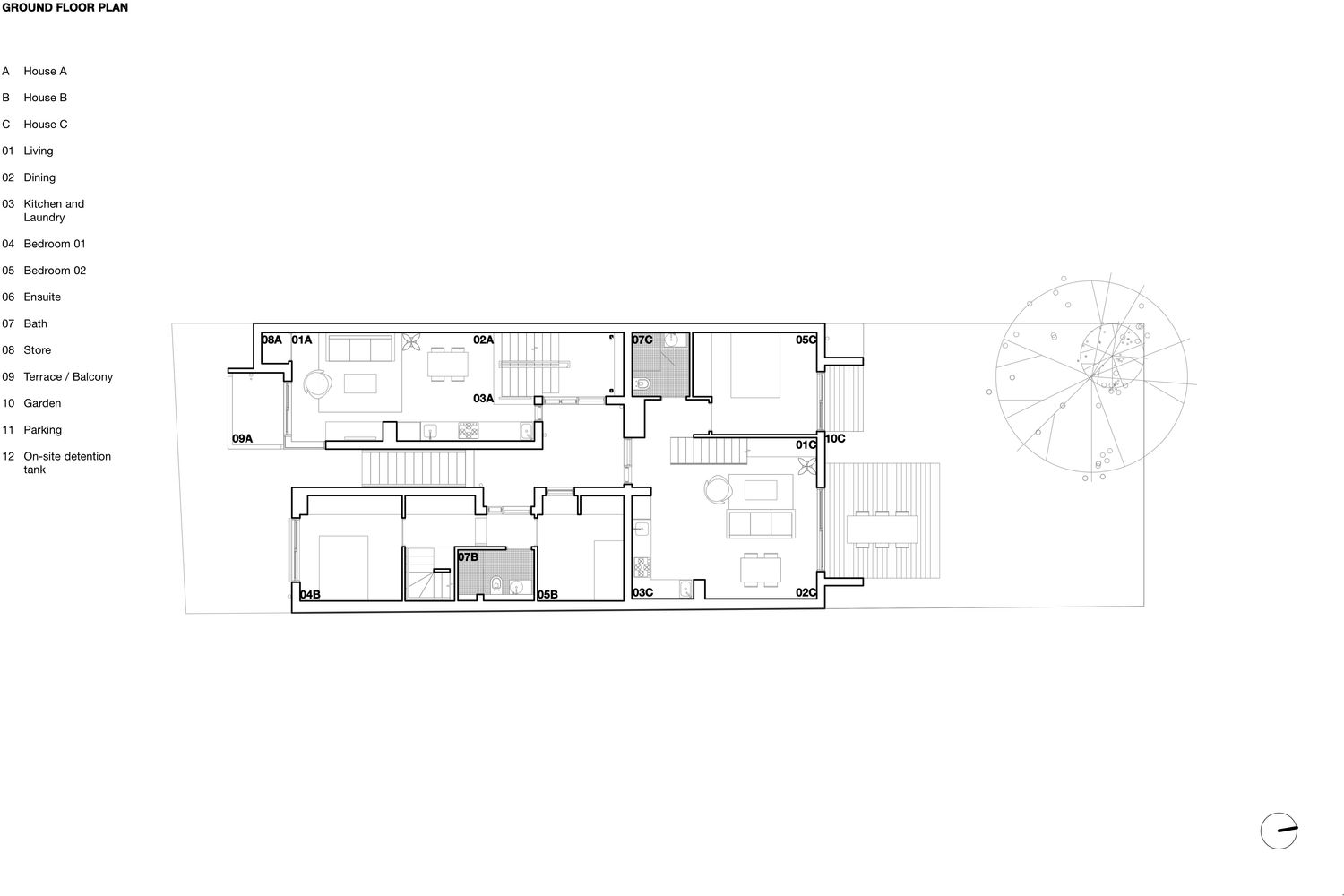
受巴尔曼细腻的性格和折衷背景的启发,街道正面有两栋 4 米宽的房屋 (A 和 B 室),并排坐着,中间有一条 1 米宽的开放走廊。它提供一个中央开放庭院的公共通道,然后进入房屋,同时鼓励随意的社会交往。
Contextual Inspired by the fine-grain character and eclectic context of Balmain, the street frontage has two 4m wide houses (House A and B) sitting side-by-side with a 1m wide open corridor in between. It provides common access to a central open courtyard, followed by entries to the houses whilst encouraging casual social interactions.
Courtesy of Terence Yong
特伦斯·勇 (Terence Yong)
在西边,A 楼高 3 层,白色,有平顶,模仿工地上以前的建筑;在东部,B 楼是 2 层,灰色,模仿相邻的露台房屋的轮廓。虽然这两座房子是相连的,但其效果是创造出两座独立的房屋的外观,这增加了沿着现有街景的不同住宅的顺序。街道正面的元素也被表达和对齐到关键的基准线上,以便将这两所房子与相邻的邻居无缝地结合在一起。
On the West, House A is 3-storey, white, has a flat roof and mimics the envelope of the previous building on the site; on the East, House B is 2-storey, grey and mimics the profile of the adjacent terrace house. Whilst the two houses are linked, the effect is to create an appearance of two separate houses that add to the sequence of different dwellings along the existing streetscape. Street frontage elements are also articulated and aligned to key datum lines to seamlessly integrate the two houses with adjacent neighbours.
Courtesy of Terence Yong
特伦斯·勇 (Terence Yong)
独特的外部材料选择反映了郊区出身的卑微。风化板覆层、异形混凝土基层墙、木结构窗和立缝金属覆层以不同的安排和颜色组合在一起,使每个房子都具有个性和个性。在内部,房屋有不同的空间品质,景观和与外界的关系,包括内部微妙的差异,参考巴尔曼的工业遗产和它的折衷建筑。
Unique The choice of external materials reflects the humble origins of the suburb. Weatherboard cladding, off-form concrete base walls, timber-framed windows and standing seam metal cladding are combined in different arrangements and colours to give each house an individual character and identity. Internally, the houses have different spatial qualities, views, vistas and relationships with outside, including subtle differences in interiors that reference Balmain’s industrial heritage and its eclectic architecture.
Courtesy of Terence Yong
特伦斯·勇 (Terence Yong)
每所房子都是灵活设计的,以提供一定数量的职业机会。开放式客厅被排除在卧室之外,但在视觉上与街道及其周围环境联系在一起,从而促进了被动监视。
Each house is flexibly designed to offer a number of opportunities for occupation. Open-plan living areas are excluded from bedrooms but are visually connected with the street and its surrounding context, hence contributing to passive surveillance.
房屋 A 有一个垂直的空间表现,因为它是内部连接一个戏剧性的开放提升管钢楼梯。在街道层,二级卧室套房可以通过一个小露台水平进入,因此它可以转换成一个家庭办公室。地面层设有开放式客厅和角落阳台,顶层设有主卧室套房,所有客房都能欣赏到全景区的景色。
House A has a vertical spatial expression as it is internally linked by a dramatic open-riser steel stair. On the street level, the secondary bedroom suite has level access via a small terrace hence it is convertible to a home office. The ground level contains open-plan living areas and a corner balcony whilst the top level contains the main bedroom suite, all enjoying panoramic district views.
Courtesy of Terence Yong
特伦斯·勇 (Terence Yong)
B 房在地面有卧室,上面有开放式的起居室。长期的生活空间水平地从街道的厨房流向北面的露台,上面有锯齿形屋顶,类似于当地仓库,这给房子提供了当地车间的质量。
House B has bedrooms on the ground level with open-plan living areas above. The long living space flows horizontally from the kitchen on the street side to the North-facing terrace with a saw-tooth roof similar to local warehouses that gives the house the quality of a local workshop.
C 房有开放式的居住区域,向北宽阔的草地花园开放。房子的中心有一个戏剧性的双高度的空隙,里面有一个顶灯的开放楼梯,可以欣赏到通往街道的开放走廊的风景。
House C has open-plan living areas that open to a generous North-facing grassed garden. The centre of the house has a dramatic double-height void containing a top-lit open stair that enjoys views back down the open corridor to the street.
Courtesy of Terence Yong
特伦斯·勇 (Terence Yong)
尽管密度和场地的限制,每个房子都有充足的太阳能通道和有效的交叉通风。房屋 A 有高的,可操作的北面窗户,允许直接阳光直接进入生活区通过楼梯的空隙。连同厨房的北向百叶窗和朝南的初级开口,整个生活区都提供了有效的交叉通风。
Sustainable Despite the density and site constraints, each house enjoys ample solar access and effective cross-ventilation. House A has high-level, operable North-facing windows that admit direct sunlight deep into the living areas through the stair void. Together with the North-facing louvres in the kitchen and South-facing primary openings, effective cross-ventilation is provided throughout the living areas.
Section House A + C / Diagram
A 区 C/图表
Streetscape elevation / Diagram
街景高程/图
除了一个大的北向开放,B 房有可操作的天窗与一体化百叶窗在北面的锯齿屋顶,允许直接阳光。与起居区每一相对端的开口一起,提供有效的交叉通风。
In addition to a large North-facing opening, House B has operable skylights with integrated blinds on the North-facing planes of the saw-tooth roof that admit direct sunlight. Together with the openings at each opposite end of the living areas, effective cross-ventilation is provided.
Courtesy of Terence Yong
特伦斯·勇 (Terence Yong)
C 房有大的北面开口,由木材遮阳和隐私刀片墙保护。他们与入口周围的南面百叶窗一起工作,在整个生活区提供有效的交叉通风。
House C has large North-facing openings that are protected by timber sunshades and privacy blade walls. They work with the South-facing louvres around the entry to provide effective cross-ventilation throughout the living areas.
Courtesy of Terence Yong
特伦斯·勇 (Terence Yong)
其他值得注意的可持续举措包括:倒块贴面建筑;低 E 和双层玻璃窗;高绝缘建筑信封;木材地板;光反射室内;低用水景观;优化的深层土壤地区;雨水水箱;现场滞留罐;自行车停放和衣物干燥 (山丘提升机);通往顶层潮湿地区的管状天窗;高效配件、固定装置和电器;6 星级燃气瞬时热水系统;燃气灶顶部。/与 Terence Yong 合住
Other notable sustainable initiatives include reversed block veneer construction; Low-E and double glazed windows; highly insulated building envelopes; timber floorings; light-reflective interiors; low water-use landscapes; optimised deep soil areas; rainwater tank; on-site detention tank; provision for bicycle Parking and clothes drying (hills hoist); tubular skylights to top-level wet areas; efficient fittings, fixtures and appliances; 6 star gas instantaneous hot-water system; gas cooktops. /Shed with Terence Yong
Architects Shed, Terence Yong
Location Balmain, Australia
Interior Designer Space Control
Landscape Designer LandscapesByJo
客服
消息
收藏
下载
最近









































