查看完整案例


收藏

下载
© Jordi Sánchez (BCQ arquitectura barcelona)
c.若迪·桑切斯(巴塞罗那阿奎图拉BCQ)
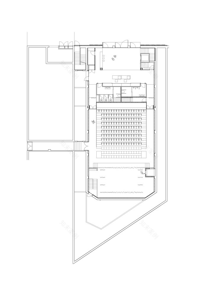
架构师提供的文本描述。新的市民中心,以前被称为Espai Felip II,是国会-印第安人社区邻居协会内的一个中型老剧院,由于时间的恶化,它已经过时了。
Text description provided by the architects. The new civic center, formerly known as Espai Felip II, was a medium sized old theater within the Association of neighbors of the Congrés-Indians neighborhood, which has become obsolete due to the deterioration in time.
© Jordi Sánchez (BCQ arquitectura barcelona)
c.若迪·桑切斯(巴塞罗那阿奎图拉BCQ)
© Jordi Sánchez (BCQ arquitectura barcelona)
c.若迪·桑切斯(巴塞罗那阿奎图拉BCQ)
这是一种简朴合理的结构,但材料却很简单。这一文化社区空间的恢复是从经济和能源效率、灵活性和持久性等角度采取行动的一个显著机会。
It is an austere and rational construction, while simple in its materials. The rehabilitation of this cultural community space represents a remarkable opportunity to act from the perspectives such as economy and energy efficiency, flexibility and durability.
© Jordi Sánchez (BCQ arquitectura barcelona)
c.若迪·桑切斯(巴塞罗那阿奎图拉BCQ)
© Jordi Sánchez (BCQ arquitectura barcelona)
c.若迪·桑切斯(巴塞罗那阿奎图拉BCQ)
这些行动是有意义的,从时刻,他们的目标是提供剧院的最大功能和舒适。剧院设计成一个简单的整体空间,位于建筑物之间,一边可以俯瞰广场。从建筑形象的角度来看,它被认为是由两层楼组成的大型立面,对内部不规则的洞口进行定级和规整,而侧壁则被理解为覆盖均匀的元素。
These actions make sense from the moment when they are aimed at providing the theater maximum functionality and comfort. The theater is designed as a simple unitary volume located between buildings, leaving one side overlooking the square. From the point of view of the image of the building it is conceived as a large vertical facade of two stories which orders and regularizes the irregular openings inside, while the sidelong dividing walls are understood as cover uniform elements.
© Jordi Sánchez (BCQ arquitectura barcelona)
c.若迪·桑切斯(巴塞罗那阿奎图拉BCQ)
Architects BCQ arquitectura
Location Carrer de Felip II, 222, 08027 Barcelona, Spain
Author Architects Toni Casamor, David Baena, Manel Peribáñez, Maria Taltavull
Area 1071.0 m2
Project Year 2017
Photographs Jordi Sánchez (BCQ arquitectura barcelona)
Category Community Center
Manufacturers Loading...
客服
消息
收藏
下载
最近













