查看完整案例


收藏

下载
© Junji Kojima / 45gPhotography
小岛俊二/45 G摄影
架构师提供的文本描述。这座度假别墅位于日本最北海道的北海道岛上,坐落在悬崖上,可以看到山的景色。Yotei(也叫Ezo Fuji,因为它和山很相似。(富士山),俯瞰一条沿着山脚下缓缓蜿蜒的河流。这个结构悬在悬崖上,仿佛漂浮在周围的大自然中。它的名字,清水,是从山的纯融雪而来的。在下面的河里流淌。
Text description provided by the architects. This vacation home on Japan’s northernmost island of Hokkaido sits on a bluff with a view of Mt. Yotei (also called Ezo Fuji for its resemblance to Mt. Fuji), overlooking a river that meanders slowly along the base of the mountain. The structure cantilevers out over the bluff as if to float amidst the surrounding nature. Its name, The Clearwater, is derived from the pure snowmelt from Mt. Yotei that flows in the river below.
© Aaron Jamieson
(亚伦·詹姆逊
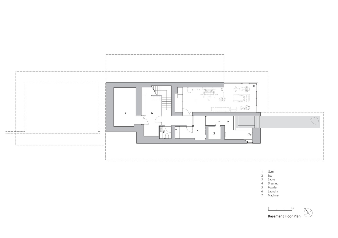
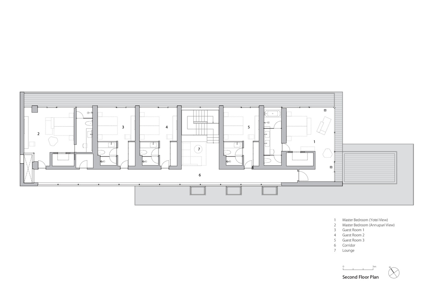
三种长方形形式以交替的层次相互支撑,其组织方式明确如下:最低层包含“健康区”,中层(底层)是房屋的公共领域,最上层(二楼)是私人卧室。有两间主卧室,每一间都有自己的风景。Yotei或山安努比里。
Three rectangular forms support one another in alternating layers, which are clearly organized in the following manner: The lowest level containing a “wellness area,” the middle level (the ground floor) the public domain of the house, and the uppermost level (the second floor) private bedrooms. There are two master bedrooms, each with its own view of either Mt. Yotei or Mt. Annupuri.
© Junji Kojima / 45gPhotography
小岛俊二/45 G摄影
First Floor Plan
一层平面图
© Aaron Jamieson
(亚伦·詹姆逊
接近时,门面似乎关闭了。它提供了从街道和附近的房产的隐私,但也提供了一个令人惊讶的因素,因为建筑物完全开放的景观在另一边:全景景致的Niseko地区。
Upon approach, the façade seems closed. It offers privacy from the street and neighboring properties, but also offers an element of surprise as the building completely opens to the landscape on the other side: taking in panoramic views of Niseko area.
© Junji Kojima / 45gPhotography
小岛俊二/45 G摄影
大楼梯提供不同层次的森林景观,客人在楼层之间移动,并被设计作为一个象征性的,雕塑元素。极简的外观与丰富的天然木材和石材内饰的使用形成鲜明对比,这与慷慨尺寸的家具一起提供了室内的最大舒适性。
The grand staircase provides views of the forest at different levels as the guests move between the floors, and is designed to serve as a symbolic, sculptural element. The minimalist exterior contrasts with the abundant use of natural wood and stone interior finishes, which together with the generously dimensioned furniture provide maximum comfort inside.
© Junji Kojima / 45gPhotography
小岛俊二/45 G摄影
总之,该建筑提供了一个环境,同时是一个豪华的庆祝客户的许多成就,和一个温暖,休闲,小屋般的空间,为身体和精神放松与家人和朋友。
Altogether, the building provides an environment that is simultaneously a luxurious celebration of the client’s many accomplishments, and a warm, casual, cabin-like space for both physical and mental relaxation with family and friends.
© Junji Kojima / 45gPhotography
小岛俊二/45 G摄影
Architects Peter Hahn Associates, Seshimo Architects
Location Niseko, Japan
Category Houses
Area 665.0 m2
Project Year 2017
Photographs Junji Kojima / 45gPhotography, Aaron Jamieson
Manufacturers Loading...
客服
消息
收藏
下载
最近






































