查看完整案例

收藏

下载
© Hamidreza Bani
(Hamidreza Bani)
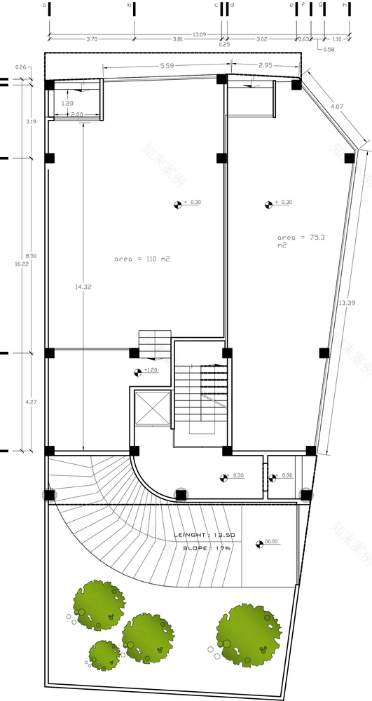
架构师提供的文本描述。塔哈商业办公楼占地350平方米,面积13×27。这座10层的大楼有一个4层的地下停车场,两个商业单位在底层,20个办公单元在另外五层。塔哈建筑位于市中心的伊斯法罕伊斯兰建筑之一的Emamzadeh Mohsen神社附近。
Text description provided by the architects. Taha commercial office building occupies 350 square meters with dimensions of 13 ×27. This 10-story building has a 4-floor underground car park, two commercial units on the ground floor, and 20 office units on the other five floors. Taha building is located near the Emamzadeh Mohsen shrine, one of the Islamic buildings of Isfahan, which is located in the center of the city.
© Hamidreza Bani
(Hamidreza Bani)
伊斯法罕是世界上最古老的城市之一,有3300岁。由于Taha建筑与历史上的宗教机构相邻,因此在设计该建筑时使用了伊朗建筑的图案和阵列。雇主的需要以及伊斯法罕市建筑和城市规划标准的遵守情况是该项目设计和实施的重要因素之一。这座建筑设计中的另一个重要考虑因素是,在邻近建筑物和周围的小巷使用适当的照明开口和最佳能见度,以及使用适合伊斯法罕传统历史环境的土著材料和颜色。
Isfahan is one of the oldest cities in the world with an age of 3300 years. The proximity of Taha building with a historic religious establishment led to the use of motifs and arrays of Iranian architecture in the design of the building. The needs of the employer and observance of architectural and urban planning standards of the city Isfahan was one of the important factor in the design and implementation of the project. Another important consideration in the design of this building was the use of suitable openings for illumination and optimum visibility towards adjacent buildings and surrounding alleyways, as well as the use of indigenous materials and colors appropriate to the traditional historical context of Isfahan.
© Hamidreza Bani
(Hamidreza Bani)
考虑到建筑以北24米街的位置,立面设计为行人(人尺度)和骑手(城市尺度)两个维度。这意味着建筑物的前两层有不同的立面供行人观赏,其余楼层的设计有独特的景观。
Considering the location of 24 Meters Street in the north of the building, the facade was designed in two dimensions of pedestrians (human scale) and riders (city scale). It means that the first two floors of the building have a different facade for pedestrians view and the rest of the floors are designed with a distinctive view.
© Hamidreza Bani
(Hamidreza Bani)
Architects Makanpaydar Consulting Compan
Location Isfahan Province, Isfahan, Rudaki St, Iran
Lead Architects Ali Moazzeni, Ghazal Asadi
Area 2500.0 m2
Project Year 2017
Photographs Hamidreza Bani
Category Office Buildings
Manufacturers Loading...
客服
消息
收藏
下载
最近


























