查看完整案例


收藏

下载
© Triệu Chiến
(C)Triệu chiến
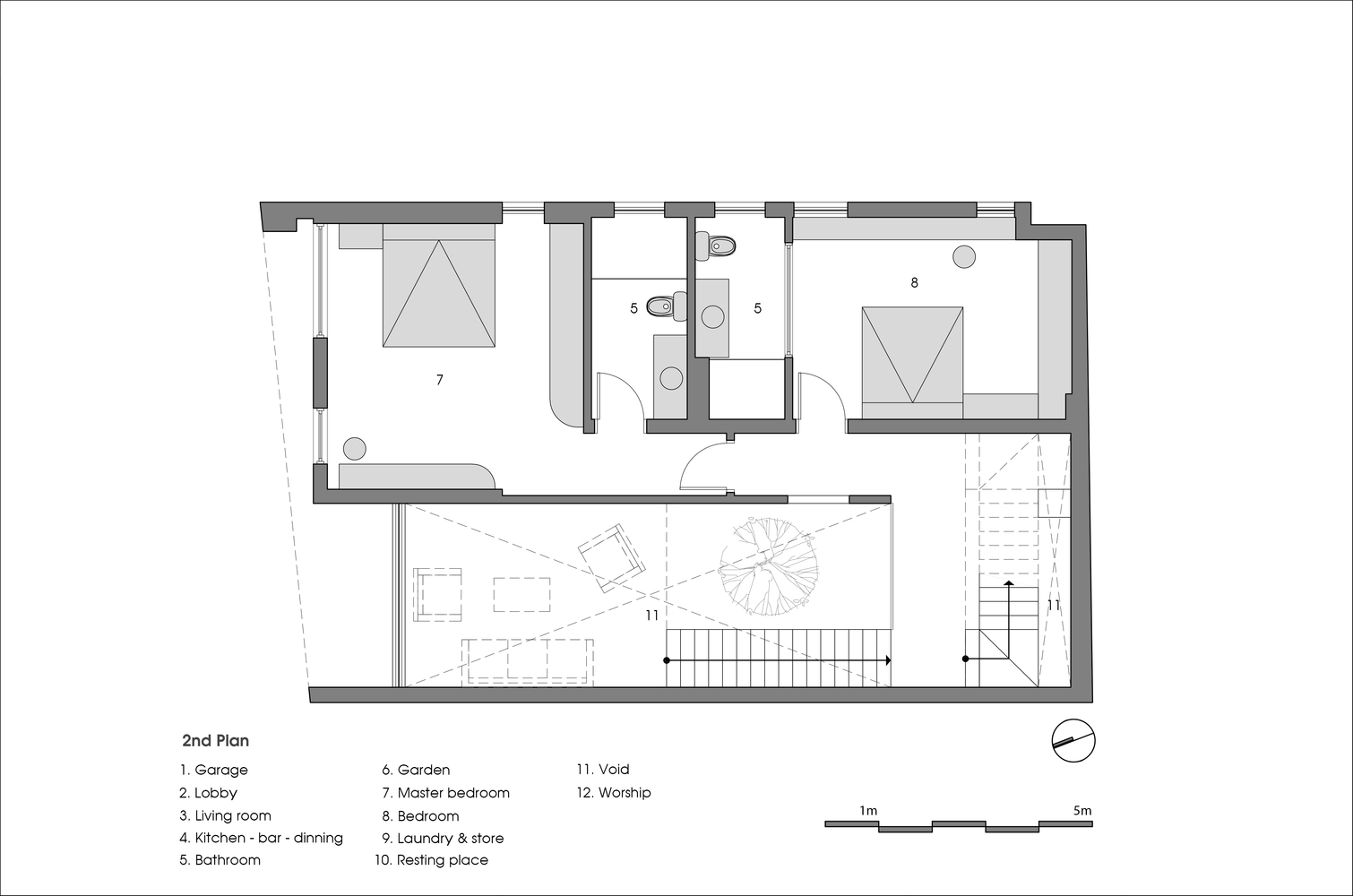
架构师提供的文本描述。越南是一个发展中国家。随着互联网技术的发展,大城市正在大规模建设。烟雾、交通堵塞、噪音、污染造成的后果很多,生活太忙,压力太大。文城也不例外。V3的房子是喧闹的文城的一个安静的角落。这是一个和平的空间,帮助我们想象和思考我们的记忆。然后我们就可以寻求人类的平衡。
Text description provided by the architects. Vietnam is a developing country. Metropolitans are built massively, accompany with the evolution of Internet technology. There are many consequences resulting from smoke, traffic jam, noise, pollution, and the lives are too busy and full of stresses. Vinh City is not an exception. V3 house is a silent corner in the noisy Vinh city. It is a peaceful space that helps us imagine and think of our memory. And then we could seek the human balance.
© Triệu Chiến
(C)Triệu chiến
V3房屋结构具有很大的空间贯穿整个主体结构。这可以帮助我们想象一个有屋顶的传统庭院,它也可以给我们一张洞穴的图片,这些洞穴被树木覆盖着。光线穿过树木的叶子,在砖墙上褪色。
V3 house structure has a large space throughout the main structure. That helps us imagine a traditional yard with the roof, it could also give us a picture of caves which are covered around by trees. The light passes through the leaves of trees and fades on the brick walls.
© Triệu Chiến
(C)Triệu chiến
这个对人类来说不合理和不相称的空间要求人们与自己交谈。这是一个有着现代和古老语言的新空间。这就像一个庇护所,在那里我们唤醒人们的记忆,相信我们可以在思考记忆中找到平衡。
This space which is unreasonable and disproportionate with humans asks people to talk with themselves. It’s a new space with a modern and old language. It’s like a shelter where we awake the people memory with the belief that we can find the balance in thinking about memory.
© Triệu Chiến
(C)Triệu chiến
Architects TNT architects
Location Vinh, Vietnam
Lead Architects Bùi Quang Tiến
Area 133.0 m2
Project Year 2016
Photographs Triệu Chiến
Category Houses
Manufacturers Loading...
客服
消息
收藏
下载
最近



























